CEZAR



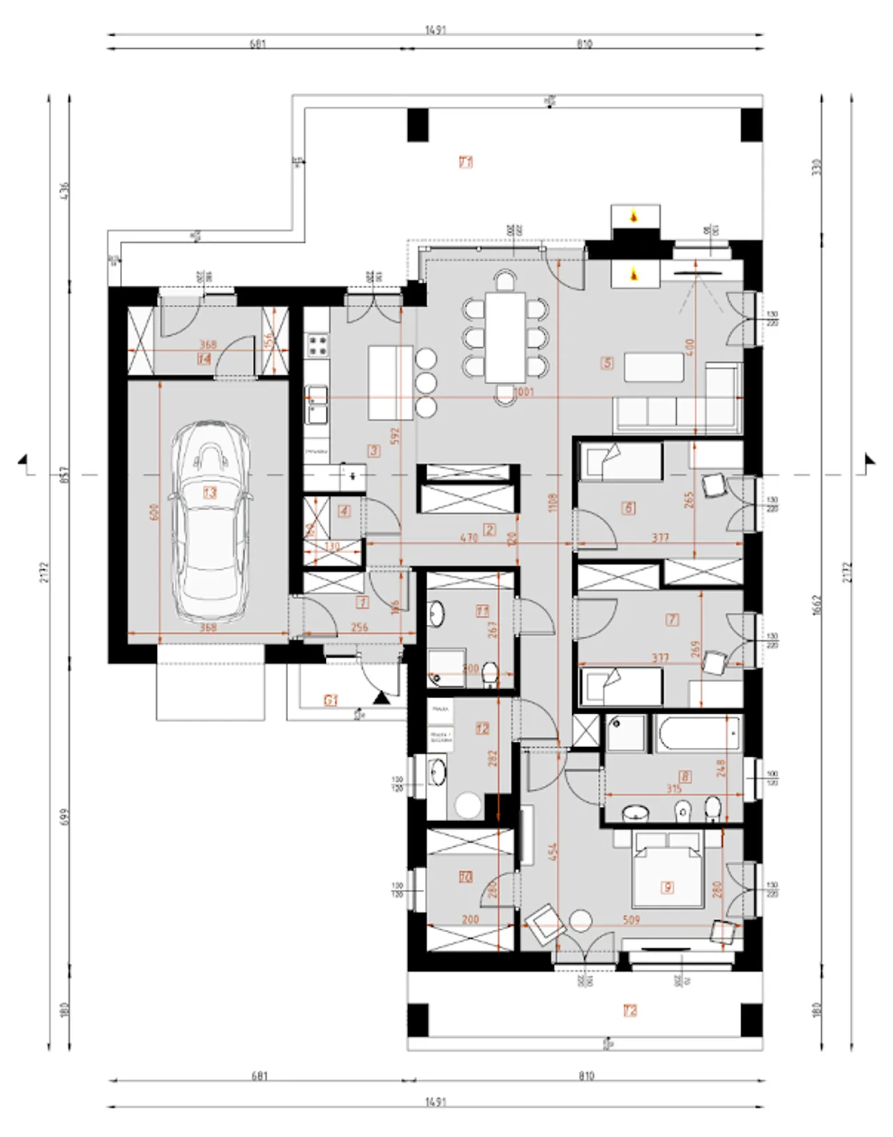
1. Wiatrołap | 4,23 m² |
2. Korytarz | 14,33 m² |
3. Kuchnia | 10,71 m² |
4. Spiżarnia | 2,08 m² |
5. Pokój dzienny + jadalnia | 32,57 m² |
6. Pokój | 11,20 m² |
7. Pokój | 11,20 m² |
8. łazienka | 7,73 m² |
9. Pokój | 17,40 m² |
10. Garderoba | 5,61 m² |
11. łazienka | 5,32 m² |
12. Pom. gospodarcze | 5,48 m² |
13. Garaż | 22,08 m² |
14. Pom. gospodarcze | 5,77 m² |
15. Taras | 38,28 m² |
16. Taras | 13,10 m² |
17. Ganek | 3,57 m² |
Wypełnij formularz i otrzymaj rysunki w pdf z dokładnymi wymiarami budynku i pomieszczeń (długość, szerokość, wysokość) dla projektu D300 - WT2021
Pow. użytkowa 155.71 m² |
Ilość pokoi 4 |
Powierzchnia zabudowy 192.92 m² |
Kondygnacje parterowy |
Garaż 1 stanowisko |
Technologia murowany |
Szerokość działki 23.67 m |
Obiekt dom |
Typ domu jednorodzinny całoroczny |
Wysokość budynku 6.22 m |
Rodzaj dachu dwuspadowy |
Długość działki 29.84 m |
Kalenica prostopadła do drogi |
Przechowywanie w kuchni spiżarnia |
Bryła budynku plan litery L |
Funkcje dodatkowe z dwoma wejściami |
Liczba łazieniek 2 |
Styl budynku nowoczesny |
Kominek kominek w projekcie |
Kąt nachylenia dachu 35 ° |
Szerokość budynku 15.67 m |
Taras z tarasem |
Długość budynku 21.84 m |
Piwnica bez podpiwniczenia |
Kubatura 938 m³ |
Rodzaj garażu w bryle |
Ogrzewanie gaz |
Strop żelbetowy |
Koszty budowy 300-350 tys., tylko z kosztorysem |
Pow. użytkowa 155.71 m² |
Powierzchnia zabudowy 192.92 m² |
Garaż 1 stanowisko |
Szerokość działki 23.67 m |
Typ domu jednorodzinny całoroczny |
Rodzaj dachu dwuspadowy |
Kalenica prostopadła do drogi |
Bryła budynku plan litery L |
Liczba łazieniek 2 |
Kominek kominek w projekcie |
Szerokość budynku 15.67 m |
Długość budynku 21.84 m |
Kubatura 938 m³ |
Ogrzewanie gaz |
Koszty budowy 300-350 tys., tylko z kosztorysem |
Ilość pokoi 4 |
Kondygnacje parterowy |
Technologia murowany |
Obiekt dom |
Wysokość budynku 6.22 m |
Długość działki 29.84 m |
Przechowywanie w kuchni spiżarnia |
Funkcje dodatkowe z dwoma wejściami |
Styl budynku nowoczesny |
Kąt nachylenia dachu 35 ° |
Taras z tarasem |
Piwnica bez podpiwniczenia |
Rodzaj garażu w bryle |
Strop żelbetowy |
Kupując projekt w technologii murowanej powinieneś budować dom murowany. Zupełna zmiana technologii na szkieletową wymaga przeprojektowania całego budynku ( zmieniają się obciążenia, fundamenty, konstrukcja dachu). Wydamy zgodę na takie przeprojektowanie jednak wiążę się to z dużymi kosztami. Istnieją firmy wykonawcze, które podejmują się zmiany technologii budowy bezpłatnie przy skorzystaniu z ich usług wykonawczych. Zdarza się, że pracownia architektoniczna przygotowuje warianty konkretnego projektu przewidując także inne technologie. Prosimy o sprawdzenie czy istnieje poszukiwana wersja projektu, w zakładce - warianty projektu.
Zwężenie/poszerzenie budynku* to nic innego jak zmiana w projekcie. Istnieje możliwość wprowadzenia takich zmian, we własnym zakresie (podczas adaptacji). *zwężenie/poszerzenie budynku nie powinno stanowić problemu w przypadku domów o dachu dwuspadowym jeśli wiąże się to z wydłużeniem/skróceniem kalenicy dachu.
Poznaj praktyczne porady ekspertów, które ułatwią Ci każdy etap budowy i od wyboru wymarzonego domu po jego wykończenie. Zyskaj pewność, że podejmujesz najlepsze decyzje dzięki sprawdzonym wskazówkom od specjalistów z planz.pl
Wycena szacunkowa, w kwotach netto, nie zawiera instalacji.
bezpłatnie (0zł)
przelew zwykły / PayNow
przy odbiorze
3-5 dni roboczych (jeśli projekt nie wymaga aktualizacji)
Wybierz wygodny dla Ciebie czas kontaktu z naszym Doradcą Technicznym.