22 299 20 00 (pn-nd 9.30 do 19.30)

Gotowy projekt domu Czubajka bez garażu B (ID: 33870)

5790 2026-01-18
Czubajka bez garażu B - 68.7m²
Dostawa w ciągu 3-10 dni
Gwarantujemy najniższą cenę
5790 zł
W cenie projektu:
📣 GRATIS: WIERTARKA UDAROWA
  • Tablica + dziennik budowy
  • 16 projektów ogrodowych
  • Darmowa wysyłka (kurier, paczkomat, pobranie)
  • 30 dni na zwrot
  • Pozwolenie na zmiany z podpisem i pieczęcią autora
  • GRATIS: Wiertarka Udarowa
22 299 20 00 (pn-nd 9.30 do 19.30)

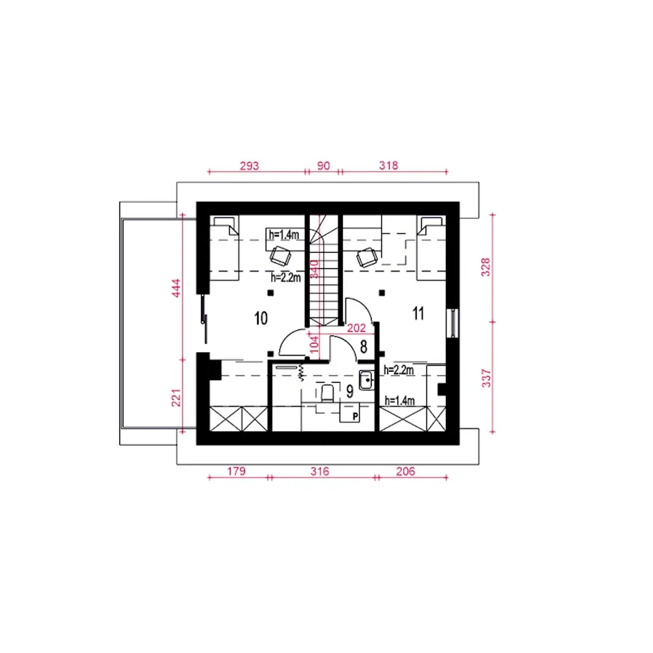
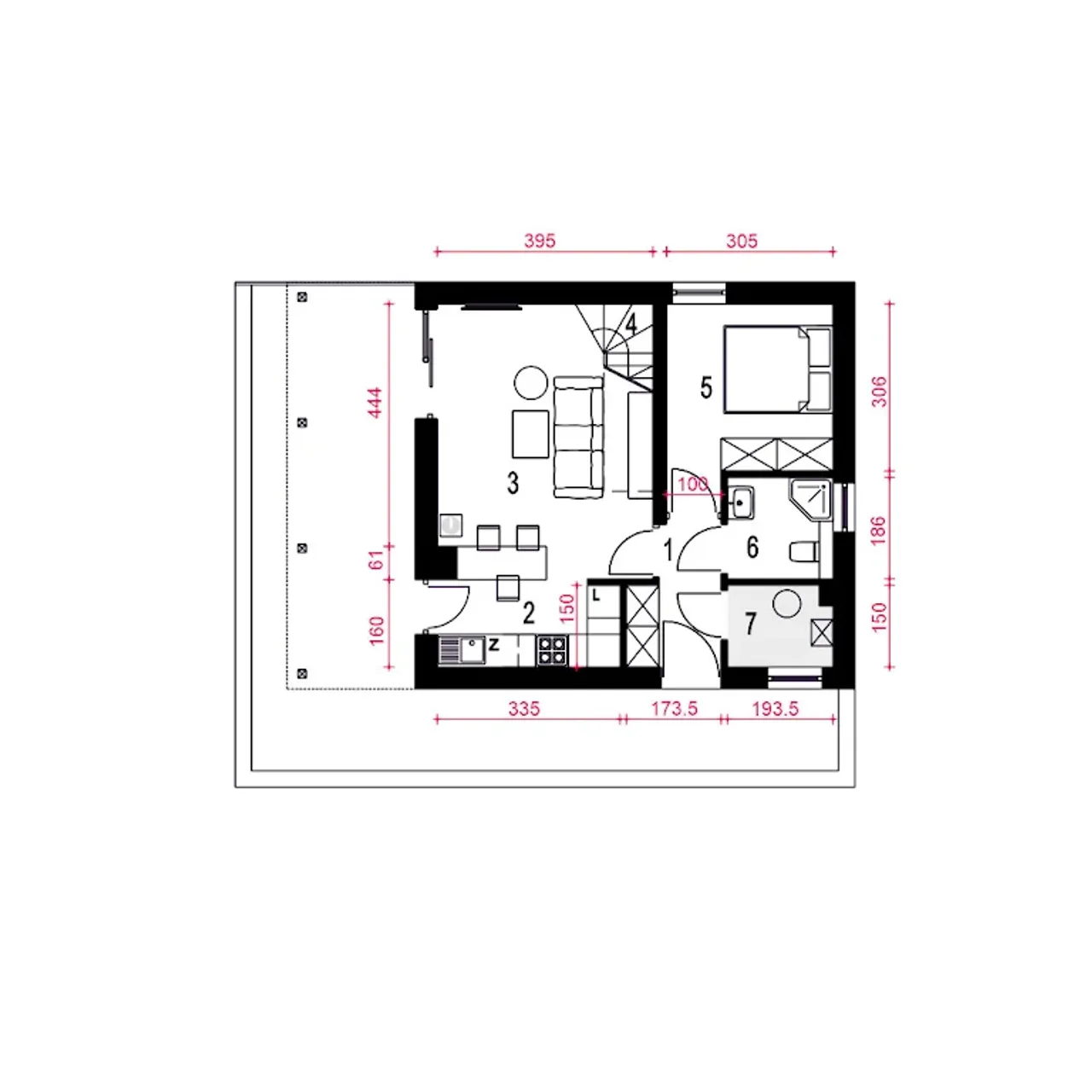
Rzuty gotowego projektu domu Czubajka bez garażu B

1. Wiatrołap 3,90 m²
2. Kuchnia 5,30 m²
3. Salon 17,00 m²
4. Schody 3,30 m²
5. Pokój 9,90 m²
6. łazienka 3,50 m²
7. Pom. techniczne 2,70 m²
1. Hol 2,10 (4,30) m²
2. łazienka 2,50 (6,60) m²
3. Pokój 10,80 (16,60) m²
4. Pokój 10,70 (17,10) m²

Zapoznaj się ze szczegółami projektu - zamów bezpłatne rysunki do: Czubajka bez garażu B

Wypełnij formularz i otrzymaj na podany adres e-mail rysunki w pdf z dokładnymi wymiarami budynku i pomieszczeń (długość, szerokość, wysokość) dla projektu Czubajka bez garażu B

Parametry Techniczne gotowego projektu domu Czubajka bez garażu B

Ilość pokoi 4
Pow. użytkowa 68.7 m²
Powierzchnia zabudowy 60.4 m²
Kondygnacje parterowy+poddasze
Garaż bez garażu
Technologia murowany
Szerokość działki 16.1 m
Obiekt dom
Typ domu jednorodzinny całoroczny
Długość budynku 7.5 m
Piwnica bez podpiwniczenia
Powierzchnia dachu 104.5 m²
Wysokość budynku 7.6 m
Kalenica równoległa do drogi
Długość działki 15.5 m
Styl budynku tradycyjny
Liczba łazieniek 2
Kąt nachylenia dachu 40 °
Szerokość budynku 10.5 m
Rodzaj dachu dwuspadowy
Kominek kominek opcjonalnie
Koszty budowy 300-350 tys., tylko z kosztorysem

Nasze prawdziwe opinie z Google

Opis projektu domu Czubajka bez garażu B

Technologia wykonania:

  • Ściany zewnętrzne: pustak ceram. Porotherm + styropian Termo Organika.
  • Strop: gęstożebrowy.
  • Elewacje: tynk strukturalny.
  • Dach: dwuspadowy, kąt nachylenia 40 st.
  • Pokrycie dachu: dachówka.
  • Ogrzewanie: pompa ciepła.
  • Wentylacja: grawitacyjna.

Częste pytania

Czy projekty z Planz.pl są kompletne?

Tak. Projekty dostępne na Planz.pl zawierają pełną dokumentację potrzebną do uzyskania pozwolenia na budowę i stanowią gwarancję sprawnej realizacji budowy.

Jesteśmy oficjalnym partnerem ponad 50 pracowni architektonicznych z całej Polski - dlatego każdy projekt pochodzi wyłącznie od autorów zrzeszonych w Izbie Architektów RP. 

Planz.pl to polska firma działającą na rynku od 15 lat. Mamy tysiące zadowolonych klientów, doskonałe opinie i oferujemy wsparcie również po zakupie, doradzamy, pomagamy w adaptacji i pozostajemy w kontakcie na każdym etapie inwestycji.

Dodatkowo do każdego projektu dodajemy tablicę informacyjną, dziennik budowy oraz 16 projektów elektronicznych drewnianej architektury ogrodowej. A dzięki naszej współpracy z producentami sprzętu elektrycznego, oferujemy możliwość otrzymania np. Wiertarki udarowej w formie atrakcyjnego gratisu.

Wybierając Planz.pl, otrzymujesz ten sam oryginalny projekt od autora, wzbogacony o realne dodatki, które ułatwiają rozpoczęcie budowy.

Czy mogę wprowadzić zmiany w projekcie?

Co zrobić gdy wybrany dom nie mieści się na działce?

Jakie zmiany można wprowadzić w projekcie?

Porady ekspertów

Poznaj praktyczne porady ekspertów, które ułatwią Ci każdy etap budowy i od wyboru wymarzonego domu po jego wykończenie. Zyskaj pewność, że podejmujesz najlepsze decyzje dzięki sprawdzonym wskazówkom od specjalistów z planz.pl

Co zawiera projekt

  • ✓ 3 x projekt architektoniczno-budowlany ➞ szczegóły
  • ✓ Projekty techniczne ➞ szczegóły
  • ✓ charakterystyka energetyczna (do projektów domów)
  • ✓ zgoda na zmiany w projekcie ➞ szczegóły
  • ✓ GRATIS: Wiertarka (do projektów w cenie od 3000 zł)
  • ✓ GRATIS: 16 projektów (drewutni, altany i wiaty)
  • ✓ GRATIS: tablica i dziennik budowy
  • ✓ GRATIS: przesyłka kurierska

Dodatki do projektu Czubajka bez garażu B

Dodatki możesz kupić razem z projektem lub dokupić po czasie

[Planz] Tablica budowlana (0 zł)

[Planz] Dziennik budowy (0 zł)

[Planz] Wiertarka udarowa (0 zł)

[Planz] Zgoda na zmiany w projekcie (0 zł)

[Planz] Projekty architektury ogrodowej (0 zł)

[Planz] Charakterystyka energetyczna, tylko dla domów całorocznych (0 zł)

Wysyłka i płatność za projekt Czubajka bez garażu B

Koszty wysyłki

bezpłatnie (0zł)

Formy płatności

przelew zwykły / PayNow
przy odbiorze

Czas oczekiwania

3-5 dni roboczych (jeśli projekt nie jest koncepcją)

Komentarze / pytania do projektu domu Czubajka bez garażu B

Ania

Projekt Czubajka bez garażu B przyciąga uwagę swoją unikalną architekturą i przemyślanym układem przestrzennym. Czyż nie jest fascynujące, jak elegancko łączy nowoczesne rozwiązania z funkcjonalnością? Otwarte przestrzenie w części dziennej stwarzają idealne warunki do wspólnych chwil spędzonych w gronie rodziny, a przytulne sypialnie zapraszają do relaksu. Jakie dodatkowe możliwości oferuje ten projekt, by jeszcze lepiej odpowiadał potrzebom rodziny? Zastanawiające, jak świetnie zaplanowane strefy mieszkalne wpływają na codzienne życie. Czy w tym projekcie uwzględniono przestrzeń na biuro, które pozwoli na pracę w komfortowych warunkach? Projekt Czubajka bez garażu B wywołuje również pytania o organizację przestrzeni zewnętrznej – jak można wykorzystać tereny wokół domu? Wysokie okna wprowadzają naturalne światło, co chyba sprawia, że wnętrze staje się jeszcze bardziej przyjazne. Czy to nie idealne miejsce na rozmowy przy filiżance kawy w promieniach porannego słońca? Ten projekt z pewnością staje się inspiracją do stworzenia niepowtarzalnej przestrzeni, w której każdy członek rodziny znajdzie coś dla siebie. Jakie innowacje technologiczne można by wprowadzić, by uczynić codzienność jeszcze bardziej komfortową? Warto rozważyć, jak projekt Czubajka bez garażu B może wpisać się w życiowe marzenia o idealnym miejscu do życia.

Szacunkowy kosztorys dla projektu Czubajka bez garażu B

Stan surowy zamknięty 181500 zł
Stan surowy zamknięty
Stan deweloperski 302500 zł
Stan deweloperski

Wycena szacunkowa, w kwotach netto, nie zawiera instalacji.

PRACOWNIA: Dom Dla Ciebie Maja Klimowicz