Cytrus 3



Wypełnij formularz i otrzymaj rysunki w pdf z dokładnymi wymiarami budynku i pomieszczeń (długość, szerokość, wysokość) dla projektu Cytrus
Ilość pokoi 4 |
Pow. użytkowa 136.11 m² |
Powierzchnia zabudowy 173.18 m² |
Kondygnacje parterowy |
Garaż bez garażu |
Technologia murowany |
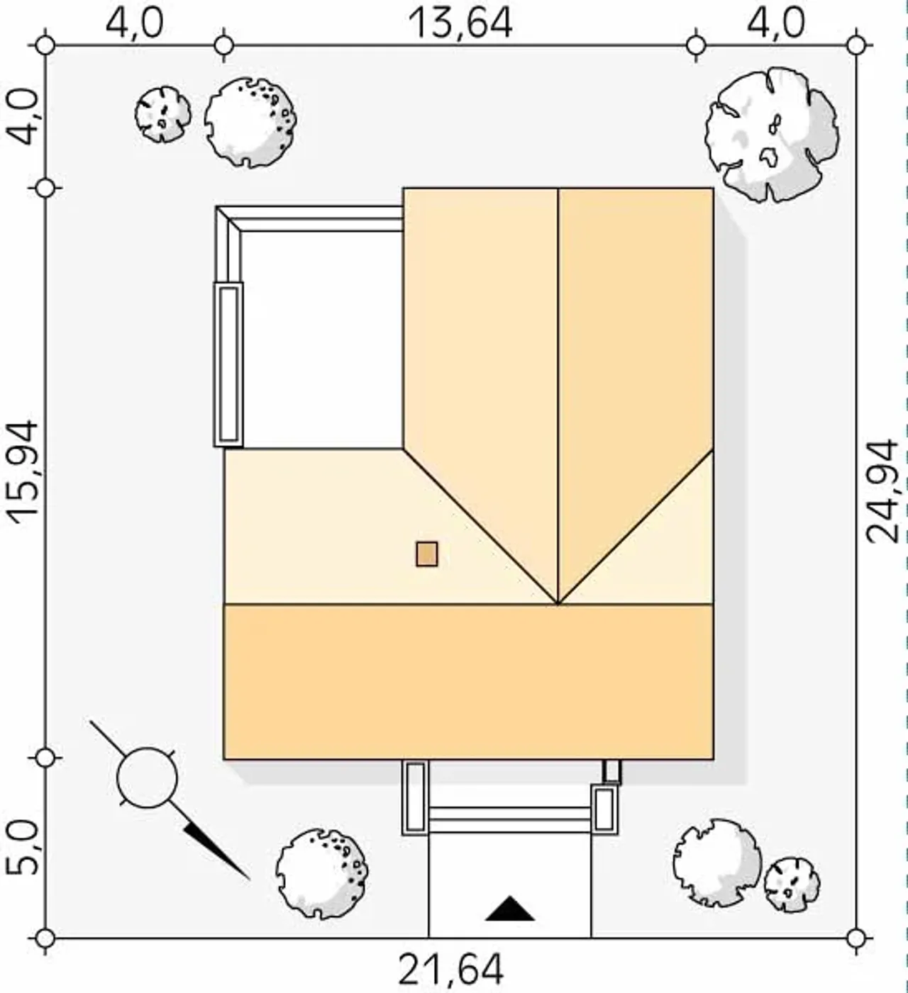
Szerokość działki 21.64 m |
Obiekt dom |
Typ domu jednorodzinny całoroczny |
Powierzchnia dachu 214 m² |
Przechowywanie w kuchni spiżarnia |
Długość działki 24.94 m |
Wysokość budynku 6.41 m |
Bryła budynku plan litery L |
Liczba łazieniek 2 |
Styl budynku nowoczesny |
Kominek kominek w projekcie |
Szerokość budynku 13.64 m |
Kotłownia duża kotłownia |
Kąt nachylenia dachu 35 ° |
Strop żelbetowy |
Długość budynku 15.94 m |
Piwnica bez podpiwniczenia |
Kalenica równoległa do drogi |
Kubatura 462.51 m³ |
Rodzaj dachu dwuspadowy |
Koszty budowy 300-350 tys., tylko z kosztorysem |
Ilość pokoi 4 |
Powierzchnia zabudowy 173.18 m² |
Garaż bez garażu |
Szerokość działki 21.64 m |
Typ domu jednorodzinny całoroczny |
Przechowywanie w kuchni spiżarnia |
Wysokość budynku 6.41 m |
Liczba łazieniek 2 |
Kominek kominek w projekcie |
Kotłownia duża kotłownia |
Strop żelbetowy |
Piwnica bez podpiwniczenia |
Kubatura 462.51 m³ |
Koszty budowy 300-350 tys., tylko z kosztorysem |
Pow. użytkowa 136.11 m² |
Kondygnacje parterowy |
Technologia murowany |
Obiekt dom |
Powierzchnia dachu 214 m² |
Długość działki 24.94 m |
Bryła budynku plan litery L |
Styl budynku nowoczesny |
Szerokość budynku 13.64 m |
Kąt nachylenia dachu 35 ° |
Długość budynku 15.94 m |
Kalenica równoległa do drogi |
Rodzaj dachu dwuspadowy |
Kupując projekt w technologii murowanej powinieneś budować dom murowany. Zupełna zmiana technologii na szkieletową wymaga przeprojektowania całego budynku ( zmieniają się obciążenia, fundamenty, konstrukcja dachu). Wydamy zgodę na takie przeprojektowanie jednak wiążę się to z dużymi kosztami. Istnieją firmy wykonawcze, które podejmują się zmiany technologii budowy bezpłatnie przy skorzystaniu z ich usług wykonawczych. Zdarza się, że pracownia architektoniczna przygotowuje warianty konkretnego projektu przewidując także inne technologie. Prosimy o sprawdzenie czy istnieje poszukiwana wersja projektu, w zakładce - warianty projektu.
Zwężenie/poszerzenie budynku* to nic innego jak zmiana w projekcie. Istnieje możliwość wprowadzenia takich zmian, we własnym zakresie (podczas adaptacji). *zwężenie/poszerzenie budynku nie powinno stanowić problemu w przypadku domów o dachu dwuspadowym jeśli wiąże się to z wydłużeniem/skróceniem kalenicy dachu.
Poznaj praktyczne porady ekspertów, które ułatwią Ci każdy etap budowy i od wyboru wymarzonego domu po jego wykończenie. Zyskaj pewność, że podejmujesz najlepsze decyzje dzięki sprawdzonym wskazówkom od specjalistów z planz.pl
Wycena szacunkowa, w kwotach netto, nie zawiera instalacji.
bezpłatnie (0zł)
przelew zwykły / PayNow
przy odbiorze
3-5 dni roboczych (jeśli projekt nie jest koncepcją)
Wybierz wygodny dla Ciebie czas kontaktu z naszym Doradcą Technicznym.