Artus



1. Wiatrołap | 3,64 m² |
2. Garderoba | 3,27 m² |
3. Pom. gospodarcze | 10,04 (13,15) m² |
4. Garaż | 39,52 m² |
5. Wc | 2,93 m² |
6. Komunikacja | 3,97 m² |
7. Salon z jadalnią | 38,87 m² |
8. Kuchnia | 10,74 m² |
1. Komunikacja | 10,93 m² |
2. Pralnia | 4,59 m² |
3. łazienka | 7,94 m² |
4. Pokój | 12,90 m² |
5. Pokój | 12,39 m² |
6. Garderoba | 7,15 m² |
7. Sypialnia | 16,38 m² |
8. łazienka | 5,27 m² |
Wypełnij formularz i otrzymaj rysunki w pdf z dokładnymi wymiarami budynku i pomieszczeń (długość, szerokość, wysokość) dla projektu Crastinus I G2
Ilość pokoi 4 |
Pow. użytkowa 125.96 m² |
Powierzchnia zabudowy 160.27 m² |
Kondygnacje piętrowy |
Garaż 2 stanowiska |
Technologia murowany |
Szerokość działki 25.15 m |
Obiekt dom |
Typ domu jednorodzinny całoroczny |
Kalenica bez znaczenia |
Szerokość budynku 17.15 m |
Rodzaj garażu przyklejony |
Kotłownia duża kotłownia |
Długość budynku 10.65 m |
Rodzaj dachu płaski |
Piwnica bez podpiwniczenia |
Funkcje dodatkowe z pralnią |
Kubatura 1206.85 m³ |
Wysokość budynku 7.53 m |
Długość działki 17.65 m |
Styl budynku nowoczesny |
Liczba łazieniek 2 |
Strop żelbetowy |
Kominek kominek w projekcie |
Kąt nachylenia dachu 1 ° |
Koszty budowy 350-400 tys., tylko z kosztorysem |
Ilość pokoi 4 |
Powierzchnia zabudowy 160.27 m² |
Garaż 2 stanowiska |
Szerokość działki 25.15 m |
Typ domu jednorodzinny całoroczny |
Szerokość budynku 17.15 m |
Kotłownia duża kotłownia |
Rodzaj dachu płaski |
Funkcje dodatkowe z pralnią |
Wysokość budynku 7.53 m |
Styl budynku nowoczesny |
Strop żelbetowy |
Kąt nachylenia dachu 1 ° |
Pow. użytkowa 125.96 m² |
Kondygnacje piętrowy |
Technologia murowany |
Obiekt dom |
Kalenica bez znaczenia |
Rodzaj garażu przyklejony |
Długość budynku 10.65 m |
Piwnica bez podpiwniczenia |
Kubatura 1206.85 m³ |
Długość działki 17.65 m |
Liczba łazieniek 2 |
Kominek kominek w projekcie |
Koszty budowy 350-400 tys., tylko z kosztorysem |
Wybierz projekt domu jednorodzinnego Crastinus I G2, jeśli liczy się dla Ciebie nowoczesny styl, solidna technologia murowana oraz praktyczne rozwiązania. Ten całoroczny dom piętrowy powstał z myślą o rodzinie, która szuka przestrzeni, funkcjonalności i przywiązania do detali. Odkryj wygodę codzienności dzięki dużej kotłowni, dwustanowiskowemu garażowi oraz wyraźnej strefie relaksu przy kominku.
Zaprojektowany na planie nowoczesnej bryły, dom wyróżnia się płaskim dachem oraz starannie dobranymi materiałami budowlanymi - od pustaków ceramicznych LEIER, przez wysokiej klasy termoizolację, po nowoczesne okna i rolety zewnętrzne. Nie czekaj - przekonaj się, jak funkcjonalność łączy się tu z ponadczasowym stylem.
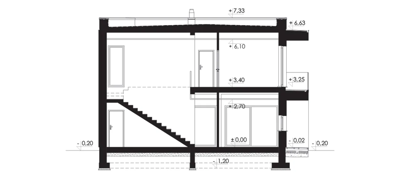
Dom Crastinus I G2 to doskonale przemyślana przestrzeń dla rodziny, która ceni nowoczesność oraz wygodę. Układ z czterema pokojami pozwala na swobodną aranżację, a zastosowanie płytowego, żelbetowego stropu zwiększa trwałość i ciszę wnętrz. Monolityczne schody prowadzą na piętro, zapewniając stabilność i wrażenie lekkości zarazem.
Technologia murowana z wykorzystaniem pustaków ceramicznych oraz termoizolacja styropianowa o grubości aż 20 cm to gwarancja znakomitej szczelności i niższych kosztów eksploatacji. Dach w formie niewentylowanego stropodachu żelbetowego z membraną chroni przed przeciekaniem i zapewnia czystą linię architektury. Całość uzupełnia nowoczesna stolarka PVC z roletami i segmentową bramą garażową, które zwiększają bezpieczeństwo domu.
Nie czekaj - zamów projekt domu Crastinus I G2 i rozpocznij inwestycję w jakość, praktyczność oraz ponadczasowy styl!
Kupując projekt w technologii murowanej powinieneś budować dom murowany. Zupełna zmiana technologii na szkieletową wymaga przeprojektowania całego budynku ( zmieniają się obciążenia, fundamenty, konstrukcja dachu). Wydamy zgodę na takie przeprojektowanie jednak wiążę się to z dużymi kosztami. Istnieją firmy wykonawcze, które podejmują się zmiany technologii budowy bezpłatnie przy skorzystaniu z ich usług wykonawczych. Zdarza się, że pracownia architektoniczna przygotowuje warianty konkretnego projektu przewidując także inne technologie. Prosimy o sprawdzenie czy istnieje poszukiwana wersja projektu, w zakładce - warianty projektu.
Zwężenie/poszerzenie budynku* to nic innego jak zmiana w projekcie. Istnieje możliwość wprowadzenia takich zmian, we własnym zakresie (podczas adaptacji). *zwężenie/poszerzenie budynku nie powinno stanowić problemu w przypadku domów o dachu dwuspadowym jeśli wiąże się to z wydłużeniem/skróceniem kalenicy dachu.
Poznaj praktyczne porady ekspertów, które ułatwią Ci każdy etap budowy i od wyboru wymarzonego domu po jego wykończenie. Zyskaj pewność, że podejmujesz najlepsze decyzje dzięki sprawdzonym wskazówkom od specjalistów z planz.pl
Wycena szacunkowa, w kwotach netto, nie zawiera instalacji.
bezpłatnie (0zł)
przelew zwykły / PayNow
przy odbiorze
3-5 dni roboczych
Wybierz wygodny dla Ciebie czas kontaktu z naszym Doradcą Technicznym.