Tymek AP garaż



1. Wiatrołap | 4,22 m² |
2. Komunikacja | 6,87 m² |
3. łazienka | 4,47 m² |
4. Pom. gospodarcze | 2,51 (3,05) m² |
5. Garaż | 23,52 m² |
6. Pom. gospodarcze | 10,60 m² |
7. Kuchnia | 12,13 m² |
8. Pokój dzienny z jadalnią | 27,74 m² |
1. Komunikacja | 12,80 m² |
2. Garderoba | 2,56 (4,37) m² |
3. Pralnia | 3,03 (4,95) m² |
4. Pokój | 10,49 (16,45) m² |
5. Pokój | 13,33 (14,61) m² |
6. łazienka | 8,15 (11,89) m² |
7. Sypialnia | 12,65 (16,13) m² |
8. Pokój | 8,94 (12,48) m² |
Wypełnij formularz i otrzymaj rysunki w pdf z dokładnymi wymiarami budynku i pomieszczeń (długość, szerokość, wysokość) dla projektu Citus I G1
Pow. użytkowa 132.92 m² |
Ilość pokoi 5 |
Powierzchnia zabudowy 124.6 m² |
Kondygnacje parterowy+poddasze |
Garaż 1 stanowisko |
Technologia murowany |
Szerokość działki 22.7 m |
Obiekt dom |
Typ domu jednorodzinny całoroczny |
Strop żelbetowy |
Kalenica równoległa do drogi |
Liczba łazieniek 2 |
Kąt nachylenia dachu 40 ° |
Szerokość budynku 13.65 m |
Rodzaj garażu w bryle |
Kominek kominek w projekcie |
Funkcje dodatkowe z pralnią |
Długość budynku 9.9 m |
Rodzaj dachu dwuspadowy |
Piwnica bez podpiwniczenia |
Kubatura 784.45 m³ |
Wysokość budynku 8.49 m |
Długość działki 19.9 m |
Styl budynku nowoczesny |
Koszty budowy 300-350 tys., tylko z kosztorysem |
Pow. użytkowa 132.92 m² |
Powierzchnia zabudowy 124.6 m² |
Garaż 1 stanowisko |
Szerokość działki 22.7 m |
Typ domu jednorodzinny całoroczny |
Kalenica równoległa do drogi |
Kąt nachylenia dachu 40 ° |
Rodzaj garażu w bryle |
Funkcje dodatkowe z pralnią |
Rodzaj dachu dwuspadowy |
Kubatura 784.45 m³ |
Długość działki 19.9 m |
Koszty budowy 300-350 tys., tylko z kosztorysem |
Ilość pokoi 5 |
Kondygnacje parterowy+poddasze |
Technologia murowany |
Obiekt dom |
Strop żelbetowy |
Liczba łazieniek 2 |
Szerokość budynku 13.65 m |
Kominek kominek w projekcie |
Długość budynku 9.9 m |
Piwnica bez podpiwniczenia |
Wysokość budynku 8.49 m |
Styl budynku nowoczesny |
Citus I G1 to kompleksowy projekt domu jednorodzinnego, który łączy nowoczesny styl z praktycznymi rozwiązaniami dla wymagających rodzin. Doskonały wybór dla tych, którzy cenią wygodę użytkowania, solidność konstrukcji oraz estetyczne wykończenie bryły budynku. Dom idealnie wpisuje się w potrzeby inwestorów oczekujących komfortowej przestrzeni na lata.
Przemyślany układ pomieszczeń, obecność kominka, praktyczna pralnia oraz duże przeszklenia sprawiają, że codzienne funkcjonowanie w domu Citus I G1 to prawdziwa przyjemność. Wyjątkowa wytrzymałość, pewność bezpieczeństwa i wysoki standard wykończenia idą tu w parze z estetyką budynku.
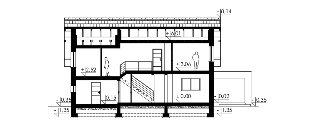
Dom w technologii murowanej został zaprojektowany jako budynek całoroczny, parterowy z użytkowym poddaszem. Na parterze znajdziesz przestronny salon z miejscem na kominek, kuchnię z optymalną organizacją przestrzeni oraz dodatkowe pomieszczenie gospodarcze na pralnię. W części dziennej rozlokowano szerokie okna PVC z roletami zewnętrznymi, dzięki którym wnętrza są jasne i łatwo dostępne.
Wytrzymała, żelbetowa płyta stropowa oraz dwubiegowe schody ze spocznikiem gwarantują komfort i trwałość na długie lata. Dla wygody domowników przewidziano 5 pokoi, co znacząco ułatwia podział na strefę rodzinną i prywatną. Garaż zlokalizowany w bryle budynku z praktyczną segmentową bramą daje dodatkową przestrzeń na samochód i sprzęty domowe. Za ocieplenie odpowiada starannie dobrany pakiet: pustak ceramiczny firmy LEIER, warstwa styropianu Termo Organika oraz estetyczny tynk zewnętrzny.
Dwuspadowy dach z klasycznym kątem nachylenia 40 stopni, którego konstrukcję wzmacnia drewno, pokryty został solidną dachówką ceramiczną, co przekłada się na podwyższoną szczelność i odporność na zmienne warunki pogodowe. Możesz zdecydować się na ogrzewanie gazowe lub na paliwo stałe według własnych potrzeb.
Nie zwlekaj - wybierz projekt domu Citus I G1 i stwórz solidną, wygodną przestrzeń dla swojej rodziny na długie lata! Skorzystaj z profesjonalnego projektu o nowoczesnej stylistyce i wysokiej solidności wykonania, który łączy tradycyjną technologię z praktycznymi rozwiązaniami użytkowymi.
Kupując projekt w technologii murowanej powinieneś budować dom murowany. Zupełna zmiana technologii na szkieletową wymaga przeprojektowania całego budynku ( zmieniają się obciążenia, fundamenty, konstrukcja dachu). Wydamy zgodę na takie przeprojektowanie jednak wiążę się to z dużymi kosztami. Istnieją firmy wykonawcze, które podejmują się zmiany technologii budowy bezpłatnie przy skorzystaniu z ich usług wykonawczych. Zdarza się, że pracownia architektoniczna przygotowuje warianty konkretnego projektu przewidując także inne technologie. Prosimy o sprawdzenie czy istnieje poszukiwana wersja projektu, w zakładce - warianty projektu.
Zwężenie/poszerzenie budynku* to nic innego jak zmiana w projekcie. Istnieje możliwość wprowadzenia takich zmian, we własnym zakresie (podczas adaptacji). *zwężenie/poszerzenie budynku nie powinno stanowić problemu w przypadku domów o dachu dwuspadowym jeśli wiąże się to z wydłużeniem/skróceniem kalenicy dachu.
Poznaj praktyczne porady ekspertów, które ułatwią Ci każdy etap budowy i od wyboru wymarzonego domu po jego wykończenie. Zyskaj pewność, że podejmujesz najlepsze decyzje dzięki sprawdzonym wskazówkom od specjalistów z planz.pl
Wycena szacunkowa, w kwotach netto, nie zawiera instalacji.
bezpłatnie (0zł)
przelew zwykły / PayNow
przy odbiorze
3-5 dni roboczych
Wybierz wygodny dla Ciebie czas kontaktu z naszym Doradcą Technicznym.