Jaworki 9



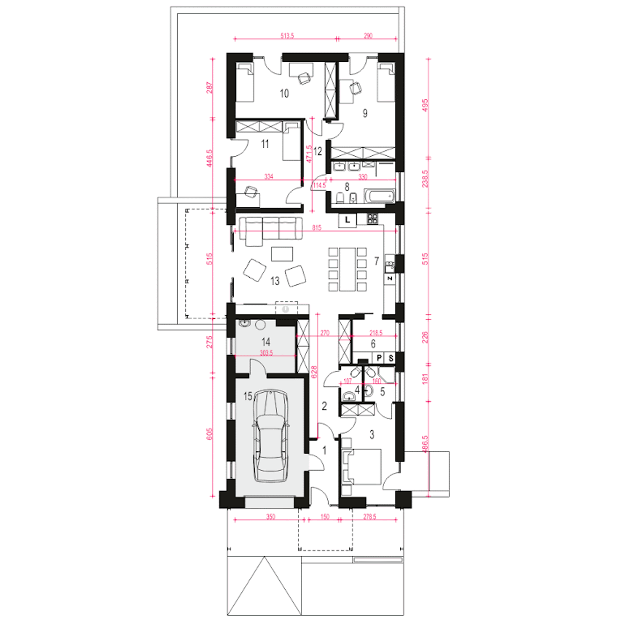
1. Wiatrołap | 4,20 m² |
2. Hol | 12,20 m² |
3. Sypialnia | 13,00 m² |
4. Wc | 1,90 m² |
5. łazienka | 2,80 m² |
6. Spiżarnia/p.pomocnicze | 4,70 m² |
7. Kuchnia | 14,80 m² |
8. łazienka | 7,60 m² |
9. Sypialnia | 14,90 m² |
10. Sypialnia | 14,50 m² |
11. Sypialnia | 14,70 m² |
12. Korytarz | 5,30 m² |
13. Salon | 26,80 m² |
14. Pom. tech.+co | 7,80 m² |
15. Garaż | 20,90 m² |
Wypełnij formularz i otrzymaj rysunki w pdf z dokładnymi wymiarami budynku i pomieszczeń (długość, szerokość, wysokość) dla projektu Carmine z garażem 1-st. A
Ilość pokoi 5 |
Pow. użytkowa 137.2 m² |
Powierzchnia zabudowy 211.3 m² |
Kondygnacje parterowy |
Garaż 1 stanowisko |
Technologia murowany |
Szerokość działki 17.1 m |
Obiekt dom |
Typ domu jednorodzinny całoroczny |
Szerokość budynku 9.1 m |
Kotłownia duża kotłownia |
Długość budynku 23.3 m |
Rodzaj garażu w bryle |
Piwnica bez podpiwniczenia |
Strop gęstożebrowy |
Powierzchnia dachu 256.8 m² |
Rodzaj dachu dwuspadowy |
Kalenica prostopadła do drogi |
Wysokość budynku 7.1 m |
Przechowywanie w kuchni spiżarnia |
Długość działki 31.3 m |
Bryła budynku prosta bryła |
Styl budynku nowoczesny |
Liczba łazieniek 2 |
Kominek kominek w projekcie |
Kąt nachylenia dachu 35 ° |
Koszty budowy 350-400 tys., tylko z kosztorysem |
Ilość pokoi 5 |
Powierzchnia zabudowy 211.3 m² |
Garaż 1 stanowisko |
Szerokość działki 17.1 m |
Typ domu jednorodzinny całoroczny |
Kotłownia duża kotłownia |
Rodzaj garażu w bryle |
Strop gęstożebrowy |
Rodzaj dachu dwuspadowy |
Wysokość budynku 7.1 m |
Długość działki 31.3 m |
Styl budynku nowoczesny |
Kominek kominek w projekcie |
Koszty budowy 350-400 tys., tylko z kosztorysem |
Pow. użytkowa 137.2 m² |
Kondygnacje parterowy |
Technologia murowany |
Obiekt dom |
Szerokość budynku 9.1 m |
Długość budynku 23.3 m |
Piwnica bez podpiwniczenia |
Powierzchnia dachu 256.8 m² |
Kalenica prostopadła do drogi |
Przechowywanie w kuchni spiżarnia |
Bryła budynku prosta bryła |
Liczba łazieniek 2 |
Kąt nachylenia dachu 35 ° |
Kupując projekt w technologii murowanej powinieneś budować dom murowany. Zupełna zmiana technologii na szkieletową wymaga przeprojektowania całego budynku ( zmieniają się obciążenia, fundamenty, konstrukcja dachu). Wydamy zgodę na takie przeprojektowanie jednak wiążę się to z dużymi kosztami. Istnieją firmy wykonawcze, które podejmują się zmiany technologii budowy bezpłatnie przy skorzystaniu z ich usług wykonawczych. Zdarza się, że pracownia architektoniczna przygotowuje warianty konkretnego projektu przewidując także inne technologie. Prosimy o sprawdzenie czy istnieje poszukiwana wersja projektu, w zakładce - warianty projektu.
Zwężenie/poszerzenie budynku* to nic innego jak zmiana w projekcie. Istnieje możliwość wprowadzenia takich zmian, we własnym zakresie (podczas adaptacji). *zwężenie/poszerzenie budynku nie powinno stanowić problemu w przypadku domów o dachu dwuspadowym jeśli wiąże się to z wydłużeniem/skróceniem kalenicy dachu.
Poznaj praktyczne porady ekspertów, które ułatwią Ci każdy etap budowy i od wyboru wymarzonego domu po jego wykończenie. Zyskaj pewność, że podejmujesz najlepsze decyzje dzięki sprawdzonym wskazówkom od specjalistów z planz.pl
Wycena szacunkowa, w kwotach netto, nie zawiera instalacji.
bezpłatnie (0zł)
przelew zwykły / PayNow
przy odbiorze
3-5 dni roboczych (jeśli projekt nie jest koncepcją)
Ciekawy, nowoczesny projekt. Fascynuje mnie ta prosta, a zarazem elegancka architektura. Doskonale wpasowałby się w otoczenie mojej działki. Rozważam tę opcję.
Wybierz wygodny dla Ciebie czas kontaktu z naszym Doradcą Technicznym.