22 299 20 00 (pn-nd 9.30 do 19.30)

Gotowy projekt budynku Budynek magazynowy - GMC11a (ID: 32778)

3490 2025-12-23
Budynek magazynowy - GMC11a - 445m²
Projekt dostępny od ręki
Gwarantujemy najniższą cenę
3490 zł
W cenie projektu:
📣 GRATIS: WIERTARKA UDAROWA
  • Tablica + dziennik budowy
  • 16 projektów ogrodowych
  • Darmowa wysyłka (kurier, paczkomat, pobranie)
  • 30 dni na zwrot
  • Pozwolenie na zmiany z podpisem i pieczęcią autora
  • GRATIS: Wiertarka Udarowa
22 299 20 00 (pn-nd 9.30 do 19.30)

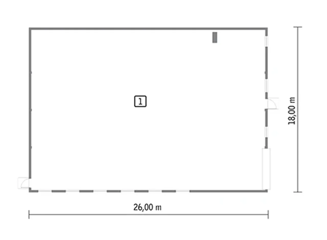
Rzuty gotowego projektu budynku Budynek magazynowy - GMC11a

1. Pom. magazynowe 444,97 m²

Zapoznaj się ze szczegółami projektu - pobierz bezpłatne rysunki do: Budynek magazynowy - GMC11a

Wypełnij formularz i otrzymaj rysunki w pdf z dokładnymi wymiarami budynku i pomieszczeń (długość, szerokość, wysokość) dla projektu Budynek magazynowy - GMC11a

Parametry Techniczne gotowego projektu domu Budynek magazynowy - GMC11a

Pow. użytkowa 445 m²
Powierzchnia zabudowy 468 m²
Kondygnacje parterowy
Technologia murowany
Obiekt inny
Rodzaj dachu dwuspadowy
Kubatura 2747.2 m³
Obiekt inny (szczegóły) obiekty handl./biur.
Kąt nachylenia dachu 20 °

Nasze prawdziwe opinie z Google

Dodatki do projektu Budynek magazynowy - GMC11a

Dodatki możesz kupić razem z projektem lub dokupić po czasie

[Planz] Tablica budowlana (0 zł)

[Planz] Dziennik budowy (0 zł)

[Planz] Wiertarka udarowa (0 zł)

[Planz] Zgoda na zmiany w projekcie (0 zł)

[Planz] Projekty architektury ogrodowej (0 zł)

[Planz] Charakterystyka energetyczna, tylko dla domów całorocznych (0 zł)

Wysyłka i płatność za projekt Budynek magazynowy - GMC11a

Koszty wysyłki

bezpłatnie (0zł)

Formy płatności

przelew zwykły / PayNow
przy odbiorze

Czas oczekiwania

3-5 dni roboczych (jeśli projekt nie wymaga aktualizacji)

Podobne projekty do budynku Budynek magazynowy - GMC11a

4540 zł

Budynek garażowo-magazynowy z poddaszem użytkowym - GMC27c

powierzchnia 452.17 m²
technologia murowany
stanowisk w garażu brak informacji
kondygnacja parterowy
Zobacz projekt

Projekt w kategoriach

PRACOWNIA: Kolekcja Murator arch. Stanisław Grudzień