Bono



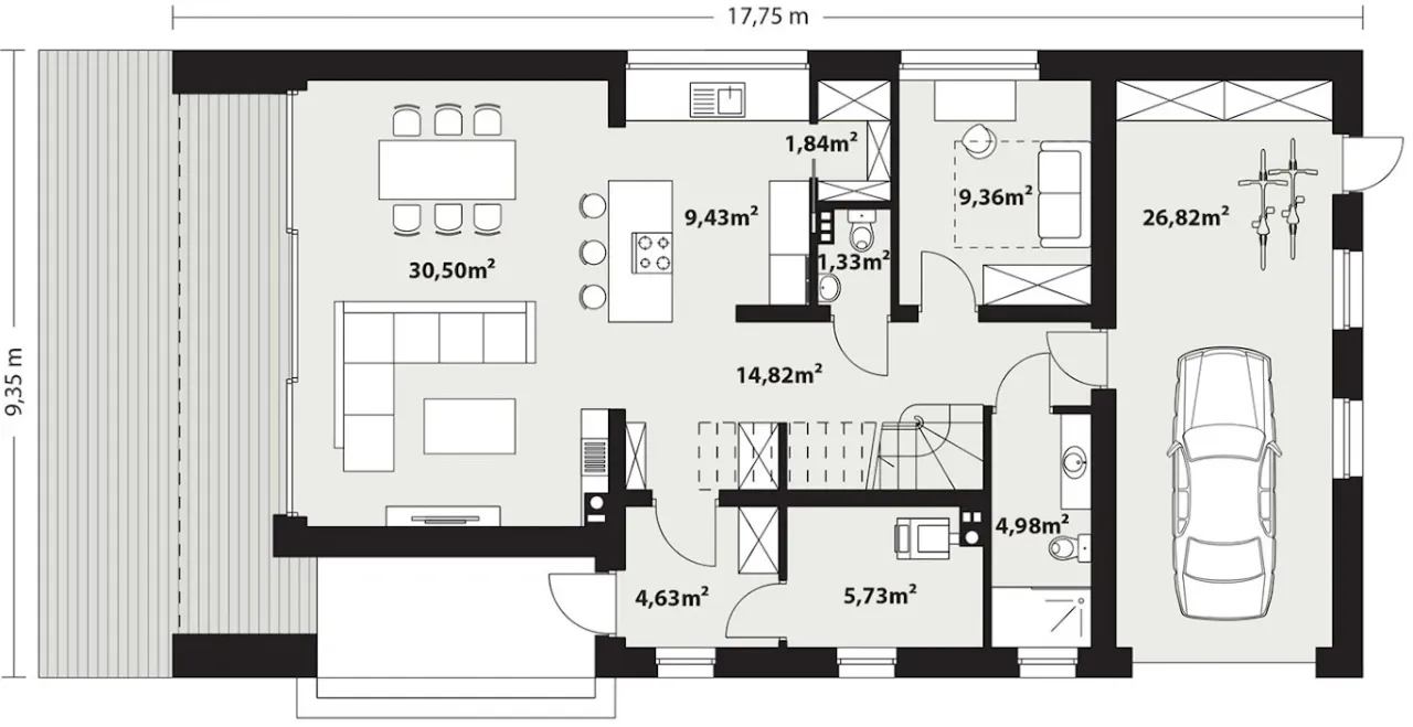
1. Wiatrołap | 4,63 m² |
2. Korytarz | 14,82 m² |
3. Salon | 30,50 m² |
4. Kuchnia | 9,43 m² |
5. Spiżarnia | 1,84 m² |
6. Wc | 1,33 m² |
7. Pokój | 9,36 m² |
8. łazienka | 4,98 m² |
9. Kotłownia | 5,73 m² |
10. Garaż | 26,82 m² |
1. Korytarz | 15,39 (19,75) m² |
2. Sypialnia | 18,84 (23,15) m² |
3. Garderoba | 2,70 (4,79) m² |
4. łazienka | 3,14 (4,44) m² |
5. łazienka | 5,94 (8,40) m² |
6. Pralnia | 3,48 (4,94) m² |
7. Sypialnia | 10,48 (14,18) m² |
8. Garderoba | 1,84 (3,26) m² |
9. Sypialnia | 10,48 (14,18) m² |
10. Schowek | 0,79 (2,21) m² |
Wypełnij formularz i otrzymaj rysunki w pdf z dokładnymi wymiarami budynku i pomieszczeń (długość, szerokość, wysokość) dla projektu Bono 4 B
Pow. użytkowa 155.7 m² |
Ilość pokoi 5 |
Powierzchnia zabudowy 153.88 m² |
Kondygnacje parterowy+poddasze |
Garaż 1 stanowisko |
Technologia murowany |
Szerokość działki 25.75 m |
Obiekt dom |
Typ domu jednorodzinny całoroczny |
Długość budynku 9.35 m |
Piwnica bez podpiwniczenia |
Strop żelbetowy |
Kubatura 931 m³ |
Rodzaj garażu w bryle |
Kalenica równoległa do drogi |
Powierzchnia dachu 216 m² |
Rodzaj dachu dwuspadowy |
Długość działki 18.35 m |
Ogrzewanie gaz, paliwo stałe |
Funkcje dodatkowe z pralnią |
Wysokość budynku 8.15 m |
Przechowywanie w kuchni spiżarnia |
Liczba łazieniek 3 |
Styl budynku nowoczesny |
Kominek kominek w projekcie |
Szerokość budynku 17.75 m |
Taras z tarasem |
Kąt nachylenia dachu 40 ° |
Koszty budowy 350-400 tys., tylko z kosztorysem |
Pow. użytkowa 155.7 m² |
Powierzchnia zabudowy 153.88 m² |
Garaż 1 stanowisko |
Szerokość działki 25.75 m |
Typ domu jednorodzinny całoroczny |
Piwnica bez podpiwniczenia |
Kubatura 931 m³ |
Kalenica równoległa do drogi |
Rodzaj dachu dwuspadowy |
Ogrzewanie gaz, paliwo stałe |
Wysokość budynku 8.15 m |
Liczba łazieniek 3 |
Kominek kominek w projekcie |
Taras z tarasem |
Koszty budowy 350-400 tys., tylko z kosztorysem |
Ilość pokoi 5 |
Kondygnacje parterowy+poddasze |
Technologia murowany |
Obiekt dom |
Długość budynku 9.35 m |
Strop żelbetowy |
Rodzaj garażu w bryle |
Powierzchnia dachu 216 m² |
Długość działki 18.35 m |
Funkcje dodatkowe z pralnią |
Przechowywanie w kuchni spiżarnia |
Styl budynku nowoczesny |
Szerokość budynku 17.75 m |
Kąt nachylenia dachu 40 ° |
Kupując projekt w technologii murowanej powinieneś budować dom murowany. Zupełna zmiana technologii na szkieletową wymaga przeprojektowania całego budynku ( zmieniają się obciążenia, fundamenty, konstrukcja dachu). Wydamy zgodę na takie przeprojektowanie jednak wiążę się to z dużymi kosztami. Istnieją firmy wykonawcze, które podejmują się zmiany technologii budowy bezpłatnie przy skorzystaniu z ich usług wykonawczych. Zdarza się, że pracownia architektoniczna przygotowuje warianty konkretnego projektu przewidując także inne technologie. Prosimy o sprawdzenie czy istnieje poszukiwana wersja projektu, w zakładce - warianty projektu.
Zwężenie/poszerzenie budynku* to nic innego jak zmiana w projekcie. Istnieje możliwość wprowadzenia takich zmian, we własnym zakresie (podczas adaptacji). *zwężenie/poszerzenie budynku nie powinno stanowić problemu w przypadku domów o dachu dwuspadowym jeśli wiąże się to z wydłużeniem/skróceniem kalenicy dachu.
Poznaj praktyczne porady ekspertów, które ułatwią Ci każdy etap budowy i od wyboru wymarzonego domu po jego wykończenie. Zyskaj pewność, że podejmujesz najlepsze decyzje dzięki sprawdzonym wskazówkom od specjalistów z planz.pl
Wycena szacunkowa, w kwotach netto, nie zawiera instalacji.
bezpłatnie (0zł)
przelew zwykły / PayNow
przy odbiorze
2-5 dni roboczych (jeśli projekt nie jest koncepcją)
Wybierz wygodny dla Ciebie czas kontaktu z naszym Doradcą Technicznym.