BK-14 segment



Zawartość projektu
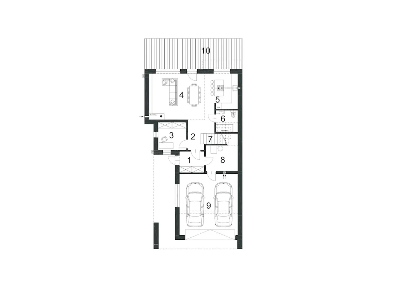
1. Wiatrołap | 5,16 m² |
2. Korytarz | 5,93 m² |
3. Gabinet | 7,70 m² |
4. Salon + jadalnia | 29,45 m² |
5. Kuchnia | 8,00 m² |
6. łazienka | 4,71 m² |
7. Schody | 2,73 m² |
8. Pom. techniczne | 9,25 m² |
9. Garaż | 34,90 m² |
10. Taras | 28,32 m² |
1. Korytarz | 10,55 m² |
2. Pokój | 14,55 m² |
3. Pokój | 12,17 m² |
4. Pralnia | 2,63 m² |
5. łazienka | 8,20 m² |
6. Pokój | 12,95 m² |
7. Garderoba | 7,68 m² |
8. Taras | 32,49 m² |
Wypełnij formularz i otrzymaj rysunki w pdf z dokładnymi wymiarami budynku i pomieszczeń (długość, szerokość, wysokość) dla projektu BK-14
Ilość pokoi 5 |
Pow. użytkowa 132.75 m² |
Powierzchnia zabudowy 281.69 m² |
Kondygnacje piętrowy |
Garaż 2 stanowiska |
Technologia murowany |
Szerokość działki 25.14 m |
Obiekt dom |
Typ domu bliźniak i dwurodzinny |
Funkcje dodatkowe z pralnią |
Długość budynku 18.64 m |
Piwnica bez podpiwniczenia |
Kubatura 529.22 m³ |
Styl budynku nowoczesny |
Wysokość budynku 6.59 m |
Długość działki 26.74 m |
Liczba łazieniek 2 |
Kominek kominek w projekcie |
Strop żelbetowy |
Rodzaj garażu z przodu |
Kotłownia duża kotłownia |
Kalenica bez znaczenia |
Szerokość budynku 17.14 m |
Rodzaj dachu płaski |
Taras z tarasem |
Koszty budowy 350-400 tys., tylko z kosztorysem |
Ilość pokoi 5 |
Powierzchnia zabudowy 281.69 m² |
Garaż 2 stanowiska |
Szerokość działki 25.14 m |
Typ domu bliźniak i dwurodzinny |
Długość budynku 18.64 m |
Kubatura 529.22 m³ |
Wysokość budynku 6.59 m |
Liczba łazieniek 2 |
Strop żelbetowy |
Kotłownia duża kotłownia |
Szerokość budynku 17.14 m |
Taras z tarasem |
Pow. użytkowa 132.75 m² |
Kondygnacje piętrowy |
Technologia murowany |
Obiekt dom |
Funkcje dodatkowe z pralnią |
Piwnica bez podpiwniczenia |
Styl budynku nowoczesny |
Długość działki 26.74 m |
Kominek kominek w projekcie |
Rodzaj garażu z przodu |
Kalenica bez znaczenia |
Rodzaj dachu płaski |
Koszty budowy 350-400 tys., tylko z kosztorysem |
Kupując projekt w technologii murowanej powinieneś budować dom murowany. Zupełna zmiana technologii na szkieletową wymaga przeprojektowania całego budynku ( zmieniają się obciążenia, fundamenty, konstrukcja dachu). Wydamy zgodę na takie przeprojektowanie jednak wiążę się to z dużymi kosztami. Istnieją firmy wykonawcze, które podejmują się zmiany technologii budowy bezpłatnie przy skorzystaniu z ich usług wykonawczych. Zdarza się, że pracownia architektoniczna przygotowuje warianty konkretnego projektu przewidując także inne technologie. Prosimy o sprawdzenie czy istnieje poszukiwana wersja projektu, w zakładce - warianty projektu.
Zwężenie/poszerzenie budynku* to nic innego jak zmiana w projekcie. Istnieje możliwość wprowadzenia takich zmian, we własnym zakresie (podczas adaptacji). *zwężenie/poszerzenie budynku nie powinno stanowić problemu w przypadku domów o dachu dwuspadowym jeśli wiąże się to z wydłużeniem/skróceniem kalenicy dachu.
Poznaj praktyczne porady ekspertów, które ułatwią Ci każdy etap budowy i od wyboru wymarzonego domu po jego wykończenie. Zyskaj pewność, że podejmujesz najlepsze decyzje dzięki sprawdzonym wskazówkom od specjalistów z planz.pl
Wycena szacunkowa, w kwotach netto, nie zawiera instalacji.
bezpłatnie (0zł)
przelew zwykły / PayNow
przy odbiorze
2-5 dni roboczych (jeśli projekt nie jest koncepcją)
Wybierz wygodny dla Ciebie czas kontaktu z naszym Doradcą Technicznym.