APS 326



1. Wiatrołap | 5,80 m² |
2. Spiżarnia | 3,40 m² |
3. Kuchnia | 10,90 m² |
4. Pokój dzienny z jadalnią | 32,00 m² |
5. Garderoba | 4,80 m² |
6. Hol | 7,50 m² |
7. Wc | 2,10 m² |
8. Hol | 5,30 m² |
9. łazienka | 6,50 m² |
10. Schody | 2,10 m² |
11. Pokój | 14,50 m² |
12. Pokój | 13,10 m² |
13. Kotłownia | 7,70 m² |
14. Garaż | 19,70 m² |
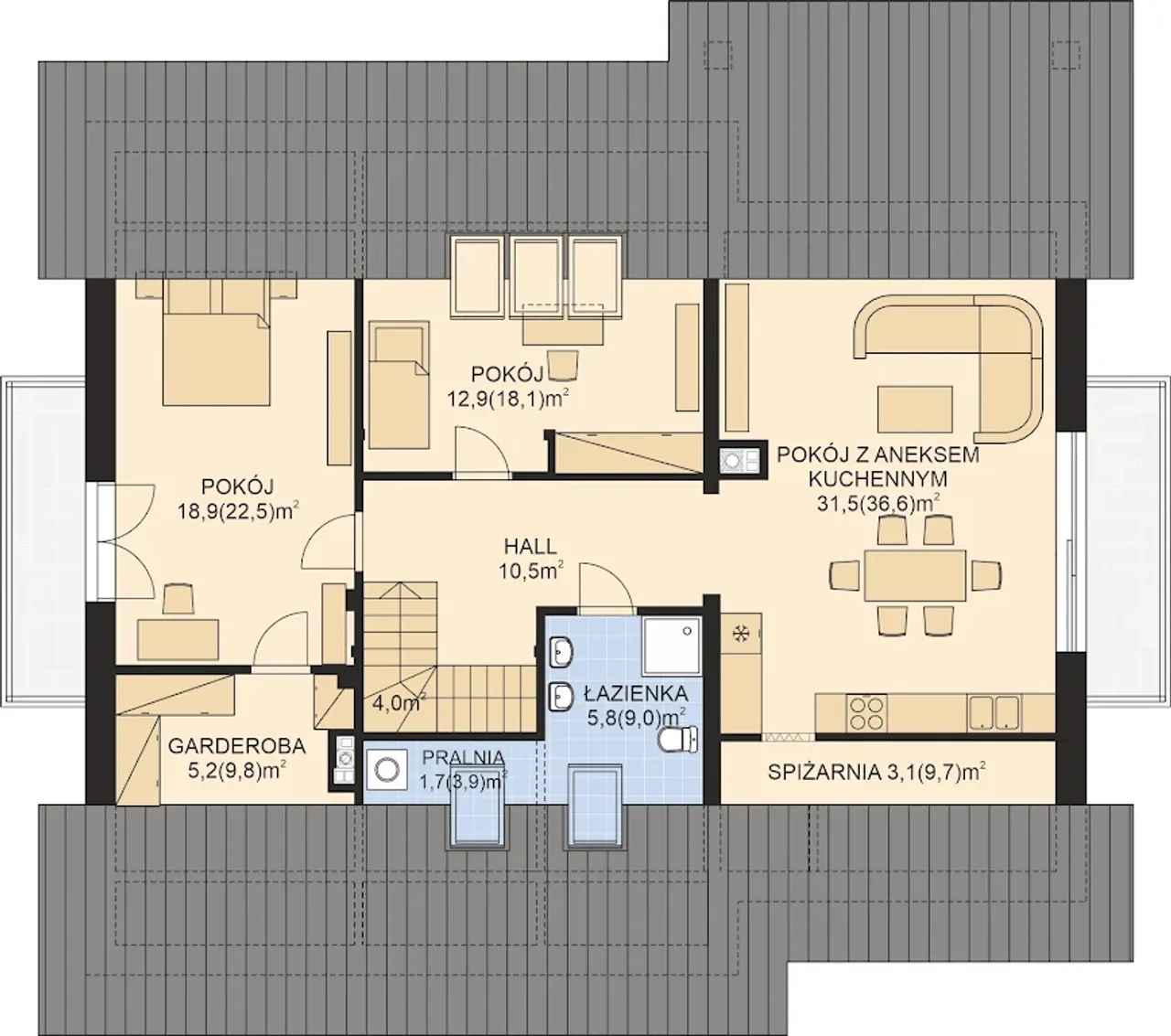
1. Pokój | 31,50 (36,60) m² |
2. Pom. gospodarcze | 3,10 (9,70) m² |
3. łazienka | 5,80 (9,00) m² |
4. Pralnia | 1,70 (3,90) m² |
5. Schody | 4,00 m² |
6. Korytarz | 10,50 m² |
7. Garderoba | 5,20 (9,80) m² |
8. Pokój | 18,90 (22,50) m² |
9. Pokój | 12,90 (18,10) m² |
Wypełnij formularz i otrzymaj rysunki w pdf z dokładnymi wymiarami budynku i pomieszczeń (długość, szerokość, wysokość) dla projektu APS 326 wariant 2 dwurodzinny
Pow. użytkowa 200.8 m² |
Ilość pokoi 6 |
Powierzchnia zabudowy 175.8 m² |
Kondygnacje parterowy+poddasze |
Garaż 1 stanowisko |
Technologia murowany |
Szerokość działki 22.75 m |
Obiekt dom |
Typ domu jednorodzinny całoroczny |
Wysokość budynku 7.79 m |
Kalenica równoległa do drogi |
Styl budynku nowoczesny |
Liczba łazieniek 2 |
Szerokość budynku 14.75 m |
Kominek kominek w projekcie |
Kąt nachylenia dachu 30 ° |
Długość budynku 12.75 m |
Rodzaj dachu dwuspadowy |
Piwnica bez podpiwniczenia |
Kubatura 607 m³ |
Powierzchnia dachu 266.4 m² |
Długość działki 20.75 m |
Koszty budowy 450-500 tys., tylko z kosztorysem |
Pow. użytkowa 200.8 m² |
Powierzchnia zabudowy 175.8 m² |
Garaż 1 stanowisko |
Szerokość działki 22.75 m |
Typ domu jednorodzinny całoroczny |
Kalenica równoległa do drogi |
Liczba łazieniek 2 |
Kominek kominek w projekcie |
Długość budynku 12.75 m |
Piwnica bez podpiwniczenia |
Powierzchnia dachu 266.4 m² |
Koszty budowy 450-500 tys., tylko z kosztorysem |
Ilość pokoi 6 |
Kondygnacje parterowy+poddasze |
Technologia murowany |
Obiekt dom |
Wysokość budynku 7.79 m |
Styl budynku nowoczesny |
Szerokość budynku 14.75 m |
Kąt nachylenia dachu 30 ° |
Rodzaj dachu dwuspadowy |
Kubatura 607 m³ |
Długość działki 20.75 m |
Kupując projekt w technologii murowanej powinieneś budować dom murowany. Zupełna zmiana technologii na szkieletową wymaga przeprojektowania całego budynku ( zmieniają się obciążenia, fundamenty, konstrukcja dachu). Wydamy zgodę na takie przeprojektowanie jednak wiążę się to z dużymi kosztami. Istnieją firmy wykonawcze, które podejmują się zmiany technologii budowy bezpłatnie przy skorzystaniu z ich usług wykonawczych. Zdarza się, że pracownia architektoniczna przygotowuje warianty konkretnego projektu przewidując także inne technologie. Prosimy o sprawdzenie czy istnieje poszukiwana wersja projektu, w zakładce - warianty projektu.
Zwężenie/poszerzenie budynku* to nic innego jak zmiana w projekcie. Istnieje możliwość wprowadzenia takich zmian, we własnym zakresie (podczas adaptacji). *zwężenie/poszerzenie budynku nie powinno stanowić problemu w przypadku domów o dachu dwuspadowym jeśli wiąże się to z wydłużeniem/skróceniem kalenicy dachu.
Poznaj praktyczne porady ekspertów, które ułatwią Ci każdy etap budowy i od wyboru wymarzonego domu po jego wykończenie. Zyskaj pewność, że podejmujesz najlepsze decyzje dzięki sprawdzonym wskazówkom od specjalistów z planz.pl
Wycena szacunkowa, w kwotach netto, nie zawiera instalacji.
bezpłatnie (0zł)
przelew zwykły / PayNow
przy odbiorze
3-5 dni roboczych
Wybierz wygodny dla Ciebie czas kontaktu z naszym Doradcą Technicznym.