APS 123



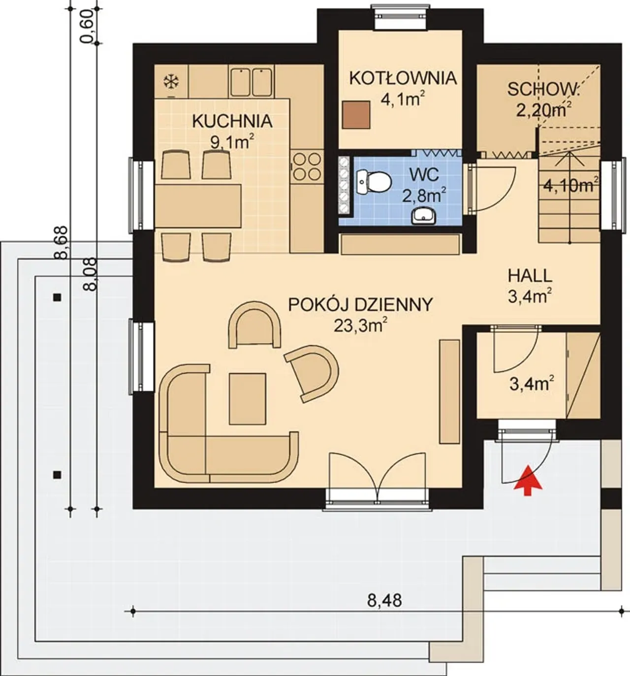
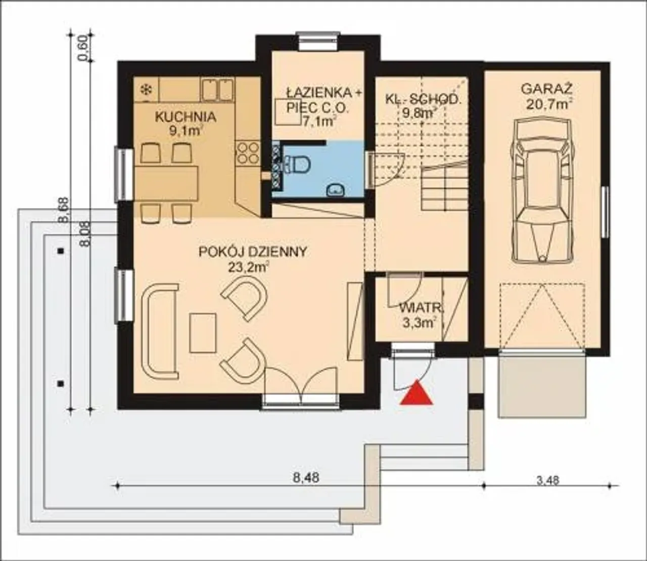
1. Wiatrołap | 3,30 m² |
2. Klatka schodowa | 9,80 m² |
3. Pokój dzienny | 23,20 m² |
4. Kuchnia | 9,10 m² |
5. łazienka + piec c.o. | 7,10 m² |
6. Garaż | 20,70 m² |
Wypełnij formularz i otrzymaj rysunki w pdf z dokładnymi wymiarami budynku i pomieszczeń (długość, szerokość, wysokość) dla projektu APS 123+G
Ilość pokoi 4 |
Pow. użytkowa 106.4 m² |
Powierzchnia zabudowy 94.2 m² |
Kondygnacje parterowy+poddasze |
Garaż 1 stanowisko |
Technologia murowany |
Szerokość działki 20 m |
Obiekt dom |
Typ domu jednorodzinny całoroczny |
Długość budynku 8.68 m |
Piwnica bez podpiwniczenia |
Kubatura 570 m³ |
Powierzchnia dachu 169.8 m² |
Kalenica równoległa do drogi |
Długość działki 16.7 m |
Styl budynku tradycyjny |
Wysokość budynku 8.17 m |
Liczba łazieniek 1 |
Kąt nachylenia dachu 42 ° |
Szerokość budynku 11.96 m |
Rodzaj dachu dwuspadowy |
Kominek kominek opcjonalnie |
Koszty budowy tylko z kosztorysem, 250-300 tys. |
Ilość pokoi 4 |
Powierzchnia zabudowy 94.2 m² |
Garaż 1 stanowisko |
Szerokość działki 20 m |
Typ domu jednorodzinny całoroczny |
Piwnica bez podpiwniczenia |
Powierzchnia dachu 169.8 m² |
Długość działki 16.7 m |
Wysokość budynku 8.17 m |
Kąt nachylenia dachu 42 ° |
Rodzaj dachu dwuspadowy |
Koszty budowy tylko z kosztorysem, 250-300 tys. |
Pow. użytkowa 106.4 m² |
Kondygnacje parterowy+poddasze |
Technologia murowany |
Obiekt dom |
Długość budynku 8.68 m |
Kubatura 570 m³ |
Kalenica równoległa do drogi |
Styl budynku tradycyjny |
Liczba łazieniek 1 |
Szerokość budynku 11.96 m |
Kominek kominek opcjonalnie |
Kupując projekt w technologii murowanej powinieneś budować dom murowany. Zupełna zmiana technologii na szkieletową wymaga przeprojektowania całego budynku ( zmieniają się obciążenia, fundamenty, konstrukcja dachu). Wydamy zgodę na takie przeprojektowanie jednak wiążę się to z dużymi kosztami. Istnieją firmy wykonawcze, które podejmują się zmiany technologii budowy bezpłatnie przy skorzystaniu z ich usług wykonawczych. Zdarza się, że pracownia architektoniczna przygotowuje warianty konkretnego projektu przewidując także inne technologie. Prosimy o sprawdzenie czy istnieje poszukiwana wersja projektu, w zakładce - warianty projektu.
Zwężenie/poszerzenie budynku* to nic innego jak zmiana w projekcie. Istnieje możliwość wprowadzenia takich zmian, we własnym zakresie (podczas adaptacji). *zwężenie/poszerzenie budynku nie powinno stanowić problemu w przypadku domów o dachu dwuspadowym jeśli wiąże się to z wydłużeniem/skróceniem kalenicy dachu.
Poznaj praktyczne porady ekspertów, które ułatwią Ci każdy etap budowy i od wyboru wymarzonego domu po jego wykończenie. Zyskaj pewność, że podejmujesz najlepsze decyzje dzięki sprawdzonym wskazówkom od specjalistów z planz.pl
Wycena szacunkowa, w kwotach netto, nie zawiera instalacji.
bezpłatnie (0zł)
przelew zwykły / PayNow
przy odbiorze
3-5 dni roboczych
Wybierz wygodny dla Ciebie czas kontaktu z naszym Doradcą Technicznym.