Amber



1. Sień | 5,36 m² |
2. Szatnia | 1,35 m² |
3. Spiżarnia | 1,33 m² |
4. Kuchnia | 14,71 m² |
5. Salon + jadalnia | 45,00 m² |
6. Holl | 14,73 m² |
7. Pokój / biuro | 14,78 m² |
8. łazienka | 3,50 m² |
9. Kotłownia | 6,97 m² |
10. Garaż | 35,91 m² |
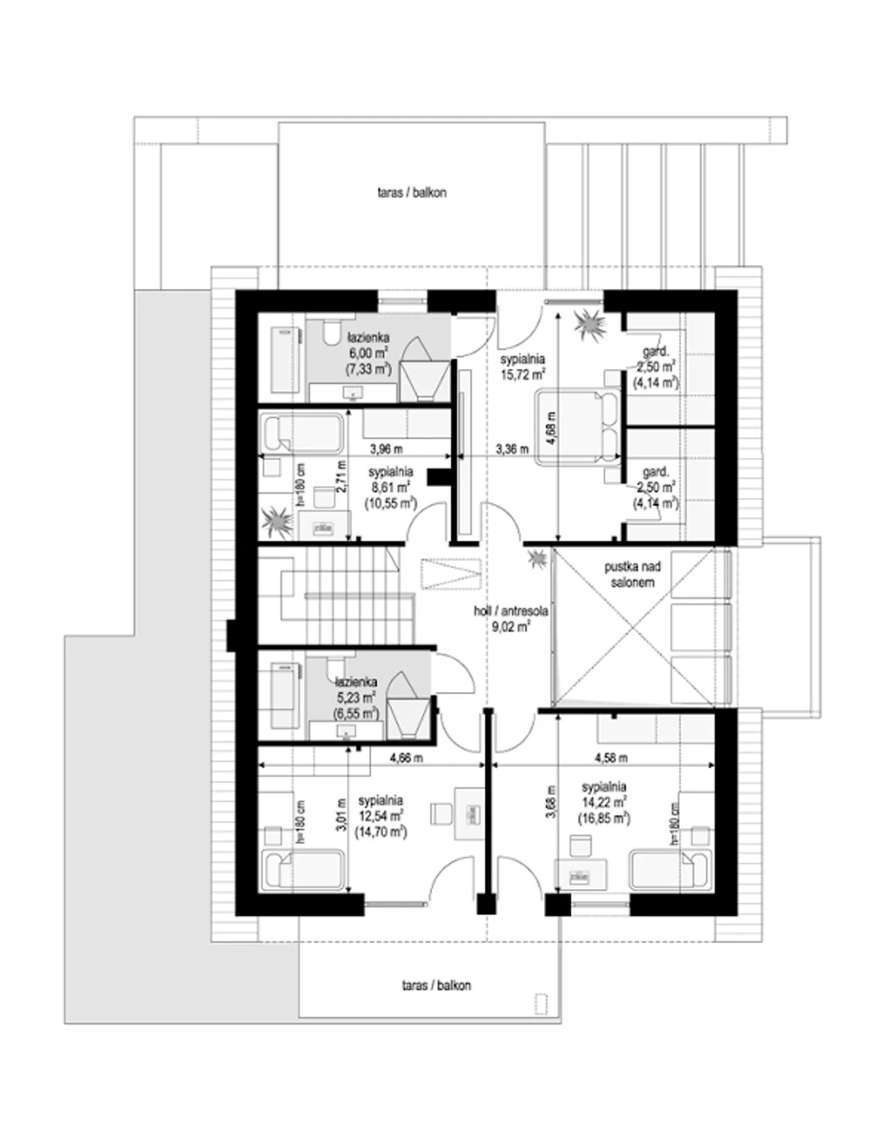
1. Holl / antresola | 9,02 m² |
2. Sypialnia | 14,22 (16,85) m² |
3. Sypialnia | 12,54 (14,70) m² |
4. łazienka | 5,23 (6,55) m² |
5. Sypialnia | 8,61 (10,55) m² |
6. łazienka | 6,00 (7,33) m² |
7. Sypialnia | 15,72 m² |
8. Garderoba | 2,50 (4,14) m² |
9. Garderoba | 2,50 (4,14) m² |
Wypełnij formularz i otrzymaj rysunki w pdf z dokładnymi wymiarami budynku i pomieszczeń (długość, szerokość, wysokość) dla projektu Amber 4
Ilość pokoi 6 |
Pow. użytkowa 177.13 m² |
Kondygnacje parterowy+poddasze |
Garaż 2 stanowiska |
Technologia murowany |
Szerokość działki 21.06 m |
Obiekt dom |
Typ domu jednorodzinny całoroczny |
Funkcje dodatkowe z dwoma wejściami |
Powierzchnia dachu 191.48 m² |
Przechowywanie w kuchni spiżarnia |
Wysokość budynku 9 m |
Długość działki 25.6 m |
Styl budynku nowoczesny |
Liczba łazieniek 3 |
Kominek kominek w projekcie |
Szerokość budynku 14.06 m |
Kotłownia duża kotłownia |
Kąt nachylenia dachu 40 ° |
Strop żelbetowy |
Długość budynku 18.6 m |
Rodzaj garażu z przodu |
Taras z tarasem |
Kalenica prostopadła do drogi |
Kubatura 991 m³ |
Rodzaj dachu dwuspadowy |
Piwnica bez podpiwniczenia |
Koszty budowy 450-500 tys., tylko z kosztorysem |
Ilość pokoi 6 |
Kondygnacje parterowy+poddasze |
Technologia murowany |
Obiekt dom |
Funkcje dodatkowe z dwoma wejściami |
Przechowywanie w kuchni spiżarnia |
Długość działki 25.6 m |
Liczba łazieniek 3 |
Szerokość budynku 14.06 m |
Kąt nachylenia dachu 40 ° |
Długość budynku 18.6 m |
Taras z tarasem |
Kubatura 991 m³ |
Piwnica bez podpiwniczenia |
Pow. użytkowa 177.13 m² |
Garaż 2 stanowiska |
Szerokość działki 21.06 m |
Typ domu jednorodzinny całoroczny |
Powierzchnia dachu 191.48 m² |
Wysokość budynku 9 m |
Styl budynku nowoczesny |
Kominek kominek w projekcie |
Kotłownia duża kotłownia |
Strop żelbetowy |
Rodzaj garażu z przodu |
Kalenica prostopadła do drogi |
Rodzaj dachu dwuspadowy |
Koszty budowy 450-500 tys., tylko z kosztorysem |
Poszukujesz funkcjonalnego projektu domu jednorodzinnego, który łączy nowoczesność z praktycznymi rozwiązaniami? Ten parterowy dom z poddaszem użytkowym, dwustanowiskowym garażem z przodu i przestronnym tarasem powstał z myślą o rodzinach, które cenią swobodę oraz wygodę codziennego życia. Nowoczesna bryła, wykończenie drewnianą szalówką i starannie zaplanowane wnętrza sprawiają, że dom prezentuje się efektownie i świetnie dopasowuje do każdego krajobrazu.
Dom wybudowany na podstawie projektu Amber 4 będzie sprzyjać zarówno niespiesznej codzienności, jak i spotkaniom w gronie bliskich. Główna kalenica usytuowana prostopadle do drogi podkreśla reprezentacyjny charakter budynku, a innowacyjne rozwiązania techniczne przekładają się na wysoki komfort eksploatacji - przez cały rok.
Projekt domu Amber 4 wyróżnia się dwuspadowym dachem o kącie nachylenia 40°, który przykuwa uwagę swoją wyrazistą linią oraz trwałym pokryciem z blachy na rąbek. Ściany wykonane z pustaków Porotherm w połączeniu z ociepleniem styropianem gwarantują bardzo dobrą termoizolację i znakomitą akustykę wnętrz. Drewniana szalówka na elewacji wprowadza naturalny klimat i świetnie komponuje się z nowoczesnym charakterem budynku.
Monolityczny, żelbetowy strop oraz solidne fundamenty z ław betonowych i ścian z bloczków sprawiają, że dom cechuje się wysoką trwałością oraz odpornością na czas. Przemyślana funkcja użytkowa - z sześcioma pokojami i podziałem na strefę dzienną i nocną - doskonale sprawdzi się zarówno dla rodzin z dziećmi, jak i osób pracujących z domu. Kominek wprowadza nastrojowe światło i ciepło, a mechaniczna wentylacja dba o zdrowe warunki w każdym pomieszczeniu.
Nie czekaj - postaw na nowoczesny projekt domu Amber 4 i ciesz się przemyślaną przestrzenią oraz wyjątkowym komfortem już od pierwszego dnia. Skontaktuj się, by zamówić projekt i ruszyć z budową wymarzonego domu!
Kupując projekt w technologii murowanej powinieneś budować dom murowany. Zupełna zmiana technologii na szkieletową wymaga przeprojektowania całego budynku ( zmieniają się obciążenia, fundamenty, konstrukcja dachu). Wydamy zgodę na takie przeprojektowanie jednak wiążę się to z dużymi kosztami. Istnieją firmy wykonawcze, które podejmują się zmiany technologii budowy bezpłatnie przy skorzystaniu z ich usług wykonawczych. Zdarza się, że pracownia architektoniczna przygotowuje warianty konkretnego projektu przewidując także inne technologie. Prosimy o sprawdzenie czy istnieje poszukiwana wersja projektu, w zakładce - warianty projektu.
Zwężenie/poszerzenie budynku* to nic innego jak zmiana w projekcie. Istnieje możliwość wprowadzenia takich zmian, we własnym zakresie (podczas adaptacji). *zwężenie/poszerzenie budynku nie powinno stanowić problemu w przypadku domów o dachu dwuspadowym jeśli wiąże się to z wydłużeniem/skróceniem kalenicy dachu.
Poznaj praktyczne porady ekspertów, które ułatwią Ci każdy etap budowy i od wyboru wymarzonego domu po jego wykończenie. Zyskaj pewność, że podejmujesz najlepsze decyzje dzięki sprawdzonym wskazówkom od specjalistów z planz.pl
Wycena szacunkowa, w kwotach netto, nie zawiera instalacji.
bezpłatnie (0zł)
przelew zwykły / PayNow
przy odbiorze
3-10 dni roboczych
Wybierz wygodny dla Ciebie czas kontaktu z naszym Doradcą Technicznym.