Alfi 2



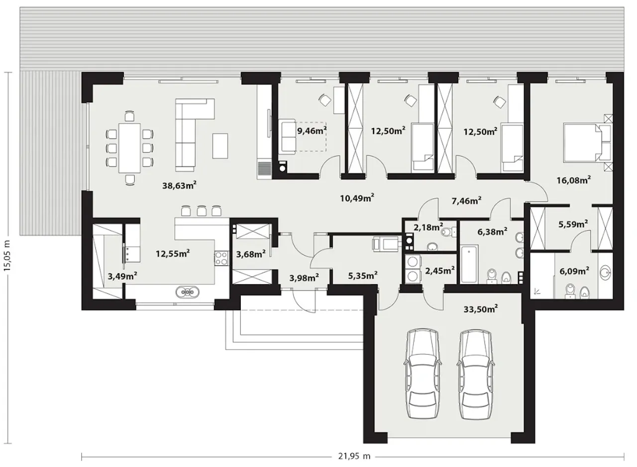
1. Wiatrołap | 3,98 m² |
2. Garderoba | 3,68 m² |
3. Hol | 10,49 m² |
4. Korytarz | 7,46 m² |
5. Salon + jadalnia | 38,63 m² |
6. Kuchnia | 12,55 m² |
7. Spiżarnia | 3,49 m² |
8. Pokój | 9,46 m² |
9. Pokój | 12,50 m² |
10. Pokój | 12,50 m² |
11. Sypialnia | 16,08 m² |
12. Garderoba | 5,59 m² |
13. łazienka | 6,09 m² |
14. łazienka | 6,38 m² |
15. Wc | 2,18 m² |
16. Kotłownia | 5,35 m² |
17. Pralnia | 2,45 m² |
18. Garaż | 33,50 m² |
Wypełnij formularz i otrzymaj rysunki w pdf z dokładnymi wymiarami budynku i pomieszczeń (długość, szerokość, wysokość) dla projektu Alfi
Pow. użytkowa 158.86 m² |
Ilość pokoi 5 |
Powierzchnia zabudowy 246.35 m² |
Kondygnacje parterowy |
Garaż 2 stanowiska |
Technologia murowany |
Szerokość działki 28.95 m |
Obiekt dom |
Typ domu jednorodzinny całoroczny |
Powierzchnia dachu 260 m² |
Rodzaj garażu z przodu |
Długość działki 24.05 m |
Ogrzewanie gaz, paliwo stałe |
Kalenica równoległa do drogi |
Wysokość budynku 7.5 m |
Rodzaj dachu dwuspadowy |
Liczba łazieniek 2 |
Funkcje dodatkowe z pralnią |
Przechowywanie w kuchni spiżarnia |
Bryła budynku plan litery T |
Kominek kominek w projekcie |
Szerokość budynku 21.95 m |
Styl budynku nowoczesny |
Taras z tarasem |
Kąt nachylenia dachu 35 ° |
Długość budynku 15.05 m |
Piwnica bez podpiwniczenia |
Kubatura 1345 m³ |
Strop żelbetowy |
Koszty budowy 400-450 tys., tylko z kosztorysem |
Pow. użytkowa 158.86 m² |
Powierzchnia zabudowy 246.35 m² |
Garaż 2 stanowiska |
Szerokość działki 28.95 m |
Typ domu jednorodzinny całoroczny |
Rodzaj garażu z przodu |
Ogrzewanie gaz, paliwo stałe |
Wysokość budynku 7.5 m |
Liczba łazieniek 2 |
Przechowywanie w kuchni spiżarnia |
Kominek kominek w projekcie |
Styl budynku nowoczesny |
Kąt nachylenia dachu 35 ° |
Piwnica bez podpiwniczenia |
Strop żelbetowy |
Ilość pokoi 5 |
Kondygnacje parterowy |
Technologia murowany |
Obiekt dom |
Powierzchnia dachu 260 m² |
Długość działki 24.05 m |
Kalenica równoległa do drogi |
Rodzaj dachu dwuspadowy |
Funkcje dodatkowe z pralnią |
Bryła budynku plan litery T |
Szerokość budynku 21.95 m |
Taras z tarasem |
Długość budynku 15.05 m |
Kubatura 1345 m³ |
Koszty budowy 400-450 tys., tylko z kosztorysem |
Przedstawiony gotowy projekt domu całorocznego Alfi będzie domem parterowym, z garażem dwustanowiskowym. W dokumentacji projektu przewidziano kominek. Dom Alfi będzie mógł zostać wykonany w technologii tradycyjnej - murowanej. Autor proponuje jako podstawowe źródło ogrzewania gaz, z opcjonalną, alternatywną możliwością zastosowania pieca na paliwo stałe. Alfi będzie domem niepodpiwniczonym, jeśli inwestor we własnym zakresie nie zleci doprojektowania piwnicy. Przewidziano tu dach dwuspadowy o kącie nachylenia 35 stopni. Na rzutach zaplanowano dwie łazienki. Projekt domu Alfi prezentuje się bardzo ciekawie, jego nowoczesna elewacja i styl wykończenia, przykłują uwagę również bardzo wymagających inwestorów.
Kupując projekt w technologii murowanej powinieneś budować dom murowany. Zupełna zmiana technologii na szkieletową wymaga przeprojektowania całego budynku ( zmieniają się obciążenia, fundamenty, konstrukcja dachu). Wydamy zgodę na takie przeprojektowanie jednak wiążę się to z dużymi kosztami. Istnieją firmy wykonawcze, które podejmują się zmiany technologii budowy bezpłatnie przy skorzystaniu z ich usług wykonawczych. Zdarza się, że pracownia architektoniczna przygotowuje warianty konkretnego projektu przewidując także inne technologie. Prosimy o sprawdzenie czy istnieje poszukiwana wersja projektu, w zakładce - warianty projektu.
Zwężenie/poszerzenie budynku* to nic innego jak zmiana w projekcie. Istnieje możliwość wprowadzenia takich zmian, we własnym zakresie (podczas adaptacji). *zwężenie/poszerzenie budynku nie powinno stanowić problemu w przypadku domów o dachu dwuspadowym jeśli wiąże się to z wydłużeniem/skróceniem kalenicy dachu.
Poznaj praktyczne porady ekspertów, które ułatwią Ci każdy etap budowy i od wyboru wymarzonego domu po jego wykończenie. Zyskaj pewność, że podejmujesz najlepsze decyzje dzięki sprawdzonym wskazówkom od specjalistów z planz.pl
Wycena szacunkowa, w kwotach netto, nie zawiera instalacji.
bezpłatnie (0zł)
przelew zwykły / PayNow
przy odbiorze
2-5 dni roboczych (jeśli projekt nie jest koncepcją)
Wybierz wygodny dla Ciebie czas kontaktu z naszym Doradcą Technicznym.