Ajaks



Zawartość projektu
1. Wiatrołap | 2,90 m² |
2. Hol + komunikacja | 9,00 m² |
3. Spiżarnia | 1,48 m² |
4. Kuchnia | 10,00 m² |
5. Salon z jadalnią | 31,90 m² |
6. Gabinet | 12,15 m² |
7. łazienka | 3,20 m² |
8. Pom. gospodarcze | 4,10 m² |
9. Kotłownia | 6,60 m² |
10. Garaż | 39,60 m² |
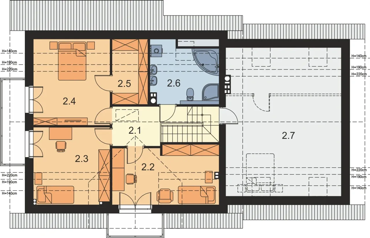
1. Komunikacja | 6,57 (6,57) m² |
2. Pokój | 13,40 (17,30) m² |
3. Pokój | 11,57 (16,48) m² |
4. Pokój | 13,42 (18,33) m² |
5. Garderoba | 4,23 (6,54) m² |
6. łazienka | 7,49 (10,80) m² |
7. Strych | 34,74 (47,34) m² |
Wypełnij formularz i otrzymaj rysunki w pdf z dokładnymi wymiarami budynku i pomieszczeń (długość, szerokość, wysokość) dla projektu Ajaks Max G2
Ilość pokoi 5 |
Pow. użytkowa 138.01 m² |
Powierzchnia zabudowy 159.42 m² |
Kondygnacje parterowy+poddasze |
Garaż 2 stanowiska |
Technologia murowany |
Szerokość działki 24.14 m |
Obiekt dom |
Typ domu jednorodzinny całoroczny |
Długość budynku 9.64 m |
Piwnica bez podpiwniczenia |
Kubatura 1003.87 m³ |
Strop żelbetowy |
Powierzchnia dachu 292.15 m² |
Rodzaj garażu przyklejony |
Długość działki 18.54 m |
Ogrzewanie gaz, paliwo stałe |
Kalenica równoległa do drogi |
Liczba łazieniek 2 |
Wysokość budynku 8.6 m |
Rodzaj dachu dwuspadowy |
Kominek kominek w projekcie |
Funkcje dodatkowe ze strychem |
Przechowywanie w kuchni spiżarnia |
Bryła budynku prosta bryła |
Kotłownia duża kotłownia |
Szerokość budynku 17.14 m |
Styl budynku nowoczesny |
Taras z tarasem |
Kąt nachylenia dachu 40 ° |
Koszty budowy 300-350 tys., tylko z kosztorysem |
Ilość pokoi 5 |
Powierzchnia zabudowy 159.42 m² |
Garaż 2 stanowiska |
Szerokość działki 24.14 m |
Typ domu jednorodzinny całoroczny |
Piwnica bez podpiwniczenia |
Strop żelbetowy |
Rodzaj garażu przyklejony |
Ogrzewanie gaz, paliwo stałe |
Liczba łazieniek 2 |
Rodzaj dachu dwuspadowy |
Funkcje dodatkowe ze strychem |
Bryła budynku prosta bryła |
Szerokość budynku 17.14 m |
Taras z tarasem |
Koszty budowy 300-350 tys., tylko z kosztorysem |
Pow. użytkowa 138.01 m² |
Kondygnacje parterowy+poddasze |
Technologia murowany |
Obiekt dom |
Długość budynku 9.64 m |
Kubatura 1003.87 m³ |
Powierzchnia dachu 292.15 m² |
Długość działki 18.54 m |
Kalenica równoległa do drogi |
Wysokość budynku 8.6 m |
Kominek kominek w projekcie |
Przechowywanie w kuchni spiżarnia |
Kotłownia duża kotłownia |
Styl budynku nowoczesny |
Kąt nachylenia dachu 40 ° |
Wybierz projekt Ajaks Max G2 i stwórz funkcjonalny, trwały oraz wyjątkowo praktyczny dom dla rodziny! Energooszczędna bryła, przestronny garaż na dwa auta i duża kotłownia to tylko niektóre atuty tego projektu. Postaw na nowoczesność i solidną technologię budowy, która wyróżni Twój dom na tle innych realizacji.
Projekt Ajaks Max G2 sprosta oczekiwaniom nawet najbardziej wymagających inwestorów. Odpowiedni dla rodzin szukających domu trwałego i wygodnego przez cały rok, który łatwo dopasujesz do zmian w potrzebach mieszkańców.
Dom prezentuje elegancką, nowoczesną stylistykę w ramie prostokątnej bryły z dachem dwuspadowym o kącie nachylenia 40°, dzięki czemu harmonijnie wkomponuje się w miejską lub podmiejską zabudowę. Strych umożliwia dalszą rozbudowę przestrzeni mieszkalnej, a parterowa kondygnacja z poddaszem przekłada się na wygodną organizację życia rodzinnego oraz jasny podział stref funkcjonalnych.
Budynek zaprojektowano na żelbetowym, solidnym stropie, opartym na betonie komórkowym z izolacją styropianową o imponującej grubości 20 cm, co bezpośrednio przekłada się na efektywność energetyczną i realne oszczędności na ogrzewaniu. Wentylację można zrealizować zarówno w tradycyjny sposób, jak i przez rekuperację. Pokrycie dachowe - dachówka cementowa lub ceramiczna - to wykończenie odporne na warunki atmosferyczne i estetyczne przez długie lata.
Garaż na dwa samochody zlokalizowany jest przy bryle budynku, co ułatwia komunikację, a przestrzeń tarasu naturalnie łączy dom z ogrodem, dodając mu walorów wizualnych i użytkowych. Projekt Ajaks Max G2 wpisze się idealnie w potrzeby rodzin szukających funkcjonalności, nowoczesnych rozwiązań oraz rozwojowego potencjału domu jednorodzinnego całorocznego.
Zainwestuj w bezpieczny, solidny i stylowy dom - wybierz projekt Ajaks Max G2 już dziś i zaplanuj budowę, która spełni Twoje oczekiwania teraz i w przyszłości!
Kupując projekt w technologii murowanej powinieneś budować dom murowany. Zupełna zmiana technologii na szkieletową wymaga przeprojektowania całego budynku ( zmieniają się obciążenia, fundamenty, konstrukcja dachu). Wydamy zgodę na takie przeprojektowanie jednak wiążę się to z dużymi kosztami. Istnieją firmy wykonawcze, które podejmują się zmiany technologii budowy bezpłatnie przy skorzystaniu z ich usług wykonawczych. Zdarza się, że pracownia architektoniczna przygotowuje warianty konkretnego projektu przewidując także inne technologie. Prosimy o sprawdzenie czy istnieje poszukiwana wersja projektu, w zakładce - warianty projektu.
Zwężenie/poszerzenie budynku* to nic innego jak zmiana w projekcie. Istnieje możliwość wprowadzenia takich zmian, we własnym zakresie (podczas adaptacji). *zwężenie/poszerzenie budynku nie powinno stanowić problemu w przypadku domów o dachu dwuspadowym jeśli wiąże się to z wydłużeniem/skróceniem kalenicy dachu.
Poznaj praktyczne porady ekspertów, które ułatwią Ci każdy etap budowy i od wyboru wymarzonego domu po jego wykończenie. Zyskaj pewność, że podejmujesz najlepsze decyzje dzięki sprawdzonym wskazówkom od specjalistów z planz.pl
Wycena szacunkowa, w kwotach netto, nie zawiera instalacji.
bezpłatnie (0zł)
przelew zwykły / PayNow
przy odbiorze
1-2 dni roboczych (jeśli projekt nie jest koncepcją)
Wybierz wygodny dla Ciebie czas kontaktu z naszym Doradcą Technicznym.