Ajaks



Zawartość projektu
1. Wiatrołap | 3,38 m² |
2. Hol | 4,30 m² |
3. Spiżarnia | 1,45 m² |
4. Kuchnia | 10,34 m² |
5. Salon + jadalnia | 30,29 m² |
6. Pokój / gabinet | 11,13 m² |
7. Komunikacja | 6,20 m² |
8. Garderoba | 2,63 m² |
9. łazienka | 4,80 m² |
10. Kotłownia | 7,20 m² |
11. Garaż | 19,80 m² |
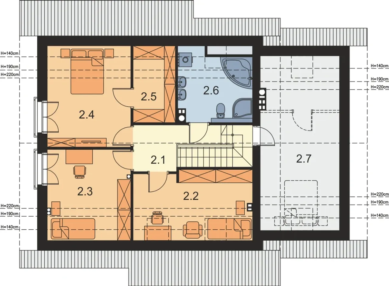
1. Komunikacja | 5,78 (5,78) m² |
2. Pokój | 11,28 (16,48) m² |
3. Pokój | 11,68 (15,25) m² |
4. Pokój | 13,40 (16,97) m² |
5. Garderoba | 4,70 (6,54) m² |
6. łazienka | 7,70 (10,25) m² |
7. Strych | 20,00 (27,37) m² |
Wypełnij formularz i otrzymaj rysunki w pdf z dokładnymi wymiarami budynku i pomieszczeń (długość, szerokość, wysokość) dla projektu Ajaks 4
Pow. użytkowa 136.26 m² |
Ilość pokoi 5 |
Powierzchnia zabudowy 131.35 m² |
Kondygnacje parterowy+poddasze |
Garaż 1 stanowisko |
Technologia murowany |
Szerokość działki 20.99 m |
Obiekt dom |
Typ domu jednorodzinny całoroczny |
Piwnica bez podpiwniczenia |
Strop żelbetowy |
Kubatura 853.47 m³ |
Rodzaj garażu przyklejony |
Kalenica równoległa do drogi |
Powierzchnia dachu 250.21 m² |
Rodzaj dachu dwuspadowy |
Długość działki 18.54 m |
Funkcje dodatkowe ze strychem |
Wysokość budynku 8.77 m |
Przechowywanie w kuchni spiżarnia |
Bryła budynku prosta bryła |
Liczba łazieniek 2 |
Styl budynku nowoczesny |
Kominek kominek w projekcie |
Szerokość budynku 13.99 m |
Kotłownia duża kotłownia |
Kąt nachylenia dachu 40 ° |
Długość budynku 9.64 m |
Koszty budowy 300-350 tys., tylko z kosztorysem |
Pow. użytkowa 136.26 m² |
Powierzchnia zabudowy 131.35 m² |
Garaż 1 stanowisko |
Szerokość działki 20.99 m |
Typ domu jednorodzinny całoroczny |
Strop żelbetowy |
Rodzaj garażu przyklejony |
Powierzchnia dachu 250.21 m² |
Długość działki 18.54 m |
Wysokość budynku 8.77 m |
Bryła budynku prosta bryła |
Styl budynku nowoczesny |
Szerokość budynku 13.99 m |
Kąt nachylenia dachu 40 ° |
Koszty budowy 300-350 tys., tylko z kosztorysem |
Ilość pokoi 5 |
Kondygnacje parterowy+poddasze |
Technologia murowany |
Obiekt dom |
Piwnica bez podpiwniczenia |
Kubatura 853.47 m³ |
Kalenica równoległa do drogi |
Rodzaj dachu dwuspadowy |
Funkcje dodatkowe ze strychem |
Przechowywanie w kuchni spiżarnia |
Liczba łazieniek 2 |
Kominek kominek w projekcie |
Kotłownia duża kotłownia |
Długość budynku 9.64 m |
Odkryj projekt domu Ajaks 4 - propozycję stworzoną dla wymagających inwestorów, którzy poszukują wygody, funkcjonalności i nietuzinkowej estetyki w nowoczesnej formie. Ajaks 4 to rozwiązanie dla rodzin ceniących przestronne wnętrza, elastyczność w aranżacji i trwałość konstrukcji przez długie lata.
Ten projekt domu jednorodzinnego to połączenie prostej bryły, ekonomii budowy oraz pełnego wykorzystania każdego metra powierzchni. Dom Ajaks 4 sprawdzi się zarówno na przedmieściach, jak i w podmiejskim krajobrazie, oferując wygodę codziennego życia w otoczeniu współczesnych rozwiązań.
Dom Ajaks 4 powstał z myślą o inwestorach stawiających na sprawdzone rozwiązania i nowoczesny wygląd. Konstrukcja opiera się na fundamentach betonowych, gwarantujących stabilność nawet na wymagających gruntach. Ściany zewnętrzne mają budowę dwuwarstwową: 24 cm betonu komórkowego uzupełniono warstwą 20 cm styropianu. Polaczenie to zwiększa efektywność termiczną i generuje realne oszczędności na ogrzewaniu. We wnętrzach znajdziesz ściany z betonu komórkowego lub wygodnej płyty gipsowo-kartonowej, którą z łatwością dopasujesz do własnych potrzeb.
Dom nie posiada piwnicy, co sprawia, że budowa przebiega szybciej i jest mniej kosztowna. Solidny, żelbetowy strop umożliwia dowolną aranżację poddasza, co daje dodatkową elastyczność. W drewnianą więźbę dachową wpisano nowoczesną dachówkę cementową lub ceramiczną - wybór należy do Ciebie. Przemyślana wentylacja grawitacyjna zadba o zdrowy mikroklimat, a opcja rekuperacji pozwoli obniżyć koszty eksploatacji. Do dyspozycji masz pięć pokoi, w tym miłą oku antresolę oraz funkcjonalną spiżarnię przy kuchni.
Nie zwlekaj - zamów gotowy projekt Ajaks 4 i stwórz dom, który w pełni wykorzysta walory Twojej działki oraz spełni potrzeby Twojej rodziny przez lata!
Kupując projekt w technologii murowanej powinieneś budować dom murowany. Zupełna zmiana technologii na szkieletową wymaga przeprojektowania całego budynku ( zmieniają się obciążenia, fundamenty, konstrukcja dachu). Wydamy zgodę na takie przeprojektowanie jednak wiążę się to z dużymi kosztami. Istnieją firmy wykonawcze, które podejmują się zmiany technologii budowy bezpłatnie przy skorzystaniu z ich usług wykonawczych. Zdarza się, że pracownia architektoniczna przygotowuje warianty konkretnego projektu przewidując także inne technologie. Prosimy o sprawdzenie czy istnieje poszukiwana wersja projektu, w zakładce - warianty projektu.
Zwężenie/poszerzenie budynku* to nic innego jak zmiana w projekcie. Istnieje możliwość wprowadzenia takich zmian, we własnym zakresie (podczas adaptacji). *zwężenie/poszerzenie budynku nie powinno stanowić problemu w przypadku domów o dachu dwuspadowym jeśli wiąże się to z wydłużeniem/skróceniem kalenicy dachu.
Poznaj praktyczne porady ekspertów, które ułatwią Ci każdy etap budowy i od wyboru wymarzonego domu po jego wykończenie. Zyskaj pewność, że podejmujesz najlepsze decyzje dzięki sprawdzonym wskazówkom od specjalistów z planz.pl
Wycena szacunkowa, w kwotach netto, nie zawiera instalacji.
bezpłatnie (0zł)
przelew zwykły / PayNow
przy odbiorze
1-2 dni roboczych (jeśli projekt nie jest koncepcją)
Wybierz wygodny dla Ciebie czas kontaktu z naszym Doradcą Technicznym.