22 299 20 00 (pn-nd 9.30 do 19.30)

Gotowy projekt budynku AG G22 (ID: 31508)

1400 2025-12-23
AG G22 - 33.45m²
Projekt dostępny od ręki
Gwarantujemy najniższą cenę
1400 zł
W cenie projektu:
  • Tablica + dziennik budowy
  • 16 projektów ogrodowych
  • Darmowa wysyłka (kurier, paczkomat, pobranie)
  • 30 dni na zwrot
  • Pozwolenie na zmiany z podpisem i pieczęcią autora
22 299 20 00 (pn-nd 9.30 do 19.30)

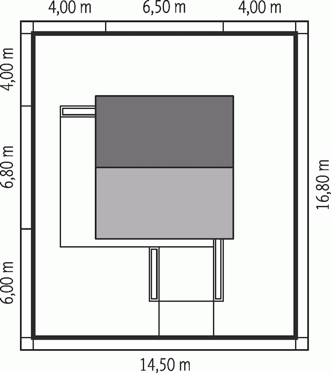
Rzuty gotowego projektu budynku AG G22

1. Garaż 20,98 m²
2. Pomieszczenie gospodarcze 9,98 m²
3. Toaleta 2,49 m²

Zapoznaj się ze szczegółami projektu - pobierz bezpłatne rysunki do: AG G22

Wypełnij formularz i otrzymaj rysunki w pdf z dokładnymi wymiarami budynku i pomieszczeń (długość, szerokość, wysokość) dla projektu AG G22

Parametry Techniczne gotowego projektu domu AG G22

Pow. użytkowa 33.45 m²
Powierzchnia zabudowy 44.33 m²
Kondygnacje parterowy
Garaż 1 stanowisko
Technologia murowany
Obiekt inny
Kubatura 86.23 m³
Wysokość budynku 4.74 m
Rodzaj dachu dwuspadowy
Obiekt inny (szczegóły) garaże
Kąt nachylenia dachu 25 °
Szerokość budynku 6.8 m
Kalenica równoległa do drogi
Długość budynku 6.5 m
Przestrzeń z pom. gospodarczym

Nasze prawdziwe opinie z Google

Dodatki do projektu AG G22

Dodatki możesz kupić razem z projektem lub dokupić po czasie

[Archiportal] Dodatkowy egzemplarz projektu (700 zł)

[Archipelag] Projekt wentylacji mechanicznej (1500 zł)

[Archipelag] Projekt instalacji węzła grzewczego z pompą ciepła (1500 zł)

[Archipelag] Projekt ogrzewania podłogowego (1000 zł)

[Archipelag] Projekt paneli fotowoltaicznych (1000 zł)

[Planz] Tablica budowlana (0 zł)

[Planz] Dziennik budowy (0 zł)

[Planz] Wiertarka udarowa (0 zł)

[Planz] Zgoda na zmiany w projekcie (0 zł)

[Planz] Projekty architektury ogrodowej (0 zł)

[Planz] Charakterystyka energetyczna, tylko dla domów całorocznych (0 zł)

Wysyłka i płatność za projekt AG G22

Koszty wysyłki

bezpłatnie (0zł)

Formy płatności

przelew zwykły / PayNow
przy odbiorze

Czas oczekiwania

3-5 dni roboczych (jeśli projekt nie wymaga aktualizacji)

Podobne projekty do budynku AG G22

PRACOWNIA: Archipelag Artur Wójciak