Zachodzące słońce - M230



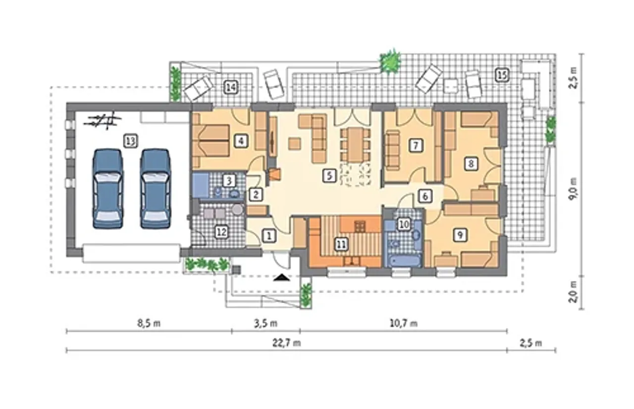
1. Przedsionek | 4,70 (4,70) m² |
2. Korytarz | 2,20 (2,20) m² |
3. łazienka | 3,70 (3,70) m² |
4. Sypialnia | 11,50 (11,50) m² |
5. Pokój dzienny | 30,50 (30,50) m² |
6. Korytarz | 3,50 (3,50) m² |
7. Sypialnia | 10,60 (10,60) m² |
8. Sypialnia | 12,80 (12,80) m² |
9. Sypialnia | 12,00 (12,00) m² |
10. łazienka | 5,40 (5,40) m² |
11. Kuchnia | 10,00 (10,00) m² |
12. Kotłownia | 5,90 (5,90) m² |
13. Garaż | 40,70 (40,70) m² |
14. Taras | 5,50 m² |
15. Taras | 44,10 m² |
Wypełnij formularz i otrzymaj rysunki w pdf z dokładnymi wymiarami budynku i pomieszczeń (długość, szerokość, wysokość) dla projektu Zachodzące słońce - wariant VI - M230f
Pow. użytkowa 106.9 m² |
Ilość pokoi 5 |
Powierzchnia zabudowy 194 m² |
Kondygnacje parterowy |
Garaż 2 stanowiska |
Technologia murowany |
Szerokość działki 30.7 m |
Obiekt dom |
Typ domu jednorodzinny całoroczny |
Kubatura 893.9 m³ |
Styl budynku nowoczesny |
Wysokość budynku 6.32 m |
Długość działki 17 m |
Liczba łazieniek 2 |
Kąt nachylenia dachu 30 ° |
Kalenica równoległa do drogi |
Rodzaj garażu w bryle |
Kominek kominek w projekcie |
Szerokość budynku 22.7 m |
Rodzaj dachu wielospadowy |
Taras z tarasem |
Długość budynku 9 m |
Piwnica bez podpiwniczenia |
Koszty budowy 300-350 tys., tylko z kosztorysem |
Pow. użytkowa 106.9 m² |
Powierzchnia zabudowy 194 m² |
Garaż 2 stanowiska |
Szerokość działki 30.7 m |
Typ domu jednorodzinny całoroczny |
Styl budynku nowoczesny |
Długość działki 17 m |
Kąt nachylenia dachu 30 ° |
Rodzaj garażu w bryle |
Szerokość budynku 22.7 m |
Taras z tarasem |
Piwnica bez podpiwniczenia |
Ilość pokoi 5 |
Kondygnacje parterowy |
Technologia murowany |
Obiekt dom |
Kubatura 893.9 m³ |
Wysokość budynku 6.32 m |
Liczba łazieniek 2 |
Kalenica równoległa do drogi |
Kominek kominek w projekcie |
Rodzaj dachu wielospadowy |
Długość budynku 9 m |
Koszty budowy 300-350 tys., tylko z kosztorysem |
Kupując projekt w technologii murowanej powinieneś budować dom murowany. Zupełna zmiana technologii na szkieletową wymaga przeprojektowania całego budynku ( zmieniają się obciążenia, fundamenty, konstrukcja dachu). Wydamy zgodę na takie przeprojektowanie jednak wiążę się to z dużymi kosztami. Istnieją firmy wykonawcze, które podejmują się zmiany technologii budowy bezpłatnie przy skorzystaniu z ich usług wykonawczych. Zdarza się, że pracownia architektoniczna przygotowuje warianty konkretnego projektu przewidując także inne technologie. Prosimy o sprawdzenie czy istnieje poszukiwana wersja projektu, w zakładce - warianty projektu.
Zwężenie/poszerzenie budynku* to nic innego jak zmiana w projekcie. Istnieje możliwość wprowadzenia takich zmian, we własnym zakresie (podczas adaptacji). *zwężenie/poszerzenie budynku nie powinno stanowić problemu w przypadku domów o dachu dwuspadowym jeśli wiąże się to z wydłużeniem/skróceniem kalenicy dachu.
Poznaj praktyczne porady ekspertów, które ułatwią Ci każdy etap budowy i od wyboru wymarzonego domu po jego wykończenie. Zyskaj pewność, że podejmujesz najlepsze decyzje dzięki sprawdzonym wskazówkom od specjalistów z planz.pl
Wycena szacunkowa, w kwotach netto, nie zawiera instalacji.
bezpłatnie (0zł)
przelew zwykły / PayNow
przy odbiorze
3-5 dni roboczych (jeśli projekt nie wymaga aktualizacji)
Ciekawy projekt, warto rozważyć podczas poszukiwania idealnego domu! Unikalna konstrukcja, która przyciąga wzrok.
Wybierz wygodny dla Ciebie czas kontaktu z naszym Doradcą Technicznym.