Złota II z garażem i wiatą A



Wypełnij formularz i otrzymaj rysunki w pdf z dokładnymi wymiarami budynku i pomieszczeń (długość, szerokość, wysokość) dla projektu Złota II z garażem i wiatą A
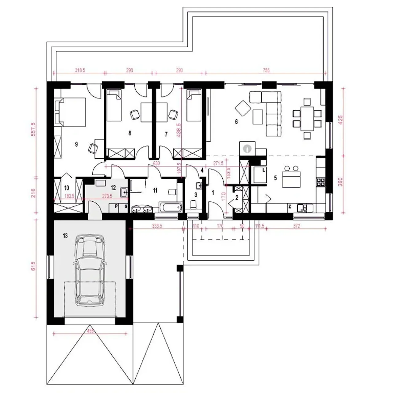
Pow. użytkowa 119.1 m² |
Powierzchnia zabudowy 194.9 m² |
Kondygnacje parterowy |
Garaż 1 stanowisko |
Technologia murowany |
Szerokość działki 26.2 m |
Obiekt dom |
Typ domu jednorodzinny całoroczny |
Kąt nachylenia dachu 35 ° |
Kalenica równoległa do drogi |
Szerokość budynku 18.2 m |
Rodzaj garażu z przodu |
Długość budynku 15.5 m |
Rodzaj dachu dwuspadowy |
Piwnica bez podpiwniczenia |
Powierzchnia dachu 240.7 m² |
Bryła budynku plan litery L |
Wysokość budynku 6.9 m |
Długość działki 23.5 m |
Styl budynku nowoczesny |
Koszty budowy 300-350 tys., tylko z kosztorysem |
Pow. użytkowa 119.1 m² |
Kondygnacje parterowy |
Technologia murowany |
Obiekt dom |
Kąt nachylenia dachu 35 ° |
Szerokość budynku 18.2 m |
Długość budynku 15.5 m |
Piwnica bez podpiwniczenia |
Bryła budynku plan litery L |
Długość działki 23.5 m |
Koszty budowy 300-350 tys., tylko z kosztorysem |
Powierzchnia zabudowy 194.9 m² |
Garaż 1 stanowisko |
Szerokość działki 26.2 m |
Typ domu jednorodzinny całoroczny |
Kalenica równoległa do drogi |
Rodzaj garażu z przodu |
Rodzaj dachu dwuspadowy |
Powierzchnia dachu 240.7 m² |
Wysokość budynku 6.9 m |
Styl budynku nowoczesny |
Kupując projekt w technologii murowanej powinieneś budować dom murowany. Zupełna zmiana technologii na szkieletową wymaga przeprojektowania całego budynku ( zmieniają się obciążenia, fundamenty, konstrukcja dachu). Wydamy zgodę na takie przeprojektowanie jednak wiążę się to z dużymi kosztami. Istnieją firmy wykonawcze, które podejmują się zmiany technologii budowy bezpłatnie przy skorzystaniu z ich usług wykonawczych. Zdarza się, że pracownia architektoniczna przygotowuje warianty konkretnego projektu przewidując także inne technologie. Prosimy o sprawdzenie czy istnieje poszukiwana wersja projektu, w zakładce - warianty projektu.
Zwężenie/poszerzenie budynku* to nic innego jak zmiana w projekcie. Istnieje możliwość wprowadzenia takich zmian, we własnym zakresie (podczas adaptacji). *zwężenie/poszerzenie budynku nie powinno stanowić problemu w przypadku domów o dachu dwuspadowym jeśli wiąże się to z wydłużeniem/skróceniem kalenicy dachu.
Poznaj praktyczne porady ekspertów, które ułatwią Ci każdy etap budowy i od wyboru wymarzonego domu po jego wykończenie. Zyskaj pewność, że podejmujesz najlepsze decyzje dzięki sprawdzonym wskazówkom od specjalistów z planz.pl
Wycena szacunkowa, w kwotach netto, nie zawiera instalacji.
bezpłatnie (0zł)
przelew zwykły / PayNow
przy odbiorze
3-5 dni roboczych (jeśli projekt nie jest koncepcją)
Wybierz wygodny dla Ciebie czas kontaktu z naszym Doradcą Technicznym.