Wygodny bez garażu B



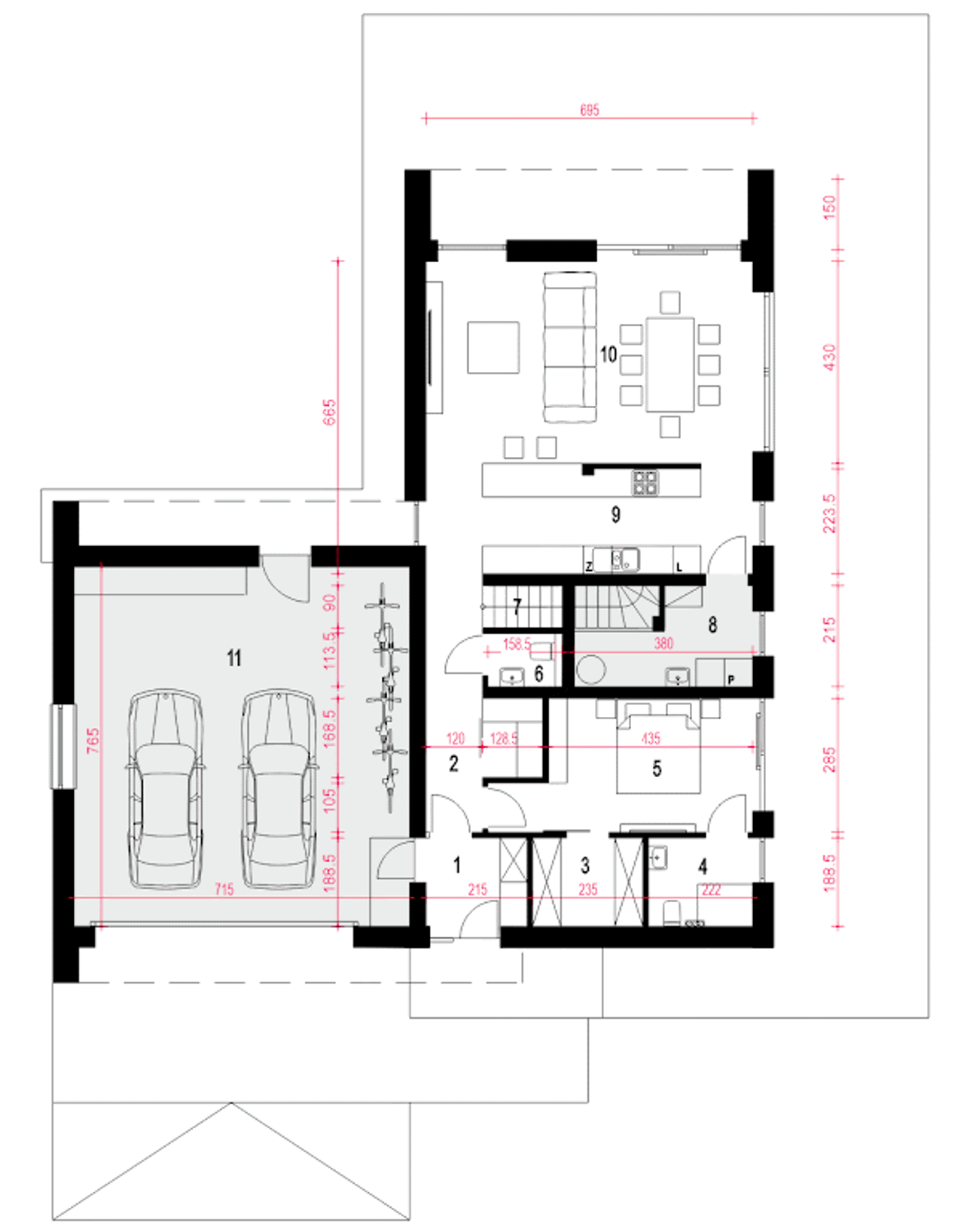
1. Wiatrołap | 3,90 m² |
2. Hol | 8,60 m² |
3. Garderoba | 4,30 m² |
4. łazienka | 4,00 m² |
5. Sypialnia | 13,50 m² |
6. Toaleta | 1,70 m² |
7. Schody | 3,40 m² |
8. Pom. gospod. + c.o.* | 7,90 m² |
9. Kuchnia | 15,90 m² |
10. Salon + jadalnia | 29,50 m² |
11. Garaż* | 55,00 m² |
Wypełnij formularz i otrzymaj rysunki w pdf z dokładnymi wymiarami budynku i pomieszczeń (długość, szerokość, wysokość) dla projektu Wygodny z garażem 2-st. A1
Pow. użytkowa 144.3 m² |
Powierzchnia zabudowy 208.8 m² |
Kondygnacje parterowy+poddasze |
Garaż 2 stanowiska |
Technologia murowany |
Szerokość działki 23.8 m |
Obiekt dom |
Typ domu jednorodzinny całoroczny |
Powierzchnia dachu 262 m² |
Kominek kominek opcjonalnie |
Styl budynku nowoczesny |
Wysokość budynku 9 m |
Piwnica bez podpiwniczenia |
Kąt nachylenia dachu 45 ° |
Długość działki 25.4 m |
Rodzaj dachu wielospadowy |
Koszty budowy 400-450 tys., tylko z kosztorysem |
Pow. użytkowa 144.3 m² |
Kondygnacje parterowy+poddasze |
Technologia murowany |
Obiekt dom |
Powierzchnia dachu 262 m² |
Styl budynku nowoczesny |
Piwnica bez podpiwniczenia |
Długość działki 25.4 m |
Koszty budowy 400-450 tys., tylko z kosztorysem |
Powierzchnia zabudowy 208.8 m² |
Garaż 2 stanowiska |
Szerokość działki 23.8 m |
Typ domu jednorodzinny całoroczny |
Kominek kominek opcjonalnie |
Wysokość budynku 9 m |
Kąt nachylenia dachu 45 ° |
Rodzaj dachu wielospadowy |
Kupując projekt w technologii murowanej powinieneś budować dom murowany. Zupełna zmiana technologii na szkieletową wymaga przeprojektowania całego budynku ( zmieniają się obciążenia, fundamenty, konstrukcja dachu). Wydamy zgodę na takie przeprojektowanie jednak wiążę się to z dużymi kosztami. Istnieją firmy wykonawcze, które podejmują się zmiany technologii budowy bezpłatnie przy skorzystaniu z ich usług wykonawczych. Zdarza się, że pracownia architektoniczna przygotowuje warianty konkretnego projektu przewidując także inne technologie. Prosimy o sprawdzenie czy istnieje poszukiwana wersja projektu, w zakładce - warianty projektu.
Zwężenie/poszerzenie budynku* to nic innego jak zmiana w projekcie. Istnieje możliwość wprowadzenia takich zmian, we własnym zakresie (podczas adaptacji). *zwężenie/poszerzenie budynku nie powinno stanowić problemu w przypadku domów o dachu dwuspadowym jeśli wiąże się to z wydłużeniem/skróceniem kalenicy dachu.
Poznaj praktyczne porady ekspertów, które ułatwią Ci każdy etap budowy i od wyboru wymarzonego domu po jego wykończenie. Zyskaj pewność, że podejmujesz najlepsze decyzje dzięki sprawdzonym wskazówkom od specjalistów z planz.pl
Wycena szacunkowa, w kwotach netto, nie zawiera instalacji.
bezpłatnie (0zł)
przelew zwykły / PayNow
przy odbiorze
3-5 dni roboczych (jeśli projekt nie jest koncepcją)
Wybierz wygodny dla Ciebie czas kontaktu z naszym Doradcą Technicznym.