Wieczorny pejzaż - M232



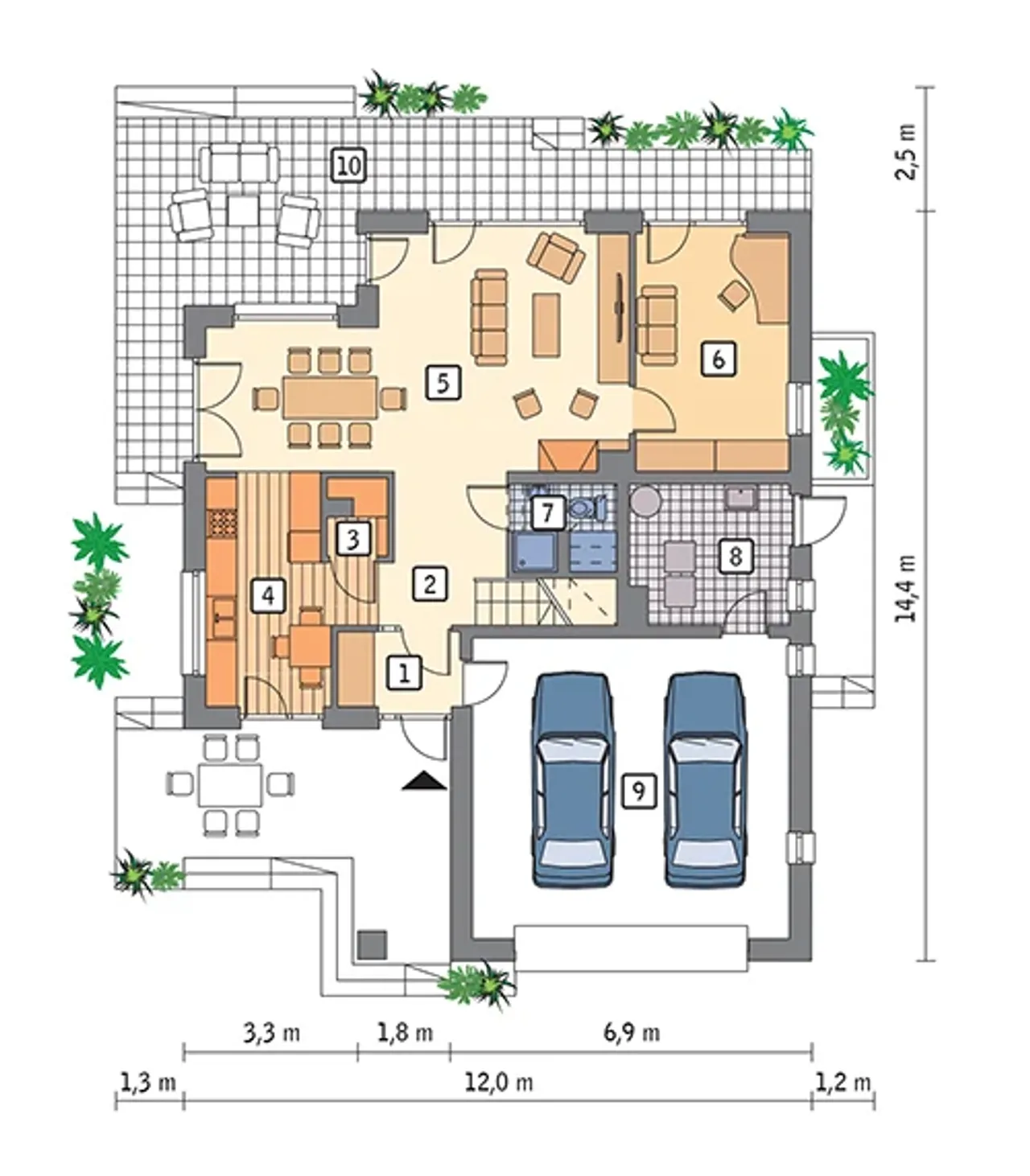
1. Przedsionek | 3,90 (3,90) m² |
2. Hol | 10,40 (13,90) m² |
3. Garderoba | 5,30 (5,30) m² |
4. Wc | 1,90 (1,90) m² |
5. Spiżarnia | 1,80 (1,80) m² |
6. Kuchnia | 9,20 (9,20) m² |
7. Pokój dzienny | 36,20 (36,20) m² |
8. Kotłownia | 7,80 (7,80) m² |
9. Garaż | 34,60 (34,60) m² |
10. Taras | 29,00 m² |
1. Schody | 4,20 (4,20) m² |
2. Korytarz | 10,90 (10,90) m² |
3. Sypialnia | 9,10 (9,10) m² |
4. Garderoba | 1,60 (1,60) m² |
5. Sypialnia | 10,40 (10,40) m² |
6. łazienka | 8,40 (8,40) m² |
7. Pralnia | 3,10 (3,10) m² |
8. łazienka | 4,40 (4,40) m² |
9. Garderoba | 3,70 (3,70) m² |
10. Sypialnia | 15,90 (15,90) m² |
11. Sypialnia | 14,70 (14,70) m² |
12. Sypialnia | 15,30 (15,30) m² |
13. Taras | 18,90 m² |
Wypełnij formularz i otrzymaj rysunki w pdf z dokładnymi wymiarami budynku i pomieszczeń (długość, szerokość, wysokość) dla projektu Wieczorny pejzaż - wariant I - M232a
Ilość pokoi 6 |
Pow. użytkowa 170.4 m² |
Powierzchnia zabudowy 151.5 m² |
Kondygnacje piętrowy |
Garaż 2 stanowiska |
Technologia murowany |
Szerokość działki 20 m |
Obiekt dom |
Typ domu jednorodzinny całoroczny |
Kubatura 1001.5 m³ |
Przechowywanie w kuchni spiżarnia |
Bryła budynku plan litery T |
Wysokość budynku 8.19 m |
Długość działki 22.4 m |
Styl budynku nowoczesny |
Liczba łazieniek 2 |
Kominek kominek w projekcie |
Kąt nachylenia dachu 15 ° |
Kotłownia duża kotłownia |
Szerokość budynku 12 m |
Rodzaj garażu z przodu |
Taras z tarasem |
Kalenica bez znaczenia |
Długość budynku 14.4 m |
Rodzaj dachu wielospadowy |
Piwnica bez podpiwniczenia |
Funkcje dodatkowe z pralnią |
Koszty budowy 450-500 tys., tylko z kosztorysem |
Ilość pokoi 6 |
Powierzchnia zabudowy 151.5 m² |
Garaż 2 stanowiska |
Szerokość działki 20 m |
Typ domu jednorodzinny całoroczny |
Przechowywanie w kuchni spiżarnia |
Wysokość budynku 8.19 m |
Styl budynku nowoczesny |
Kominek kominek w projekcie |
Kotłownia duża kotłownia |
Rodzaj garażu z przodu |
Kalenica bez znaczenia |
Rodzaj dachu wielospadowy |
Funkcje dodatkowe z pralnią |
Pow. użytkowa 170.4 m² |
Kondygnacje piętrowy |
Technologia murowany |
Obiekt dom |
Kubatura 1001.5 m³ |
Bryła budynku plan litery T |
Długość działki 22.4 m |
Liczba łazieniek 2 |
Kąt nachylenia dachu 15 ° |
Szerokość budynku 12 m |
Taras z tarasem |
Długość budynku 14.4 m |
Piwnica bez podpiwniczenia |
Koszty budowy 450-500 tys., tylko z kosztorysem |
Kupując projekt w technologii murowanej powinieneś budować dom murowany. Zupełna zmiana technologii na szkieletową wymaga przeprojektowania całego budynku ( zmieniają się obciążenia, fundamenty, konstrukcja dachu). Wydamy zgodę na takie przeprojektowanie jednak wiążę się to z dużymi kosztami. Istnieją firmy wykonawcze, które podejmują się zmiany technologii budowy bezpłatnie przy skorzystaniu z ich usług wykonawczych. Zdarza się, że pracownia architektoniczna przygotowuje warianty konkretnego projektu przewidując także inne technologie. Prosimy o sprawdzenie czy istnieje poszukiwana wersja projektu, w zakładce - warianty projektu.
Zwężenie/poszerzenie budynku* to nic innego jak zmiana w projekcie. Istnieje możliwość wprowadzenia takich zmian, we własnym zakresie (podczas adaptacji). *zwężenie/poszerzenie budynku nie powinno stanowić problemu w przypadku domów o dachu dwuspadowym jeśli wiąże się to z wydłużeniem/skróceniem kalenicy dachu.
Poznaj praktyczne porady ekspertów, które ułatwią Ci każdy etap budowy i od wyboru wymarzonego domu po jego wykończenie. Zyskaj pewność, że podejmujesz najlepsze decyzje dzięki sprawdzonym wskazówkom od specjalistów z planz.pl
Wycena szacunkowa, w kwotach netto, nie zawiera instalacji.
bezpłatnie (0zł)
przelew zwykły / PayNow
przy odbiorze
3-5 dni roboczych (jeśli projekt nie wymaga aktualizacji)
Piękna, nowoczesna estetyka projektu, który wydaje się idealnie wpisywać w krajobraz. Ciekawe połączenie funkcjonalności i stylu.
Wybierz wygodny dla Ciebie czas kontaktu z naszym Doradcą Technicznym.