Werbena z garażem 1-st. A



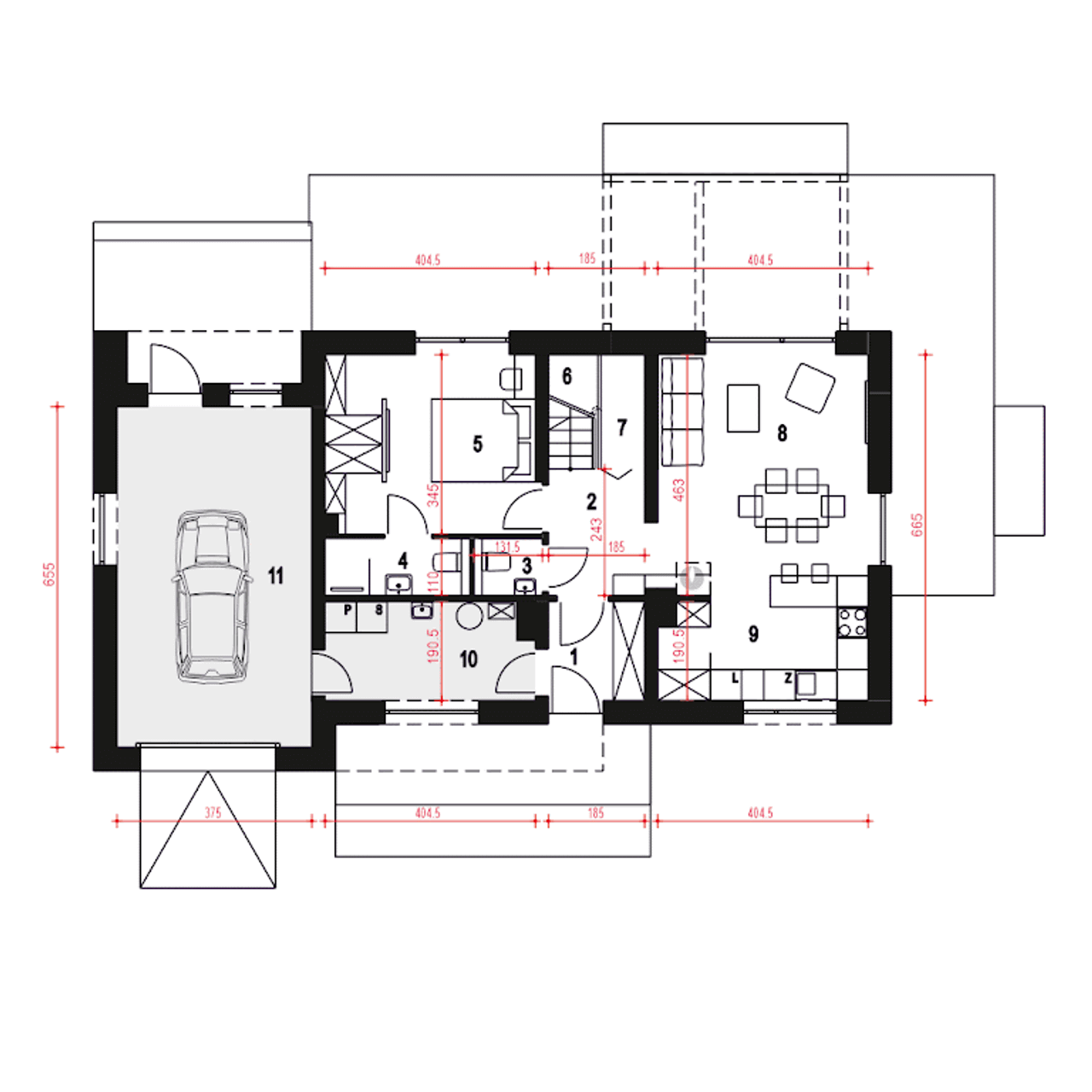
1. Wiatrołap | 3,40 m² |
2. Hol | 4,40 m² |
3. Wc | 1,40 m² |
4. łazienka | 3,00 m² |
5. Pokój | 13,60 m² |
6. Schody | 4,00 m² |
7. Garderoba | 1,00 m² |
8. Salon z jadalnią | 18,30 m² |
9. Kuchnia ze spiżarnią | 8,30 m² |
10. Pom. tech. z co i pralnią | 7,60 m² |
11. Garaż | 23,60 m² |
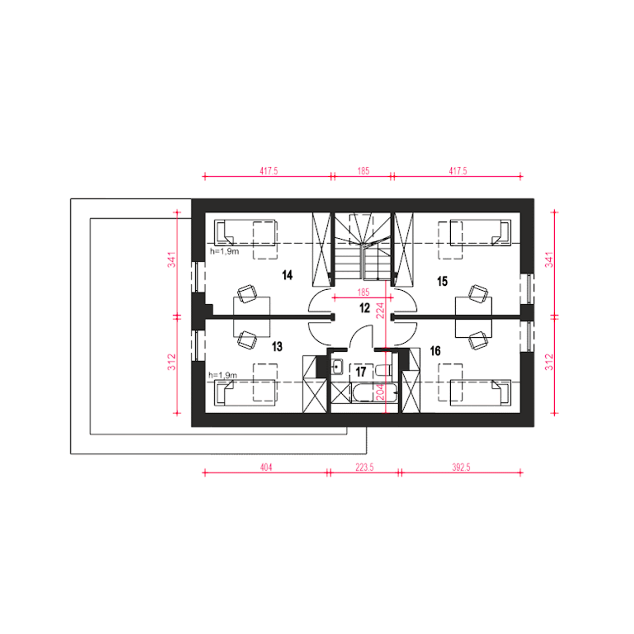
1. Hol | 4,20 m² |
2. Pokój | 9,90 m² |
3. Pokój | 11,50 m² |
4. Pokój | 11,60 m² |
5. Pokój | 9,80 m² |
6. łazienka | 3,20 m² |
Wypełnij formularz i otrzymaj rysunki w pdf z dokładnymi wymiarami budynku i pomieszczeń (długość, szerokość, wysokość) dla projektu Werbena z garażem 1-st. A
Ilość pokoi 6 |
Pow. użytkowa 103.4 m² |
Powierzchnia zabudowy 117.4 m² |
Kondygnacje parterowy |
Garaż 1 stanowisko |
Technologia murowany |
Szerokość działki 23.5 m |
Obiekt dom |
Typ domu jednorodzinny całoroczny |
Wysokość budynku 8.6 m |
Długość działki 16.6 m |
Bryła budynku prosta bryła |
Styl budynku nowoczesny |
Liczba łazieniek 2 |
Kominek kominek w projekcie |
Kąt nachylenia dachu 45 ° |
Szerokość budynku 15.5 m |
Kotłownia duża kotłownia |
Strop gęstożebrowy |
Długość budynku 8.6 m |
Rodzaj garażu przyklejony |
Piwnica bez podpiwniczenia |
Kalenica równoległa do drogi |
Powierzchnia dachu 121.1 m² |
Rodzaj dachu dwuspadowy |
Funkcje dodatkowe z pralnią |
Koszty budowy tylko z kosztorysem, 250-300 tys. |
Ilość pokoi 6 |
Powierzchnia zabudowy 117.4 m² |
Garaż 1 stanowisko |
Szerokość działki 23.5 m |
Typ domu jednorodzinny całoroczny |
Długość działki 16.6 m |
Styl budynku nowoczesny |
Kominek kominek w projekcie |
Szerokość budynku 15.5 m |
Strop gęstożebrowy |
Rodzaj garażu przyklejony |
Kalenica równoległa do drogi |
Rodzaj dachu dwuspadowy |
Koszty budowy tylko z kosztorysem, 250-300 tys. |
Pow. użytkowa 103.4 m² |
Kondygnacje parterowy |
Technologia murowany |
Obiekt dom |
Wysokość budynku 8.6 m |
Bryła budynku prosta bryła |
Liczba łazieniek 2 |
Kąt nachylenia dachu 45 ° |
Kotłownia duża kotłownia |
Długość budynku 8.6 m |
Piwnica bez podpiwniczenia |
Powierzchnia dachu 121.1 m² |
Funkcje dodatkowe z pralnią |
Kupując projekt w technologii murowanej powinieneś budować dom murowany. Zupełna zmiana technologii na szkieletową wymaga przeprojektowania całego budynku ( zmieniają się obciążenia, fundamenty, konstrukcja dachu). Wydamy zgodę na takie przeprojektowanie jednak wiążę się to z dużymi kosztami. Istnieją firmy wykonawcze, które podejmują się zmiany technologii budowy bezpłatnie przy skorzystaniu z ich usług wykonawczych. Zdarza się, że pracownia architektoniczna przygotowuje warianty konkretnego projektu przewidując także inne technologie. Prosimy o sprawdzenie czy istnieje poszukiwana wersja projektu, w zakładce - warianty projektu.
Zwężenie/poszerzenie budynku* to nic innego jak zmiana w projekcie. Istnieje możliwość wprowadzenia takich zmian, we własnym zakresie (podczas adaptacji). *zwężenie/poszerzenie budynku nie powinno stanowić problemu w przypadku domów o dachu dwuspadowym jeśli wiąże się to z wydłużeniem/skróceniem kalenicy dachu.
Poznaj praktyczne porady ekspertów, które ułatwią Ci każdy etap budowy i od wyboru wymarzonego domu po jego wykończenie. Zyskaj pewność, że podejmujesz najlepsze decyzje dzięki sprawdzonym wskazówkom od specjalistów z planz.pl
Wycena szacunkowa, w kwotach netto, nie zawiera instalacji.
bezpłatnie (0zł)
przelew zwykły / PayNow
przy odbiorze
3-5 dni roboczych (jeśli projekt nie jest koncepcją)
Wybierz wygodny dla Ciebie czas kontaktu z naszym Doradcą Technicznym.