Wawrzyn z garażem 1-st. A



1. Wiatrołap | 4,40 m² |
2. Hol | 5,00 m² |
3. Schody | 3,80 m² |
4. Salon z jadalnią | 25,40 m² |
5. Kuchnia ze spiż. | 10,10 m² |
6. Korytarz | 1,20 m² |
7. łazienka | 2,50 m² |
8. Kotłownia | 5,80 m² |
9. Garaż | 18,10 m² |
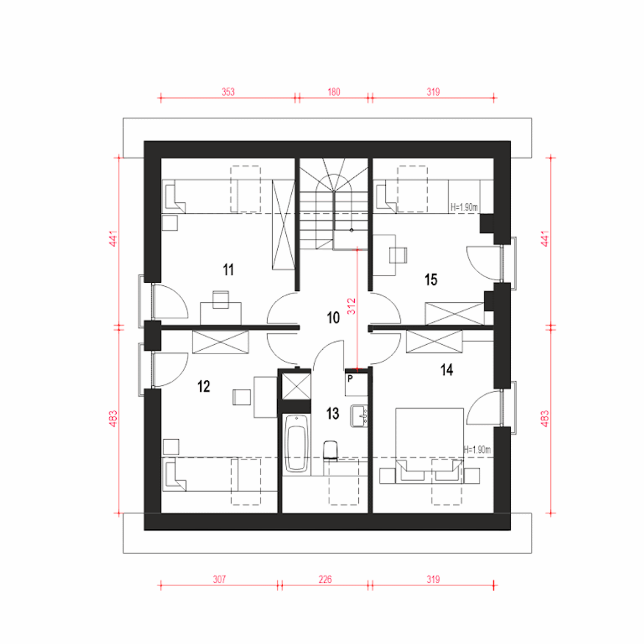
1. Przedpokój | 5,70 (5,70) m² |
2. Pokój | 10,80 (15,50) m² |
3. Pokój | 11,00 (15,20) m² |
4. łazienka | 5,00 (8,10) m² |
5. Pokój | 11,10 (15,30) m² |
6. Pokój | 9,50 (13,70) m² |
Wypełnij formularz i otrzymaj rysunki w pdf z dokładnymi wymiarami budynku i pomieszczeń (długość, szerokość, wysokość) dla projektu Wawrzyn z garażem 1-st. A
Ilość pokoi 5 |
Pow. użytkowa 105.3 m² |
Powierzchnia zabudowy 100.7 m² |
Kondygnacje parterowy+poddasze |
Garaż 1 stanowisko |
Technologia murowany |
Szerokość działki 18.8 m |
Obiekt dom |
Typ domu jednorodzinny całoroczny |
Szerokość budynku 10.8 m |
Kominek kominek w projekcie |
Strop żelbetowy |
Długość budynku 12.2 m |
Rodzaj garażu w bryle |
Piwnica bez podpiwniczenia |
Kalenica równoległa do drogi |
Powierzchnia dachu 129.4 m² |
Rodzaj dachu dwuspadowy |
Funkcje dodatkowe z dwoma wejściami |
Wysokość budynku 8.6 m |
Długość działki 20.2 m |
Bryła budynku prosta bryła |
Styl budynku nowoczesny |
Liczba łazieniek 2 |
Kąt nachylenia dachu 40 ° |
Koszty budowy 450-500 tys., tylko z kosztorysem |
Ilość pokoi 5 |
Powierzchnia zabudowy 100.7 m² |
Garaż 1 stanowisko |
Szerokość działki 18.8 m |
Typ domu jednorodzinny całoroczny |
Kominek kominek w projekcie |
Długość budynku 12.2 m |
Piwnica bez podpiwniczenia |
Powierzchnia dachu 129.4 m² |
Funkcje dodatkowe z dwoma wejściami |
Długość działki 20.2 m |
Styl budynku nowoczesny |
Kąt nachylenia dachu 40 ° |
Pow. użytkowa 105.3 m² |
Kondygnacje parterowy+poddasze |
Technologia murowany |
Obiekt dom |
Szerokość budynku 10.8 m |
Strop żelbetowy |
Rodzaj garażu w bryle |
Kalenica równoległa do drogi |
Rodzaj dachu dwuspadowy |
Wysokość budynku 8.6 m |
Bryła budynku prosta bryła |
Liczba łazieniek 2 |
Koszty budowy 450-500 tys., tylko z kosztorysem |
Kupując projekt w technologii murowanej powinieneś budować dom murowany. Zupełna zmiana technologii na szkieletową wymaga przeprojektowania całego budynku ( zmieniają się obciążenia, fundamenty, konstrukcja dachu). Wydamy zgodę na takie przeprojektowanie jednak wiążę się to z dużymi kosztami. Istnieją firmy wykonawcze, które podejmują się zmiany technologii budowy bezpłatnie przy skorzystaniu z ich usług wykonawczych. Zdarza się, że pracownia architektoniczna przygotowuje warianty konkretnego projektu przewidując także inne technologie. Prosimy o sprawdzenie czy istnieje poszukiwana wersja projektu, w zakładce - warianty projektu.
Zwężenie/poszerzenie budynku* to nic innego jak zmiana w projekcie. Istnieje możliwość wprowadzenia takich zmian, we własnym zakresie (podczas adaptacji). *zwężenie/poszerzenie budynku nie powinno stanowić problemu w przypadku domów o dachu dwuspadowym jeśli wiąże się to z wydłużeniem/skróceniem kalenicy dachu.
Poznaj praktyczne porady ekspertów, które ułatwią Ci każdy etap budowy i od wyboru wymarzonego domu po jego wykończenie. Zyskaj pewność, że podejmujesz najlepsze decyzje dzięki sprawdzonym wskazówkom od specjalistów z planz.pl
Wycena szacunkowa, w kwotach netto, nie zawiera instalacji.
bezpłatnie (0zł)
przelew zwykły / PayNow
przy odbiorze
3-5 dni roboczych (jeśli projekt nie jest koncepcją)
Wybierz wygodny dla Ciebie czas kontaktu z naszym Doradcą Technicznym.