W cieniu drzew (etap II) - A101



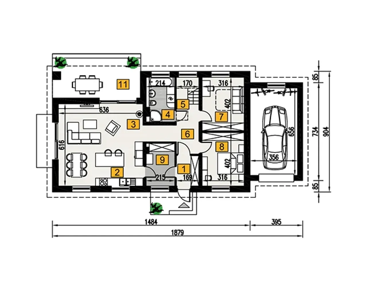
1. Przedsionek | 3,70 (3,70) m² |
2. Kuchnia | 9,50 (9,50) m² |
3. Pokój dzienny | 29,40 (29,40) m² |
4. łazienka | 6,80 (6,80) m² |
5. Schody | 5,90 (5,90) m² |
6. Hol | 9,20 (12,60) m² |
7. Sypialnia | 12,50 (12,50) m² |
8. Sypialnia | 12,50 (12,50) m² |
9. Kotłownia | 6,60 (6,60) m² |
10. Garaż | 23,80 (23,80) m² |
11. Taras | 19,50 m² |
Wypełnij formularz i otrzymaj rysunki w pdf z dokładnymi wymiarami budynku i pomieszczeń (długość, szerokość, wysokość) dla projektu W cieniu drzew - wariant I (etap II) - A101G1
Ilość pokoi 4 |
Pow. użytkowa 116.7 m² |
Powierzchnia zabudowy 163.2 m² |
Kondygnacje parterowy+poddasze |
Garaż 1 stanowisko |
Technologia murowany |
Szerokość działki 25.8 m |
Obiekt dom |
Typ domu jednorodzinny całoroczny |
Kalenica równoległa do drogi |
Długość budynku 9.04 m |
Rodzaj garażu przyklejony |
Piwnica bez podpiwniczenia |
Kubatura 839.4 m³ |
Rodzaj dachu dwuspadowy |
Powierzchnia dachu 246.47 m² |
Długość działki 17.1 m |
Bryła budynku prosta bryła |
Liczba łazieniek 2 |
Wysokość budynku 7.59 m |
Styl budynku nowoczesny |
Kominek kominek opcjonalnie |
Kotłownia duża kotłownia |
Kąt nachylenia dachu 40 ° |
Strop gęstożebrowy |
Szerokość budynku 18.79 m |
Taras z tarasem |
Koszty budowy tylko z kosztorysem, 250-300 tys. |
Ilość pokoi 4 |
Powierzchnia zabudowy 163.2 m² |
Garaż 1 stanowisko |
Szerokość działki 25.8 m |
Typ domu jednorodzinny całoroczny |
Długość budynku 9.04 m |
Piwnica bez podpiwniczenia |
Rodzaj dachu dwuspadowy |
Długość działki 17.1 m |
Liczba łazieniek 2 |
Styl budynku nowoczesny |
Kotłownia duża kotłownia |
Strop gęstożebrowy |
Taras z tarasem |
Pow. użytkowa 116.7 m² |
Kondygnacje parterowy+poddasze |
Technologia murowany |
Obiekt dom |
Kalenica równoległa do drogi |
Rodzaj garażu przyklejony |
Kubatura 839.4 m³ |
Powierzchnia dachu 246.47 m² |
Bryła budynku prosta bryła |
Wysokość budynku 7.59 m |
Kominek kominek opcjonalnie |
Kąt nachylenia dachu 40 ° |
Szerokość budynku 18.79 m |
Koszty budowy tylko z kosztorysem, 250-300 tys. |
Kupując projekt w technologii murowanej powinieneś budować dom murowany. Zupełna zmiana technologii na szkieletową wymaga przeprojektowania całego budynku ( zmieniają się obciążenia, fundamenty, konstrukcja dachu). Wydamy zgodę na takie przeprojektowanie jednak wiążę się to z dużymi kosztami. Istnieją firmy wykonawcze, które podejmują się zmiany technologii budowy bezpłatnie przy skorzystaniu z ich usług wykonawczych. Zdarza się, że pracownia architektoniczna przygotowuje warianty konkretnego projektu przewidując także inne technologie. Prosimy o sprawdzenie czy istnieje poszukiwana wersja projektu, w zakładce - warianty projektu.
Zwężenie/poszerzenie budynku* to nic innego jak zmiana w projekcie. Istnieje możliwość wprowadzenia takich zmian, we własnym zakresie (podczas adaptacji). *zwężenie/poszerzenie budynku nie powinno stanowić problemu w przypadku domów o dachu dwuspadowym jeśli wiąże się to z wydłużeniem/skróceniem kalenicy dachu.
Poznaj praktyczne porady ekspertów, które ułatwią Ci każdy etap budowy i od wyboru wymarzonego domu po jego wykończenie. Zyskaj pewność, że podejmujesz najlepsze decyzje dzięki sprawdzonym wskazówkom od specjalistów z planz.pl
Wycena szacunkowa, w kwotach netto, nie zawiera instalacji.
bezpłatnie (0zł)
przelew zwykły / PayNow
przy odbiorze
3-5 dni roboczych (jeśli projekt nie wymaga aktualizacji)
Wybierz wygodny dla Ciebie czas kontaktu z naszym Doradcą Technicznym.