Granada



Zawartość projektu
1. Wiatrołap | 4,61 m² |
2. Garderoba | 3,35 m² |
3. łazienka | 7,79 m² |
4. Pokój dzienny + jadalia | 33,22 m² |
5. Kuchnia | 11,20 m² |
6. Gabinet | 13,97 m² |
7. Korytarz | 7,63 m² |
8. Pom. gospodarcze | 7,70 m² |
9. Garaż | 36,72 m² |
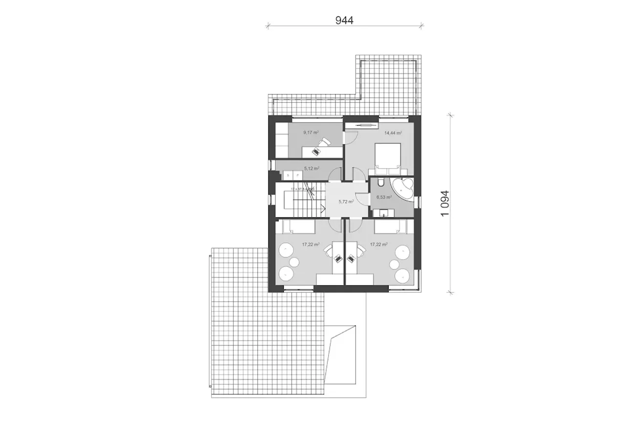
1. Korytarz | 5,72 m² |
2. Pralnia | 5,12 m² |
3. Garderoba | 9,17 m² |
4. Sypialnia | 14,44 m² |
5. łazienka | 6,53 m² |
6. Pokój 1 | 17,22 m² |
7. Pokój 2 | 17,22 m² |
Wypełnij formularz i otrzymaj rysunki w pdf z dokładnymi wymiarami budynku i pomieszczeń (długość, szerokość, wysokość) dla projektu uA93
Ilość pokoi 5 |
Pow. użytkowa 157.2 m² |
Powierzchnia zabudowy 164.46 m² |
Kondygnacje piętrowy |
Garaż 2 stanowiska |
Technologia murowany |
Szerokość działki 19.94 m |
Obiekt dom |
Typ domu jednorodzinny całoroczny |
Kalenica prostopadła do drogi |
Długość budynku 18.54 m |
Piwnica bez podpiwniczenia |
Funkcje dodatkowe z pralnią |
Kubatura 950 m³ |
Rodzaj garażu z przodu |
Powierzchnia dachu 117 m² |
Rodzaj dachu wielospadowy |
Długość działki 26.54 m |
Ogrzewanie gaz |
Liczba łazieniek 2 |
Wysokość budynku 8.92 m |
Kominek kominek w projekcie |
Styl budynku nowoczesny |
Kotłownia duża kotłownia |
Szerokość budynku 12.94 m |
Taras z tarasem |
Kąt nachylenia dachu 28 ° |
Koszty budowy 400-450 tys., tylko z kosztorysem |
Ilość pokoi 5 |
Powierzchnia zabudowy 164.46 m² |
Garaż 2 stanowiska |
Szerokość działki 19.94 m |
Typ domu jednorodzinny całoroczny |
Długość budynku 18.54 m |
Funkcje dodatkowe z pralnią |
Rodzaj garażu z przodu |
Rodzaj dachu wielospadowy |
Ogrzewanie gaz |
Wysokość budynku 8.92 m |
Styl budynku nowoczesny |
Szerokość budynku 12.94 m |
Kąt nachylenia dachu 28 ° |
Pow. użytkowa 157.2 m² |
Kondygnacje piętrowy |
Technologia murowany |
Obiekt dom |
Kalenica prostopadła do drogi |
Piwnica bez podpiwniczenia |
Kubatura 950 m³ |
Powierzchnia dachu 117 m² |
Długość działki 26.54 m |
Liczba łazieniek 2 |
Kominek kominek w projekcie |
Kotłownia duża kotłownia |
Taras z tarasem |
Koszty budowy 400-450 tys., tylko z kosztorysem |
Kupując projekt w technologii murowanej powinieneś budować dom murowany. Zupełna zmiana technologii na szkieletową wymaga przeprojektowania całego budynku ( zmieniają się obciążenia, fundamenty, konstrukcja dachu). Wydamy zgodę na takie przeprojektowanie jednak wiążę się to z dużymi kosztami. Istnieją firmy wykonawcze, które podejmują się zmiany technologii budowy bezpłatnie przy skorzystaniu z ich usług wykonawczych. Zdarza się, że pracownia architektoniczna przygotowuje warianty konkretnego projektu przewidując także inne technologie. Prosimy o sprawdzenie czy istnieje poszukiwana wersja projektu, w zakładce - warianty projektu.
Zwężenie/poszerzenie budynku* to nic innego jak zmiana w projekcie. Istnieje możliwość wprowadzenia takich zmian, we własnym zakresie (podczas adaptacji). *zwężenie/poszerzenie budynku nie powinno stanowić problemu w przypadku domów o dachu dwuspadowym jeśli wiąże się to z wydłużeniem/skróceniem kalenicy dachu.
Poznaj praktyczne porady ekspertów, które ułatwią Ci każdy etap budowy i od wyboru wymarzonego domu po jego wykończenie. Zyskaj pewność, że podejmujesz najlepsze decyzje dzięki sprawdzonym wskazówkom od specjalistów z planz.pl
Wycena szacunkowa, w kwotach netto, nie zawiera instalacji.
bezpłatnie (0zł)
przelew zwykły / PayNow
przy odbiorze
2-4 dni robocze (jeśli projekt nie jest koncepcją)
Wybierz wygodny dla Ciebie czas kontaktu z naszym Doradcą Technicznym.