uA67v2



Zawartość projektu
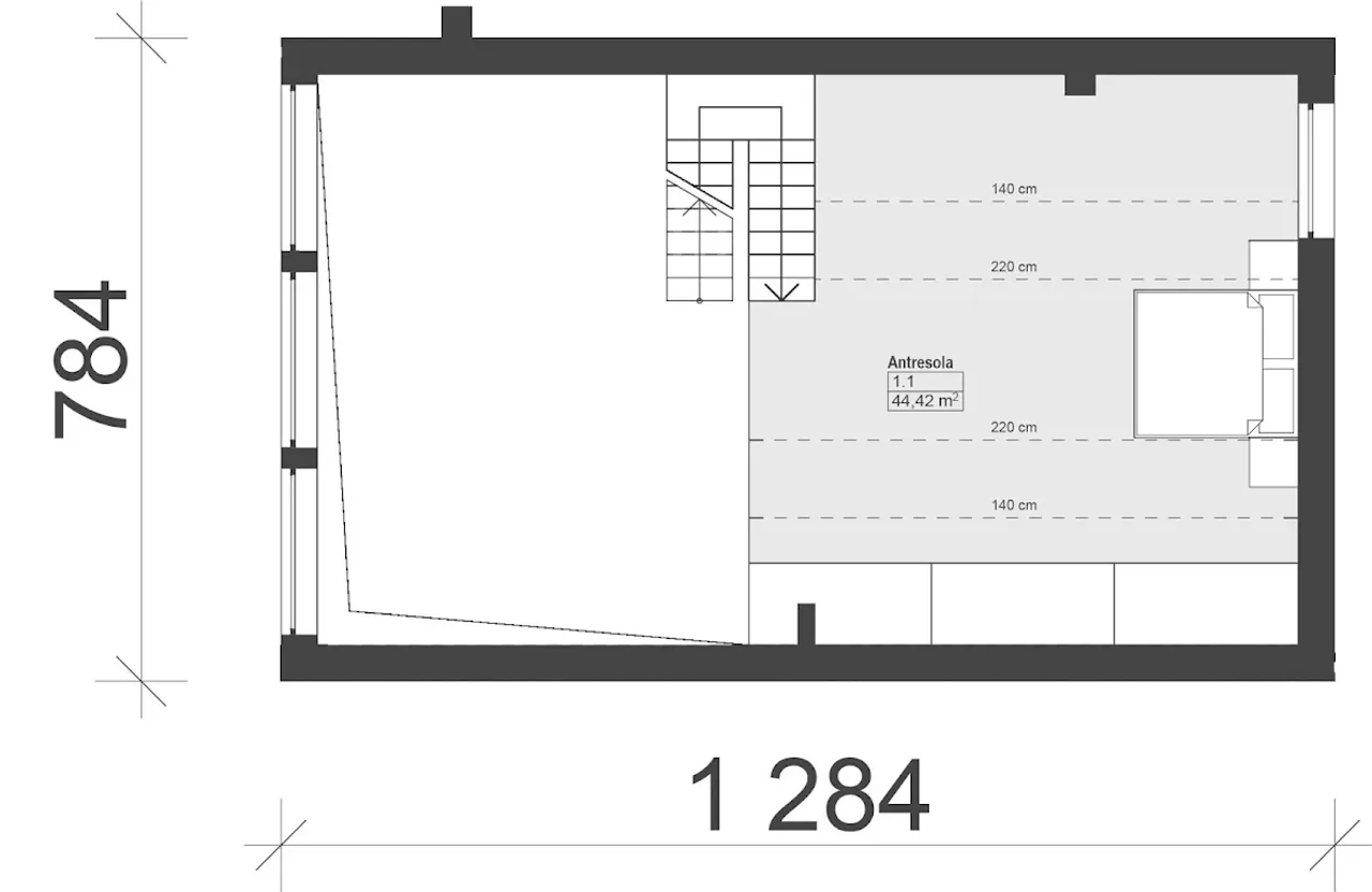
Wypełnij formularz i otrzymaj rysunki w pdf z dokładnymi wymiarami budynku i pomieszczeń (długość, szerokość, wysokość) dla projektu UA67v6
Pow. użytkowa 67.7 m² |
Ilość pokoi 2 |
Powierzchnia zabudowy 99.37 m² |
Kondygnacje parterowy |
Garaż bez garażu |
Technologia murowany |
Obiekt dom |
Typ domu jednorodzinny całoroczny |
Szerokość budynku 12.84 m |
Styl budynku nowoczesny |
Kąt nachylenia dachu 42 ° |
Strop gęstożebrowy |
Długość budynku 7.84 m |
Liczba łazieniek 1 |
Kalenica równoległa do drogi |
Kubatura 426 m³ |
Kominek kominek w projekcie |
Powierzchnia dachu 136 m² |
Rodzaj dachu dwuspadowy |
Piwnica bez podpiwniczenia |
Ogrzewanie gaz |
Funkcje dodatkowe z antresolą |
Wysokość budynku 6.86 m |
Bryła budynku prosta bryła |
Koszty budowy tylko z kosztorysem, 200-250 tys. |
Pow. użytkowa 67.7 m² |
Powierzchnia zabudowy 99.37 m² |
Garaż bez garażu |
Obiekt dom |
Szerokość budynku 12.84 m |
Kąt nachylenia dachu 42 ° |
Długość budynku 7.84 m |
Kalenica równoległa do drogi |
Kominek kominek w projekcie |
Rodzaj dachu dwuspadowy |
Ogrzewanie gaz |
Wysokość budynku 6.86 m |
Koszty budowy tylko z kosztorysem, 200-250 tys. |
Ilość pokoi 2 |
Kondygnacje parterowy |
Technologia murowany |
Typ domu jednorodzinny całoroczny |
Styl budynku nowoczesny |
Strop gęstożebrowy |
Liczba łazieniek 1 |
Kubatura 426 m³ |
Powierzchnia dachu 136 m² |
Piwnica bez podpiwniczenia |
Funkcje dodatkowe z antresolą |
Bryła budynku prosta bryła |
Kupując projekt w technologii murowanej powinieneś budować dom murowany. Zupełna zmiana technologii na szkieletową wymaga przeprojektowania całego budynku ( zmieniają się obciążenia, fundamenty, konstrukcja dachu). Wydamy zgodę na takie przeprojektowanie jednak wiążę się to z dużymi kosztami. Istnieją firmy wykonawcze, które podejmują się zmiany technologii budowy bezpłatnie przy skorzystaniu z ich usług wykonawczych. Zdarza się, że pracownia architektoniczna przygotowuje warianty konkretnego projektu przewidując także inne technologie. Prosimy o sprawdzenie czy istnieje poszukiwana wersja projektu, w zakładce - warianty projektu.
Zwężenie/poszerzenie budynku* to nic innego jak zmiana w projekcie. Istnieje możliwość wprowadzenia takich zmian, we własnym zakresie (podczas adaptacji). *zwężenie/poszerzenie budynku nie powinno stanowić problemu w przypadku domów o dachu dwuspadowym jeśli wiąże się to z wydłużeniem/skróceniem kalenicy dachu.
Poznaj praktyczne porady ekspertów, które ułatwią Ci każdy etap budowy i od wyboru wymarzonego domu po jego wykończenie. Zyskaj pewność, że podejmujesz najlepsze decyzje dzięki sprawdzonym wskazówkom od specjalistów z planz.pl
Wycena szacunkowa, w kwotach netto, nie zawiera instalacji.
bezpłatnie (0zł)
przelew zwykły / PayNow
przy odbiorze
2-4 dni robocze (jeśli projekt nie jest koncepcją)
Wybierz wygodny dla Ciebie czas kontaktu z naszym Doradcą Technicznym.