TK33



Zawartość projektu
1. Wiatrołap | 5,54 m² |
2. Garderoba | 5,91 m² |
3. Pralnia | 7,37 m² |
4. Kuchnia | 10,40 m² |
5. Pokój dzienny | 35,11 m² |
6. Garderoba | 5,70 m² |
7. łazienka | 2,64 m² |
8. Korytarz | 6,96 m² |
9. Gabinet | 10,93 m² |
10. Garaż | 43,19 m² |
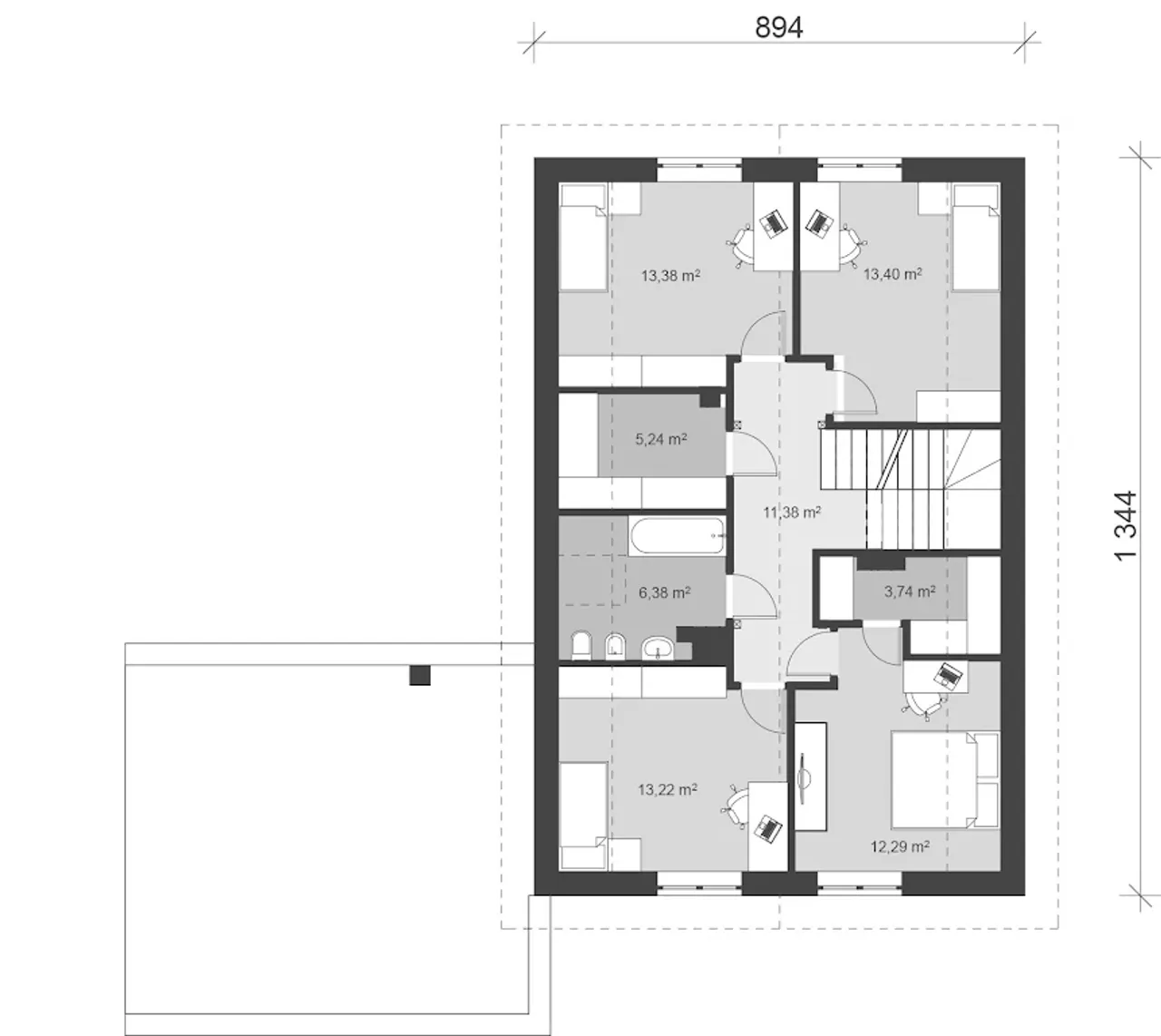
1. Pokój 1 | 12,29 m² |
2. Pokój 2 | 13,22 m² |
3. łazienka | 6,38 m² |
4. Garderoba | 5,24 m² |
5. Pokój 3 | 13,38 m² |
6. Pokój 4 | 13,40 m² |
7. Garderoba | 3,74 m² |
8. Korytarz | 11,38 m² |
Wypełnij formularz i otrzymaj rysunki w pdf z dokładnymi wymiarami budynku i pomieszczeń (długość, szerokość, wysokość) dla projektu uA63
Ilość pokoi 6 |
Pow. użytkowa 161.1 m² |
Powierzchnia zabudowy 173.21 m² |
Kondygnacje parterowy+poddasze |
Garaż 2 stanowiska |
Technologia murowany |
Szerokość działki 26.24 m |
Obiekt dom |
Typ domu jednorodzinny całoroczny |
Powierzchnia dachu 249 m² |
Rodzaj dachu dwuspadowy |
Długość działki 19.14 m |
Ogrzewanie gaz |
Wysokość budynku 8.53 m |
Styl budynku nowoczesny |
Liczba łazieniek 2 |
Strop żelbetowy |
Szerokość budynku 16.39 m |
Kominek kominek opcjonalnie |
Kąt nachylenia dachu 40 ° |
Kalenica prostopadła do drogi |
Długość budynku 16 m |
Piwnica bez podpiwniczenia |
Funkcje dodatkowe z pralnią |
Kubatura 850 m³ |
Rodzaj garażu przyklejony |
Koszty budowy 400-450 tys., tylko z kosztorysem |
Ilość pokoi 6 |
Powierzchnia zabudowy 173.21 m² |
Garaż 2 stanowiska |
Szerokość działki 26.24 m |
Typ domu jednorodzinny całoroczny |
Rodzaj dachu dwuspadowy |
Ogrzewanie gaz |
Styl budynku nowoczesny |
Strop żelbetowy |
Kominek kominek opcjonalnie |
Kalenica prostopadła do drogi |
Piwnica bez podpiwniczenia |
Kubatura 850 m³ |
Koszty budowy 400-450 tys., tylko z kosztorysem |
Pow. użytkowa 161.1 m² |
Kondygnacje parterowy+poddasze |
Technologia murowany |
Obiekt dom |
Powierzchnia dachu 249 m² |
Długość działki 19.14 m |
Wysokość budynku 8.53 m |
Liczba łazieniek 2 |
Szerokość budynku 16.39 m |
Kąt nachylenia dachu 40 ° |
Długość budynku 16 m |
Funkcje dodatkowe z pralnią |
Rodzaj garażu przyklejony |
Kupując projekt w technologii murowanej powinieneś budować dom murowany. Zupełna zmiana technologii na szkieletową wymaga przeprojektowania całego budynku ( zmieniają się obciążenia, fundamenty, konstrukcja dachu). Wydamy zgodę na takie przeprojektowanie jednak wiążę się to z dużymi kosztami. Istnieją firmy wykonawcze, które podejmują się zmiany technologii budowy bezpłatnie przy skorzystaniu z ich usług wykonawczych. Zdarza się, że pracownia architektoniczna przygotowuje warianty konkretnego projektu przewidując także inne technologie. Prosimy o sprawdzenie czy istnieje poszukiwana wersja projektu, w zakładce - warianty projektu.
Zwężenie/poszerzenie budynku* to nic innego jak zmiana w projekcie. Istnieje możliwość wprowadzenia takich zmian, we własnym zakresie (podczas adaptacji). *zwężenie/poszerzenie budynku nie powinno stanowić problemu w przypadku domów o dachu dwuspadowym jeśli wiąże się to z wydłużeniem/skróceniem kalenicy dachu.
Poznaj praktyczne porady ekspertów, które ułatwią Ci każdy etap budowy i od wyboru wymarzonego domu po jego wykończenie. Zyskaj pewność, że podejmujesz najlepsze decyzje dzięki sprawdzonym wskazówkom od specjalistów z planz.pl
Wycena szacunkowa, w kwotach netto, nie zawiera instalacji.
bezpłatnie (0zł)
przelew zwykły / PayNow
przy odbiorze
2-4 dni robocze (jeśli projekt nie jest koncepcją)
Wybierz wygodny dla Ciebie czas kontaktu z naszym Doradcą Technicznym.