Gotowy projekt domu UA473 (ID: 35049)
UA473
5200
2026-01-23
Dostawa w ciągu 3-10 dni
Gwarantujemy najniższą cenę
UA473 - 172.62m²
Dostawa w ciągu 3-10 dni
Gwarantujemy najniższą cenę
5200 zł
W cenie projektu:
📣 GRATIS: WIERTARKA UDAROWA
- Tablica + dziennik budowy
- 16 projektów ogrodowych
- Darmowa wysyłka (kurier, paczkomat, pobranie)
- 30 dni na zwrot
- Pozwolenie na zmiany z podpisem i pieczęcią autora
- GRATIS: Wiertarka Udarowa
22 299 20 00 (pn-nd 9.30 do 19.30)
Zawartość projektu
3 egzemplarze projektu archtektoniczno budowlanego + 3 egzemplarze projektu technicznego.
Dokumentacja projektowa zgodnie z nowymi przepisami WT2021 dostarczana jest w formie: 3+3 egzemplarze.
Czyli w dwóch częściach zawierających:
I - projekt architektoniczno-budowlany złożony z opisu technicznego oraz rysunków;
II - projekt techniczny, obejmujący: konstrukcję, instalacje (wodno-kanalizacyjną, elektryczną, sanitarną) ze szczegółowym opisem i rysunkami oraz charakterystykę energetyczną.
W części architektonicznej znajdują się:
- opisy
- rysunki techniczne
W częsci technicznej znajdują się:
- część konstrukcyjna
- część instalacyjna (instalacje elektryczne, sanitarne)
- charakterystyka energetyczna
Zawartość projektu nie dotyczy budynków gospodarczych, garaży oraz obiektów malej architektury.
Zawartość projektów bez rozrysowanej na rzucie kotłowni/łazienki/kuchni może nie obejmować schematów c.o. i wodno-kanalizacyjnych. W przypadku obiektów małej architektury - również może nie zawierać schematów instalacji elektrycznej.
Zapoznaj się ze szczegółami projektu - zamów bezpłatne rysunki do: UA473
Wypełnij formularz i otrzymaj na podany adres e-mail rysunki w pdf z dokładnymi wymiarami budynku i pomieszczeń (długość, szerokość, wysokość) dla projektu UA473
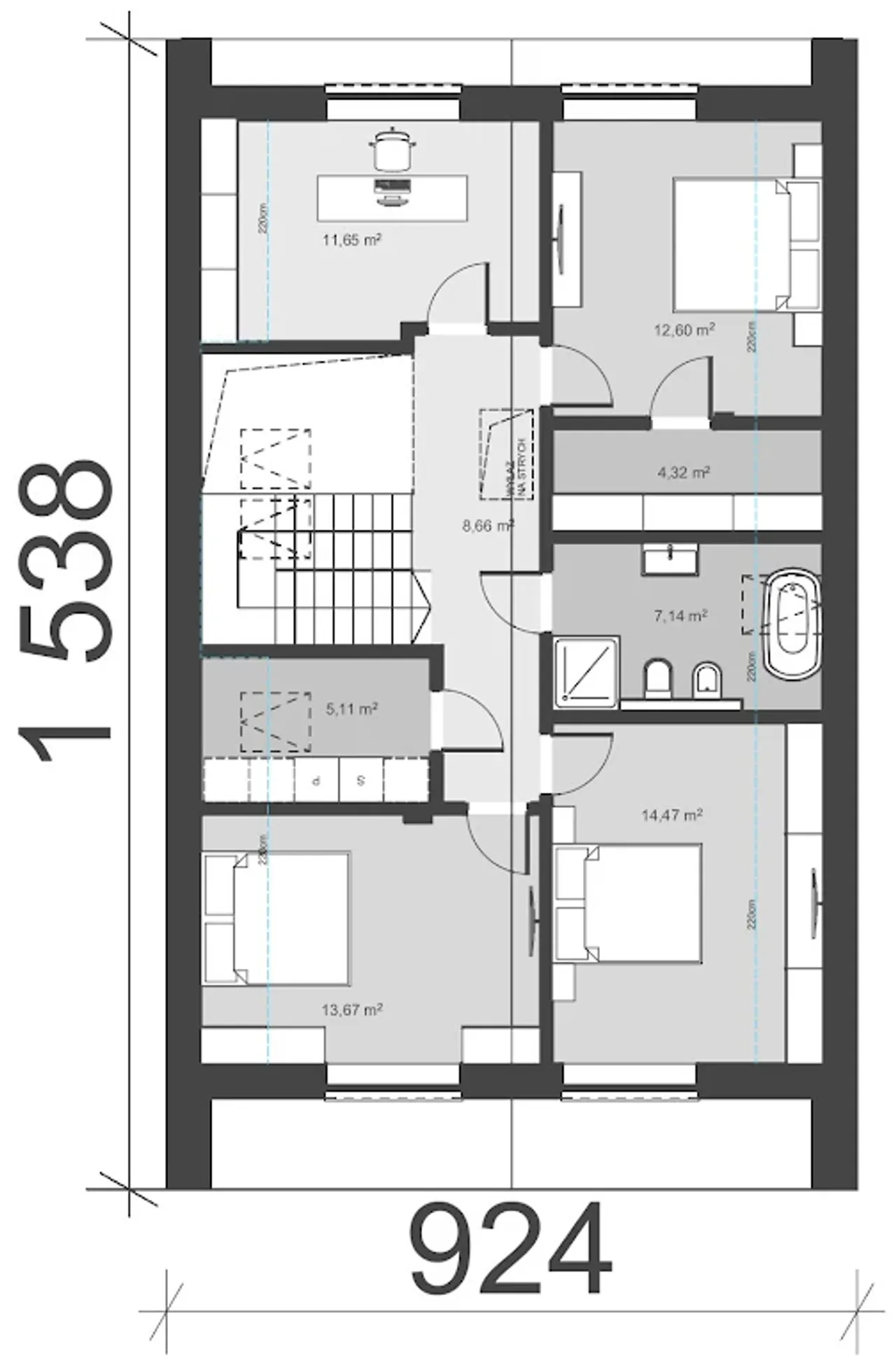
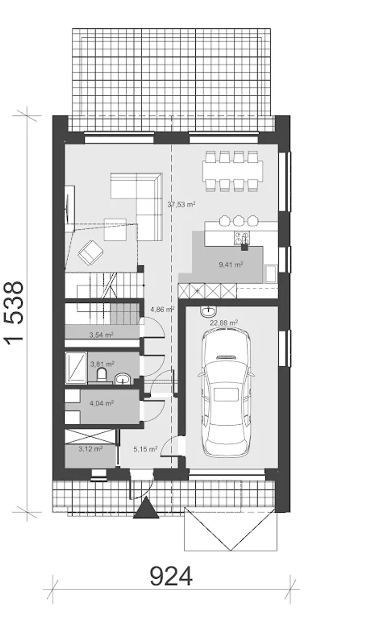
Parametry Techniczne gotowego projektu domu UA473
| Pow. użytkowa 172.62 m² |
| Powierzchnia zabudowy 126.56 m² |
| Kondygnacje parterowy+poddasze |
| Garaż 1 stanowisko |
| Technologia murowany |
| Szerokość działki 9.24 m |
| Obiekt dom |
| Typ domu jednorodzinny całoroczny |
| Styl budynku nowoczesny |
| Kalenica prostopadła do drogi |
| Długość działki 15.38 m |
| Kąt nachylenia dachu 40 ° |
| Rodzaj dachu dwuspadowy |
| Kubatura 850 m³ |
| Kominek kominek opcjonalnie |
| Powierzchnia dachu 182 m² |
| Piwnica bez podpiwniczenia |
| Wysokość budynku 8.93 m |
| Pow. użytkowa 172.62 m² |
| Kondygnacje parterowy+poddasze |
| Technologia murowany |
| Obiekt dom |
| Styl budynku nowoczesny |
| Długość działki 15.38 m |
| Rodzaj dachu dwuspadowy |
| Kominek kominek opcjonalnie |
| Piwnica bez podpiwniczenia |
| Powierzchnia zabudowy 126.56 m² |
| Garaż 1 stanowisko |
| Szerokość działki 9.24 m |
| Typ domu jednorodzinny całoroczny |
| Kalenica prostopadła do drogi |
| Kąt nachylenia dachu 40 ° |
| Kubatura 850 m³ |
| Powierzchnia dachu 182 m² |
| Wysokość budynku 8.93 m |
Nasze prawdziwe opinie z Google
Opis projektu domu UA473
Technologia wykonania:
- Fundamenty: bloczek betonowy, lany beton.
- Ściany: gazobeton, silikat, ceramika.
- Strop: żelbetowy, drewniany.
- Dach: więźba dachowa, blacha, dachówka.
- Ogrzewanie: gaz, podłogowe.
- Wentylacja: grawitacyjna.
Dodatki do projektu UA473
Dodatki możesz kupić razem z projektem lub dokupić po czasie
[U Architekta] Kosztorys szacunkowy z projektem uA (700 zł)
Kosztorys szacunkowy z projektem uA
[U Architekta] Projektowana charakterystyka energetyczna (1000 zł)
Projektowana charakterystyka energetyczna (tylko w przypadku wyboru dodatku zmieniającego sposób ogrzewania główny lub alternatywny)
[U Architekta] Dodatkowy egzemplarz projektu (1000 zł)
Dodatkowy egzemplarz projektu
[U Architekta] Analiza dokumentów MPZP lub DoWZ (250 zł)
Analiza dokumentów MPZP lub DoWZ, do pozwolenia na budowę
[U Architekta] Elektroniczna wersja projektu DWG (500 zł)
Planując adaptację wybranego projektu domu, niezwykle przydatnym narzędziem okazuje się wersja elektroniczna dokumentacji, którą oferuje planz.pl. Dostępne w formacie DWG pliki zawierają kluczowe elementy części architektonicznej projektu, takie jak rzuty, przekroje oraz elewacje. w procesie planowania i dostosowywania projektu do indywidualnych potrzeb - taka wersja może się po prostu przydać.
Warto jednak zwrócić uwagę, że wersja elektroniczna skupia się wyłącznie na aspekcie architektonicznym, nie obejmując części konstrukcyjnej oraz instalacji.
Wersja elektroniczna dostarczana jest wyłącznie w formie cyfrowej. Zgodnie z obowiązującymi przepisami, jej zakup i dostarczenie - za zgodą konsumenta - przed upływem terminu do odstąpienia od umowy, wyklucza możliwość skorzystania z prawa do odstąpienia od umowy na podstawie art. 38 punkt 13) ustawy o prawach konsumenta z dnia 30 maja 2014 r. Prosimy o tym pamiętać, decydując się na zakup.
Dostęp do elektronicznej wersji dokumentacji to znaczące ułatwienie, które pozwala na szybsze i bardziej efektywne przeprowadzenie niezbędnych prac adaptacyjnych. Dodatek ten można dokupić na każdym etapie realizacji inwestycji prowadzonej na bazie projektu gotowego zakupionego u nas.
[U Architekta] Elektroniczna wersja projektu PDF (300 zł)
Planując adaptację wybranego projektu domu, niezwykle przydatnym narzędziem okazuje się wersja elektroniczna dokumentacji, którą oferuje planz.pl. Dostępne w formacie DWG pliki zawierają kluczowe elementy części architektonicznej projektu, takie jak rzuty, przekroje oraz elewacje. w procesie planowania i dostosowywania projektu do indywidualnych potrzeb - taka wersja może się po prostu przydać.
Warto jednak zwrócić uwagę, że wersja elektroniczna skupia się wyłącznie na aspekcie architektonicznym, nie obejmując części konstrukcyjnej oraz instalacji.
Wersja elektroniczna dostarczana jest wyłącznie w formie cyfrowej. Zgodnie z obowiązującymi przepisami, jej zakup i dostarczenie - za zgodą konsumenta - przed upływem terminu do odstąpienia od umowy, wyklucza możliwość skorzystania z prawa do odstąpienia od umowy na podstawie art. 38 punkt 13) ustawy o prawach konsumenta z dnia 30 maja 2014 r. Prosimy o tym pamiętać, decydując się na zakup.
Dostęp do elektronicznej wersji dokumentacji to znaczące ułatwienie, które pozwala na szybsze i bardziej efektywne przeprowadzenie niezbędnych prac adaptacyjnych. Dodatek ten można dokupić na każdym etapie realizacji inwestycji prowadzonej na bazie projektu gotowego zakupionego u nas.
[U Architekta] Paliwo stałe, kocioł w kotłowni (600 zł)
Paliwo stałe, kocioł w kotłowni
[U Architekta] Wentylacja mechaniczna z rekuperatorem (1000 zł)
System wentylacji mechanicznej z rekuperacją to innowacyjne rozwiązanie, które zastępuje tradycyjną wentylację. Rekuperator pozwala na odzyskiwanie ciepła z powietrza wywiewanego, wykorzystując je do ogrzewania powietrza nawiewanego. Dzięki temu system zapewnia nie tylko stałe dostawy świeżego powietrza, ale także jego filtrację, oczyszczając z kurzu i pyłów, co gwarantuje czystość i odpowiedni poziom nawilżenia powietrza.
Podsumowując, wentylacja mechaniczna z rekuperacją oferuje wiele korzyści. Podnosi standard domu, jest korzystniejsza dla zdrowia i samopoczucia mieszkańców niż tradycyjna wentylacja grawitacyjna. Zwiększa energooszczędność budynku, działa niezależnie od warunków atmosferycznych, co przekłada się na większą wydajność i brak strat ciepła, a także pozytywnie wpływa na rachunki za ogrzewanie. Ważne jest, by pamiętać, że instalacja tego typu systemu może wymagać dokonania zmian w projekcie domu
[U Architekta] Projekt Instalacji solarnej (700 zł)
Dzięki zastosowaniu instalacji solarnej zmienia się energię słoneczną na cieplną. Kolektory słoneczne (solary) najczęściej instaluje się na dachu budynków lub bezpośrednio na ziemi. Najczęściej instalacje solarne znajdują zastosowanie do podgrzewania wody użytkowej. Pozwala to rocznie zaoszczędzić nawet do 60% energii potrzebnej do podgrzewania wody.
[U Architekta] Pompa ciepła (650 zł)
Pompa ciepła to urządzenie grzewcze działające w niskich temperaturach, które czerpie energię cieplną z naturalnych źródeł jak grunt, powietrze.
[U Architekta] Ogrzewanie podłogowe (650 zł)
Ogrzewanie podłogowe doskonale funkcjonuje jako główny system grzewczy lub jako uzupełnienie tradycyjnych grzejników. Oferuje równomierne ogrzewanie całego pomieszczenia, co przekłada się na niższe koszty eksploatacyjne. Brak kaloryferów zwiększa dostępną przestrzeń użytkową, co jest dodatkowym atutem. Ogrzewanie podłogowe jest także przyjazne dla alergików. Zapewnia, że podłoga i powietrze przy niej są ciepłe, co czyni dom bardziej komfortowym dla dzieci. Warto pamiętać, że instalacja tego systemu może wymagać modyfikacji projektu domu.
[U Architekta] Panele fotowoltaiczne (600 zł)
Czysta energia dla Twojego domu! Fotowoltaika to nowoczesne i ekologiczne rozwiązanie, które pozwoli znacząco obniżyć koszty eksploatacji budynku.
[U Architekta] Projekt instalacji gazowej (600 zł)
Ogrzewanie gazowe to popularne i wygodne rozwiązanie. Dzięki nowoczesnym kotłom gazowym można osiągnąć wysoką wydajność przy jednoczesnym obniżeniu kosztów eksploatacji. System ten sprawdzi się zarówno w domach jednorodzinnych.
[U Architekta] Nawadnianie z wód opadowych (900 zł)
Nawadnianie z wód opadowych to ekologiczne i ekonomiczne rozwiązanie, które pozwala efektywnie wykorzystać deszczówkę do podlewania roślin. Dzięki odpowiednio zaprojektowanemu systemowi zbierania i przechowywania wód opadowych, można zmniejszyć zużycie wody pitnej, jednocześnie wspierając zrównoważone gospodarowanie zasobami naturalnymi. To praktyczne podejście, które sprzyja ochronie środowiska i obniża koszty utrzymania ogrodu czy terenów zielonych.
[Planz] Tablica budowlana (0 zł)
Decydując się na zakup projektu domu w planz.pl, każdy nasz klient otrzyma wyjątkowy bonus, elastyczną i odporną na warunki atmosferyczne tablicę budowlaną o wymiarach 90x70 cm. Ta praktyczna tablica jest niezbędnym elementem na każdym placu budowy. Dzięki swojej elastyczności i odporności, tablica ta stanie się trwałym i widocznym punktem orientacyjnym dla ekipy budowlanej oraz inspektorów. Wybierz planz.pl i ciesz się nie tylko profesjonalnym projektem, ale i dodatkami, które ułatwią realizację Twojej budowy.
[Planz] Dziennik budowy (0 zł)
Przy zakupie projektu domu na planz.pl otrzymasz dziennik budowy gratis – niezbędny dokument urzędowy, który szczegółowo rejestruje przebieg prac budowlanych. Jest on wymagany przez Prawo Budowlane i służy nie tylko do porządkowania procesu budowy, ale również jako dowód w ewentualnych sporach. Dziennik w formacie A4 z ponumerowanymi stronami ułatwia chronologiczne dokonywanie wpisów. Każdy egzemplarz posiada unikatowy numer i jest urzędowo rejestrowany. Nasz dziennik budowy jest do tego atrakcyjny wizualnie, w twardej okładce.
[Planz] Wiertarka udarowa (0 zł)
Wybierając projekt domu na planz.pl, otrzymasz praktyczny prezent. Dla każdego, kto zdecyduje się na zakup projektu o wartości przekraczającej 3000 zł, przygotowaliśmy specjalny bonus: wiertarkę gratis! To doskonałe narzędzie, które z pewnością przyda się podczas prac wykończeniowych lub drobnych napraw w nowym domu.
[Planz] Zgoda na zmiany w projekcie (0 zł)
Do każdego projektu załączamy zgodę na podstawowe zmiany (np. rodzaj i umiejscowienie okien i drzwi, przestawienie ścian działowych, zmiana materiałów wykończeniowych). Rozszerzona zgoda na zmiany jest również bezpłatna, szczegółowy zakres dodatkowych zmian w projekcie prosimy podać na formularzu zamówienia, w polu komentarz. GRATIS!!!
[Planz] Projekty architektury ogrodowej (0 zł)
16 gotowych projektów drewnianej architektury ogrodowej w wersji elektronicznej. Wśród nich:
Altana 3x3m, Zadaszenie 2,34x1,2m (typ 1,typ 2, typ 3), Drewutnia 2,78x1,44 m, Domek ogrodowy 2,78x1,44 m, Garaż Jodła 6,01x3,76 m, Garaż, Sosna 6,01x6,27 m, Ambona myśliwska (typ 1,typ 2), Wiata Grillowa 5x5 m, Wiata Grillowa 6x4 m, Brama (typ 1, typ 2, typ 3), Szoposzklarnia.
Cena: 0zł
[Planz] Charakterystyka energetyczna, tylko dla domów całorocznych (0 zł)
Dotyczy tylko projektów domów całorocznych. Charakterystyka energetyczna w projekcie domu, znana również jako świadectwo charakterystyki energetycznej lub certyfikat energetyczny, to dokument oceniający efektywność energetyczną budynku. Określa ona, ile energii (na ogrzewanie, wentylację, ciepłą wodę użytkową i oświetlenie) będzie potrzebował dany budynek do prawidłowego funkcjonowania w standardowych warunkach użytkowania. Charakterystyka ta jest wyrażana w kWh na metr kwadratowy powierzchni użytkowej budynku na rok (kWh/(m²·rok)).
Opracowanie charakterystyki energetycznej jest wymagane, zarówno dla nowo budowanych domów, jak i przy sprzedaży nieruchomości.
Wysyłka i płatność za projekt UA473
Koszty wysyłki
bezpłatnie (0zł)
Formy płatności
przelew zwykły / PayNow
przy odbiorze
Czas oczekiwania
2-4 dni robocze (jeśli projekt nie jest koncepcją)
Projekt w kategoriach
PRACOWNIA:
U Architekta
Zamów rozmowę
Wybierz wygodny dla Ciebie czas kontaktu z naszym Doradcą Technicznym.
parterowy+poddasze
1 stanowisko
murowany
[U Architekta] Projektowana charakterystyka energetyczna (1000 zł)
[U Architekta] Elektroniczna wersja projektu PDF (300 zł)
[U Architekta] Wentylacja mechaniczna z rekuperatorem (1000 zł)
[U Architekta] Panele fotowoltaiczne (600 zł)
[U Architekta] Nawadnianie z wód opadowych (900 zł)
[Planz] Dziennik budowy (0 zł)
[Planz] Zgoda na zmiany w projekcie (0 zł)
[Planz] Charakterystyka energetyczna, tylko dla domów całorocznych (0 zł)