Halifax



Zawartość projektu
1. Wiatrołap | 7,46 m² |
2. Wc | 5,07 m² |
3. Gabinet | 11,07 m² |
4. Spiżarnia | 5,37 m² |
5. Kuchnia | 13,98 m² |
6. Jadalnia | 15,78 m² |
7. Pokój dzienny | 33,73 m² |
8. Korytarz | 11,80 m² |
9. Pom. gospodarcze | 20,97 m² |
10. Garaż | 58,61 m² |
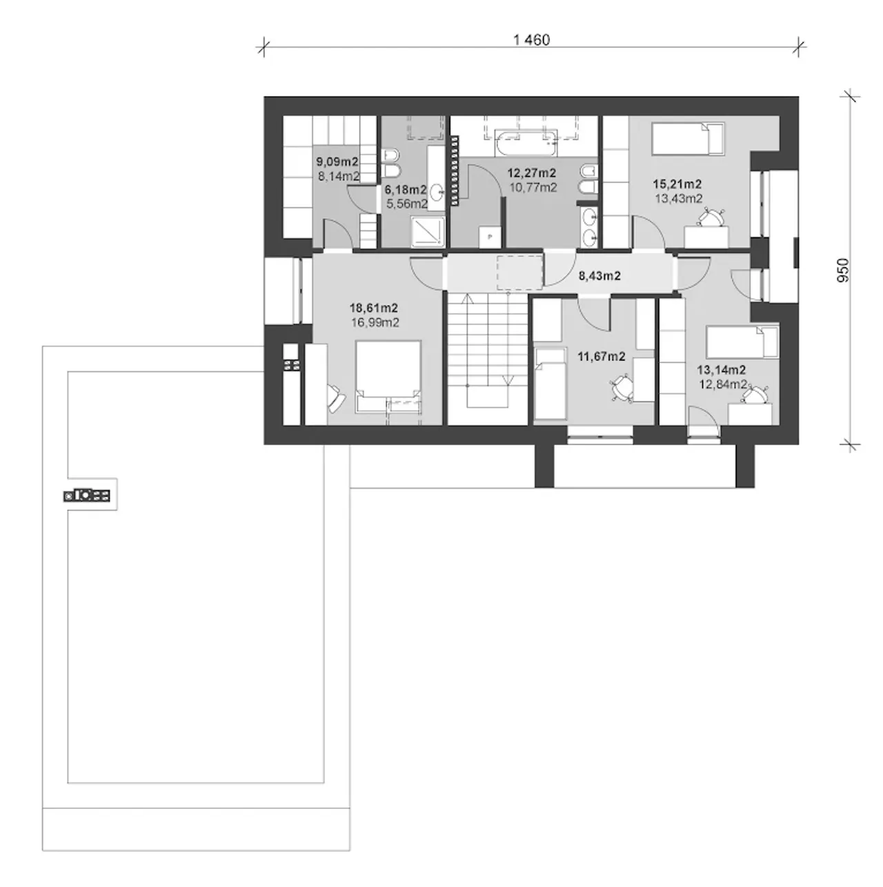
1. Korytarz | 8,43 m² |
2. Sypialnia | 16,99 (18,61) m² |
3. Garderoba | 8,14 (9,09) m² |
4. łazienka 1 | 5,56 (6,18) m² |
5. łazienka 2 | 10,77 (12,27) m² |
6. Pokój 1 | 13,43 (15,21) m² |
7. Pokój 2 | 12,84 (13,14) m² |
8. Pokój 3 | 11,67 m² |
Wypełnij formularz i otrzymaj rysunki w pdf z dokładnymi wymiarami budynku i pomieszczeń (długość, szerokość, wysokość) dla projektu UA4
Pow. użytkowa 195.3 m² |
Ilość pokoi 6 |
Powierzchnia zabudowy 236.74 m² |
Kondygnacje parterowy+poddasze |
Garaż 2 stanowiska |
Technologia murowany |
Szerokość działki 28.91 m |
Obiekt dom |
Typ domu jednorodzinny całoroczny |
Kubatura 1263 m³ |
Rodzaj dachu dwuspadowy |
Ogrzewanie gaz |
Strop żelbetowy |
Wysokość budynku 9.71 m |
Przechowywanie w kuchni spiżarnia |
Długość działki 29.11 m |
Kalenica równoległa do drogi |
Kąt nachylenia dachu drugiego 17 |
Styl budynku nowoczesny |
Liczba łazieniek 3 |
Funkcje dodatkowe z lukarnami |
Kąt nachylenia dachu 42 ° |
Szerokość budynku 23.61 m |
Kotłownia duża kotłownia |
Długość budynku 22.41 m |
Rodzaj garażu z przodu |
Piwnica bez podpiwniczenia |
Koszty budowy 500-550 tys., tylko z kosztorysem |
Pow. użytkowa 195.3 m² |
Powierzchnia zabudowy 236.74 m² |
Garaż 2 stanowiska |
Szerokość działki 28.91 m |
Typ domu jednorodzinny całoroczny |
Rodzaj dachu dwuspadowy |
Strop żelbetowy |
Przechowywanie w kuchni spiżarnia |
Kalenica równoległa do drogi |
Styl budynku nowoczesny |
Funkcje dodatkowe z lukarnami |
Szerokość budynku 23.61 m |
Długość budynku 22.41 m |
Piwnica bez podpiwniczenia |
Ilość pokoi 6 |
Kondygnacje parterowy+poddasze |
Technologia murowany |
Obiekt dom |
Kubatura 1263 m³ |
Ogrzewanie gaz |
Wysokość budynku 9.71 m |
Długość działki 29.11 m |
Kąt nachylenia dachu drugiego 17 |
Liczba łazieniek 3 |
Kąt nachylenia dachu 42 ° |
Kotłownia duża kotłownia |
Rodzaj garażu z przodu |
Koszty budowy 500-550 tys., tylko z kosztorysem |
Kupując projekt w technologii murowanej powinieneś budować dom murowany. Zupełna zmiana technologii na szkieletową wymaga przeprojektowania całego budynku ( zmieniają się obciążenia, fundamenty, konstrukcja dachu). Wydamy zgodę na takie przeprojektowanie jednak wiążę się to z dużymi kosztami. Istnieją firmy wykonawcze, które podejmują się zmiany technologii budowy bezpłatnie przy skorzystaniu z ich usług wykonawczych. Zdarza się, że pracownia architektoniczna przygotowuje warianty konkretnego projektu przewidując także inne technologie. Prosimy o sprawdzenie czy istnieje poszukiwana wersja projektu, w zakładce - warianty projektu.
Zwężenie/poszerzenie budynku* to nic innego jak zmiana w projekcie. Istnieje możliwość wprowadzenia takich zmian, we własnym zakresie (podczas adaptacji). *zwężenie/poszerzenie budynku nie powinno stanowić problemu w przypadku domów o dachu dwuspadowym jeśli wiąże się to z wydłużeniem/skróceniem kalenicy dachu.
Poznaj praktyczne porady ekspertów, które ułatwią Ci każdy etap budowy i od wyboru wymarzonego domu po jego wykończenie. Zyskaj pewność, że podejmujesz najlepsze decyzje dzięki sprawdzonym wskazówkom od specjalistów z planz.pl
Wycena szacunkowa, w kwotach netto, nie zawiera instalacji.
bezpłatnie (0zł)
przelew zwykły / PayNow
przy odbiorze
2-4 dni robocze (jeśli projekt nie jest koncepcją)
Wybierz wygodny dla Ciebie czas kontaktu z naszym Doradcą Technicznym.