- Promocja GRATISOWA do 06.10.2025 ➞ sprawdź zasady
- ✓ GRATIS: Wiertarka
- ✓ GRATIS: 16 projektów (drewutni, altany i wiaty)
- ✓ GRATIS: tablica i dziennik budowy
- ✓ GRATIS: przesyłka kurierska
- Potrzebujesz ADAPTACJI lub architekta do ZMIAN w projekcie? ➞ sprawdź jak pomożemy bez dodatkowej opłaty

Zawartość projektu
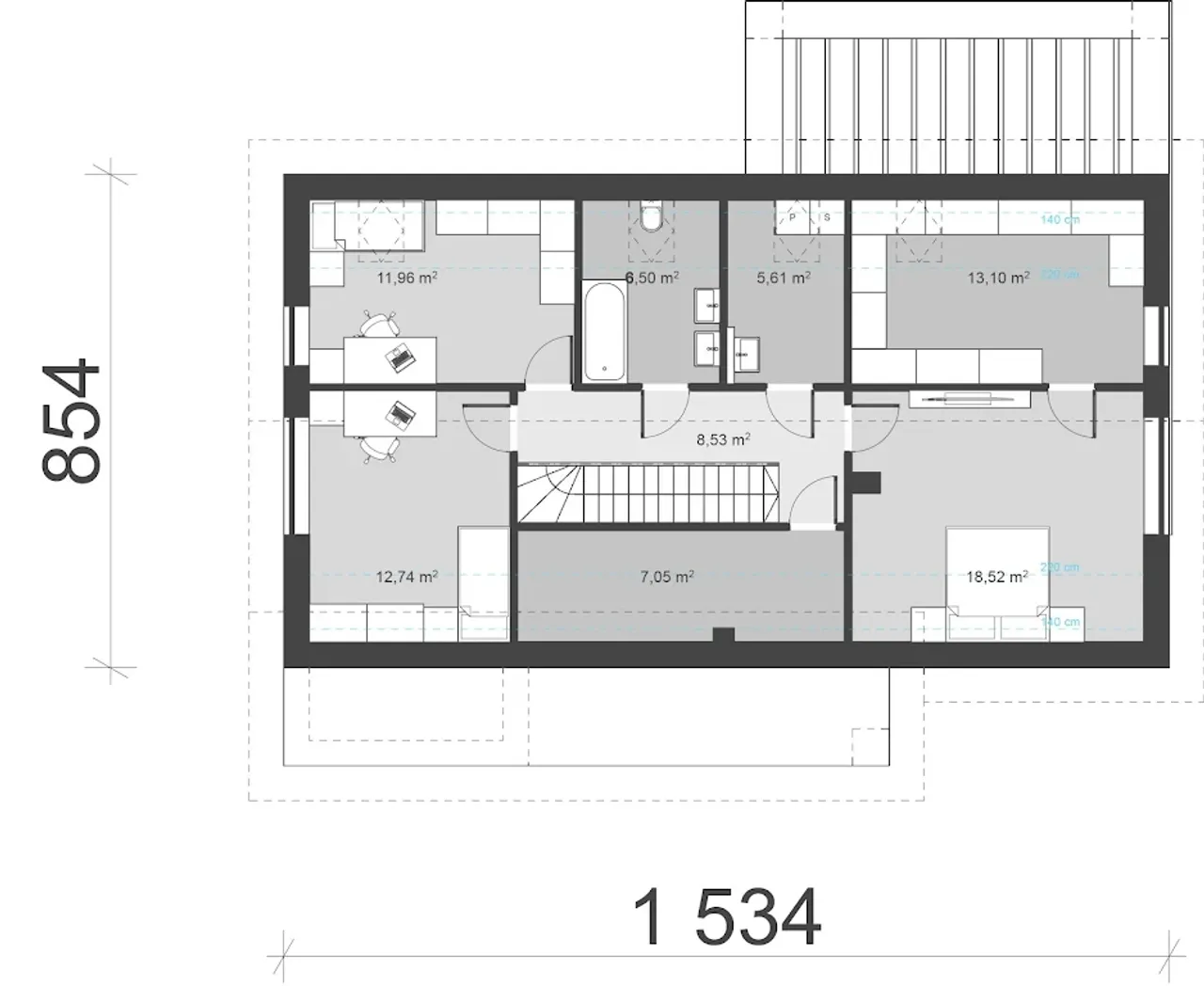
Rzuty gotowego projektu domu UA397
1. Wiatrołap | 5,29 m² |
2. Garderoba | 7,06 m² |
3. Korytarz | 8,35 m² |
4. Pokój dzienny + jadalnia | 35,91 m² |
5. Kuchnia | 8,87 m² |
6. Spiżarnia | 6,34 m² |
7. łazienka | 7,34 m² |
8. Pom. gospodarcze | 7,65 m² |
9. Garaż | 20,36 m² |
1. Korytarz | 8,53 m² |
2. Pokój | 12,74 m² |
3. Pokój | 11,96 m² |
4. łazienka | 6,50 m² |
5. Pralnia | 5,61 m² |
6. Garderoba | 13,10 m² |
7. Sypiania | 18,52 m² |
8. Strych | 7,05 m² |
Zapoznaj się ze szczegółami projektu - pobierz bezpłatne rysunki do: UA397
Wypełnij formularz i otrzymaj rysunki w pdf z dokładnymi wymiarami budynku i pomieszczeń (długość, szerokość, wysokość) dla projektu UA397

Parametry Techniczne gotowego projektu domu UA397
Pow. użytkowa 153.12 m² |
Ilość pokoi 4 |
Powierzchnia zabudowy 138.21 m² |
Kondygnacje parterowy+poddasze |
Garaż 1 stanowisko |
Technologia murowany |
Szerokość działki 23.24 m |
Obiekt dom |
Typ domu jednorodzinny całoroczny |
Powierzchnia dachu 234 m² |
Długość działki 19.09 m |
Wysokość budynku 8.25 m |
Kalenica równoległa do drogi |
Styl budynku nowoczesny |
Liczba łazieniek 2 |
Szerokość budynku 15.34 m |
Kominek kominek w projekcie |
Kąt nachylenia dachu 40 ° |
Długość budynku 10.24 m |
Rodzaj dachu dwuspadowy |
Piwnica bez podpiwniczenia |
Kubatura 775 m³ |
Koszty budowy 500-550 tys., tylko z kosztorysem |
Pow. użytkowa 153.12 m² |
Powierzchnia zabudowy 138.21 m² |
Garaż 1 stanowisko |
Szerokość działki 23.24 m |
Typ domu jednorodzinny całoroczny |
Długość działki 19.09 m |
Kalenica równoległa do drogi |
Liczba łazieniek 2 |
Kominek kominek w projekcie |
Długość budynku 10.24 m |
Piwnica bez podpiwniczenia |
Koszty budowy 500-550 tys., tylko z kosztorysem |
Ilość pokoi 4 |
Kondygnacje parterowy+poddasze |
Technologia murowany |
Obiekt dom |
Powierzchnia dachu 234 m² |
Wysokość budynku 8.25 m |
Styl budynku nowoczesny |
Szerokość budynku 15.34 m |
Kąt nachylenia dachu 40 ° |
Rodzaj dachu dwuspadowy |
Kubatura 775 m³ |
Nasze prawdziwe opinie z Google
Opis projektu domu UA397
Technologia wykonania:
- Fundamenty: płyta żelbetowa.
- Ściany: gazobeton, silikaty, ceramika.
- Strop: żelbetowy.
- Dach: więźba dachowa, dachówka, blacha.
- Ogrzewanie: gaz, podłogowe.
- Wentylacja: grawitacyjna.
Częste pytania
Czy mogę wprowadzić zmiany w projekcie?
Projekt jest murowany, a ja chcę budować drewniany
Kupując projekt w technologii murowanej powinieneś budować dom murowany. Zupełna zmiana technologii na szkieletową wymaga przeprojektowania całego budynku ( zmieniają się obciążenia, fundamenty, konstrukcja dachu). Wydamy zgodę na takie przeprojektowanie jednak wiążę się to z dużymi kosztami. Istnieją firmy wykonawcze, które podejmują się zmiany technologii budowy bezpłatnie przy skorzystaniu z ich usług wykonawczych. Zdarza się, że pracownia architektoniczna przygotowuje warianty konkretnego projektu przewidując także inne technologie. Prosimy o sprawdzenie czy istnieje poszukiwana wersja projektu, w zakładce - warianty projektu.
Co zrobić gdy wybrany dom nie mieści się na działce?
Zwężenie/poszerzenie budynku* to nic innego jak zmiana w projekcie. Istnieje możliwość wprowadzenia takich zmian, we własnym zakresie (podczas adaptacji). *zwężenie/poszerzenie budynku nie powinno stanowić problemu w przypadku domów o dachu dwuspadowym jeśli wiąże się to z wydłużeniem/skróceniem kalenicy dachu.
Jakie zmiany można wprowadzić w projekcie?
- Rozmieszczenie ścian działowych.
- Zmiany funkcji pomieszczeń.
- Modyfikacje wielkości, ilości i kształtu otworów okiennych i drzwiowych.
- Użycie innych materiałów na elementy konstrukcyjne budynku (ściany, stropy) przy zachowaniu wymagań konstrukcji, parametrów cieplnych budynku i elewacji.
- Wprowadzenie częściowego lub całkowitego podpiwniczenia budynku.
- Zmiana kąta nachylenia, kształtu i konstrukcji dachu.
- Zmiana sposobu ogrzewania i prowadzenia instalacji CO, zmiany instalacji wodno-kanalizacyjnej, gazowej, oraz elektrycznej (zachowując obowiązujące normy, zgodnie z prawem budowlanym).
- Zmiana materiałów wykończeniowych: posadzek, tynków, dachówki, izolacji cieplnej i przeciwwilgociowej (przy zachowaniu niezbędnych parametrów wytrzymałości oraz parametrów przenikania ciepła).
- Zmiany wynikające z dostosowania budynku do warunków gruntowych.
- Zmiany wymiarów fundamentów.
- Zmiany wymiarów przekrojów lub rozstawu elementów więźby dachowej wynikające z dostosowania budynku do strefy śniegowej lub wiatrowej.
- Zmiany szerokości schodów, liczby stopni i wymiarów schodów wewnętrznych oraz zewnętrznych.
- Zmiany pokrycia dachowego (uwzględniając istniejące spadki i ciężar).
- Zmiany kształtu, wielkości, usytuowania elementów takich jak tarasy, wiaty, murki.
- Zmiany wysokości ścianki kolankowej.
- Zmiany usytuowania i ilości kominów.
- Dobudowanie lub usunięcie garażu lub wiaty garażowej.
- Dobudowanie lub usunięcie lukarn.
- Dobudowanie lub usunięcie balkonów.
- Dobudowanie lub usunięcie wykuszy.
- Zabudowanie podcienia.
Poznaj praktyczne porady ekspertów, które ułatwią Ci każdy etap budowy i od wyboru wymarzonego domu po jego wykończenie. Zyskaj pewność, że podejmujesz najlepsze decyzje dzięki sprawdzonym wskazówkom od specjalistów z planz.pl
Co zawiera projekt
- ✓ 3 x projekt architektoniczno-budowlany ➞ szczegóły
- ✓ Projekty techniczne ➞ szczegóły
- ✓ charakterystyka energetyczna (do projektów domów)
- ✓ zgoda na zmiany w projekcie ➞ szczegóły
- ✓ GRATIS: Wiertarka (do projektów w cenie od 3000 zł)
- ✓ GRATIS: 16 projektów (drewutni, altany i wiaty)
- ✓ GRATIS: tablica i dziennik budowy
- ✓ GRATIS: przesyłka kurierska
Szacunkowy kosztorys dla projektu UA397

Wycena szacunkowa, w kwotach netto, nie zawiera instalacji.
Dodatki do projektu UA397
[U Architekta] Kosztorys szacunkowy z projektem uA (700 zł)
[U Architekta] Projektowana charakterystyka energetyczna (1000 zł)
[U Architekta] Dodatkowy egzemplarz projektu (1000 zł)
[U Architekta] Analiza dokumentów MPZP lub DoWZ (250 zł)
[U Architekta] Elektroniczna wersja projektu DWG (500 zł)
[U Architekta] Elektroniczna wersja projektu PDF (300 zł)
[U Architekta] Paliwo stałe, kocioł w kotłowni (600 zł)
[U Architekta] Wentylacja mechaniczna z rekuperatorem (1000 zł)
[U Architekta] Projekt Instalacji solarnej (700 zł)
[U Architekta] Pompa ciepła (650 zł)
[U Architekta] Ogrzewanie podłogowe (650 zł)
[U Architekta] Panele fotowoltaiczne (600 zł)
[U Architekta] Projekt instalacji gazowej (600 zł)
[U Architekta] Nawadnianie z wód opadowych (900 zł)
[Planz] Tablica budowlana (0 zł)
[Planz] Dziennik budowy (0 zł)
[Planz] Wiertarka udarowa (0 zł)
[Planz] Zgoda na zmiany w projekcie (0 zł)
[Planz] Projekty architektury ogrodowej (0 zł)
[Planz] Charakterystyka energetyczna, tylko dla domów całorocznych (0 zł)
Wysyłka i płatność za projekt UA397

Koszty wysyłki
bezpłatnie (0zł)

Formy płatności
przelew zwykły / PayNow
przy odbiorze

Czas oczekiwania
2-4 dni robocze (jeśli projekt nie jest koncepcją)
Komentarze / pytania do projektu domu UA397
Projekt w kategoriach
Zamów rozmowę
Wybierz wygodny dla Ciebie czas kontaktu z naszym Doradcą Technicznym.