CEZAR



Zawartość projektu
1. Wiatrołap | 4,92 m² |
2. Wc | 3,60 m² |
3. Gabinet | 11,09 m² |
4. Kuchnia | 10,53 m² |
5. Jadalnia | 12,56 m² |
6. Pokój dzienny | 24,05 m² |
7. Pom. gospodarcze | 6,67 m² |
8. Garaż | 22,18 m² |
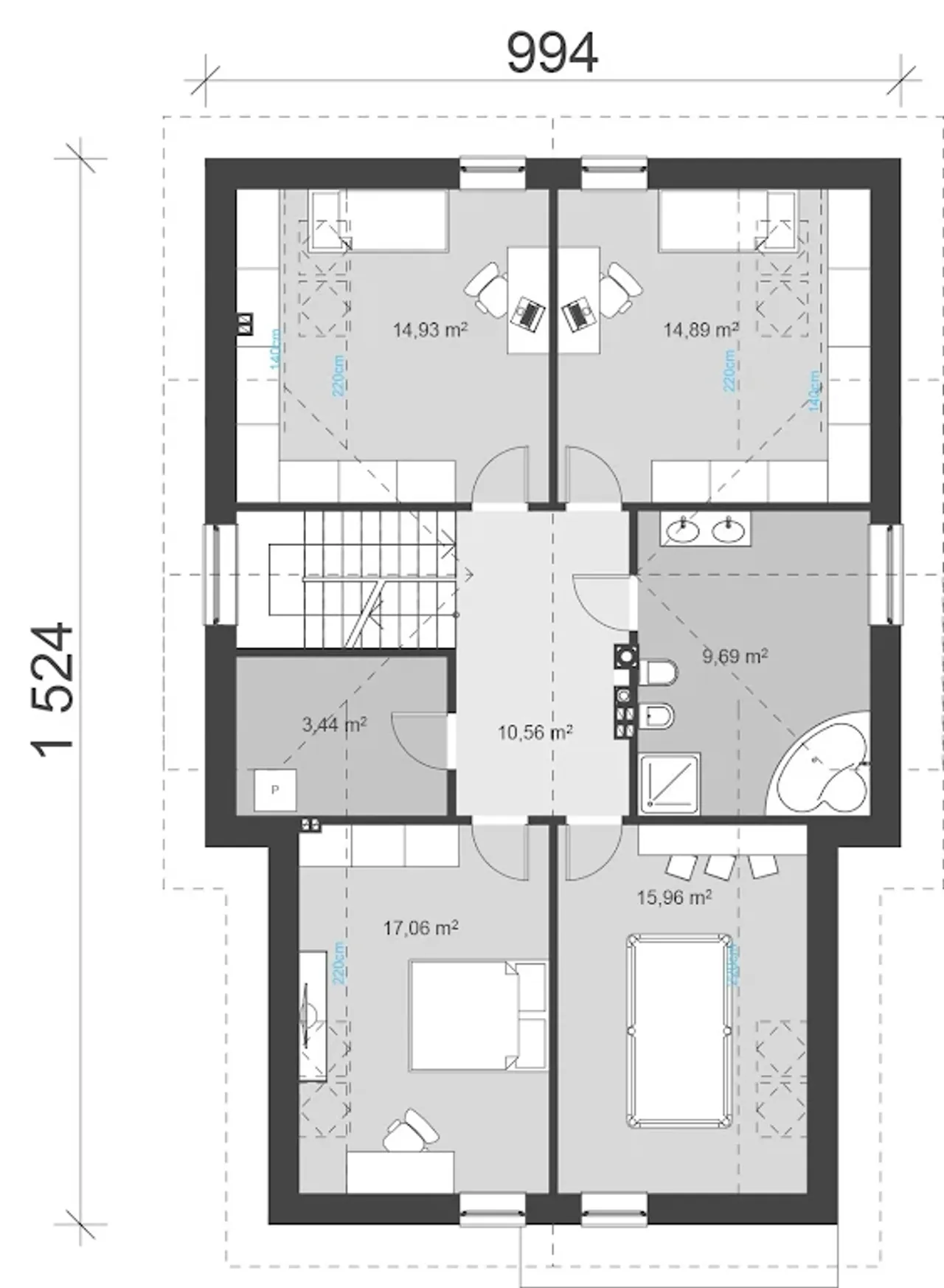
1. Korytarz | 10,56 m² |
2. łazienka | 9,69 m² |
3. Garderoba | 3,44 m² |
4. Pokój 1 | 17,06 m² |
5. Pokój 2 | 15,96 m² |
6. Pokój 3 | 14,89 m² |
7. Pokój 4 | 14,93 m² |
Wypełnij formularz i otrzymaj rysunki w pdf z dokładnymi wymiarami budynku i pomieszczeń (długość, szerokość, wysokość) dla projektu uA37
Ilość pokoi 6 |
Pow. użytkowa 159.7 m² |
Powierzchnia zabudowy 136.8 m² |
Kondygnacje parterowy+poddasze |
Garaż 1 stanowisko |
Technologia murowany |
Szerokość działki 17.94 m |
Obiekt dom |
Typ domu jednorodzinny całoroczny |
Długość budynku 16.14 m |
Piwnica bez podpiwniczenia |
Funkcje dodatkowe z lukarnami |
Kubatura 900 m³ |
Rodzaj garażu w bryle |
Powierzchnia dachu 240 m² |
Rodzaj dachu dwuspadowy |
Długość działki 25.34 m |
Ogrzewanie gaz |
Wysokość budynku 9 m |
Liczba łazieniek 2 |
Styl budynku nowoczesny |
Kominek kominek w projekcie |
Strop żelbetowy |
Szerokość budynku 9.94 m |
Kotłownia duża kotłownia |
Kąt nachylenia dachu 42 ° |
Kalenica równoległa do drogi |
Koszty budowy 450-500 tys., tylko z kosztorysem |
Ilość pokoi 6 |
Powierzchnia zabudowy 136.8 m² |
Garaż 1 stanowisko |
Szerokość działki 17.94 m |
Typ domu jednorodzinny całoroczny |
Piwnica bez podpiwniczenia |
Kubatura 900 m³ |
Powierzchnia dachu 240 m² |
Długość działki 25.34 m |
Wysokość budynku 9 m |
Styl budynku nowoczesny |
Strop żelbetowy |
Kotłownia duża kotłownia |
Kalenica równoległa do drogi |
Pow. użytkowa 159.7 m² |
Kondygnacje parterowy+poddasze |
Technologia murowany |
Obiekt dom |
Długość budynku 16.14 m |
Funkcje dodatkowe z lukarnami |
Rodzaj garażu w bryle |
Rodzaj dachu dwuspadowy |
Ogrzewanie gaz |
Liczba łazieniek 2 |
Kominek kominek w projekcie |
Szerokość budynku 9.94 m |
Kąt nachylenia dachu 42 ° |
Koszty budowy 450-500 tys., tylko z kosztorysem |
Kupując projekt w technologii murowanej powinieneś budować dom murowany. Zupełna zmiana technologii na szkieletową wymaga przeprojektowania całego budynku ( zmieniają się obciążenia, fundamenty, konstrukcja dachu). Wydamy zgodę na takie przeprojektowanie jednak wiążę się to z dużymi kosztami. Istnieją firmy wykonawcze, które podejmują się zmiany technologii budowy bezpłatnie przy skorzystaniu z ich usług wykonawczych. Zdarza się, że pracownia architektoniczna przygotowuje warianty konkretnego projektu przewidując także inne technologie. Prosimy o sprawdzenie czy istnieje poszukiwana wersja projektu, w zakładce - warianty projektu.
Zwężenie/poszerzenie budynku* to nic innego jak zmiana w projekcie. Istnieje możliwość wprowadzenia takich zmian, we własnym zakresie (podczas adaptacji). *zwężenie/poszerzenie budynku nie powinno stanowić problemu w przypadku domów o dachu dwuspadowym jeśli wiąże się to z wydłużeniem/skróceniem kalenicy dachu.
Poznaj praktyczne porady ekspertów, które ułatwią Ci każdy etap budowy i od wyboru wymarzonego domu po jego wykończenie. Zyskaj pewność, że podejmujesz najlepsze decyzje dzięki sprawdzonym wskazówkom od specjalistów z planz.pl
Wycena szacunkowa, w kwotach netto, nie zawiera instalacji.
bezpłatnie (0zł)
przelew zwykły / PayNow
przy odbiorze
2-4 dni robocze (jeśli projekt nie jest koncepcją)
"Elegancki i nowoczesny projekt. Idealny dla miłośników minimalistycznego stylu. Z pewnością warty rozważenia!"
Wybierz wygodny dla Ciebie czas kontaktu z naszym Doradcą Technicznym.