UA34v1



Zawartość projektu
1. Wiatrołap | 4,49 m² |
2. Korytarz | 6,55 m² |
3. Spiżarnia | 0,94 m² |
4. Kuchnia | 28,59 m² |
5. Pokój dzienny + jadalnia | 28,59 m² |
6. łazienka | 5,07 m² |
7. Gabinet | 12,59 m² |
8. Pom. gosp. 1 | 5,74 m² |
9. Pom. gosp. 2 | 7,39 m² |
10. Garaż | 18,89 m² |
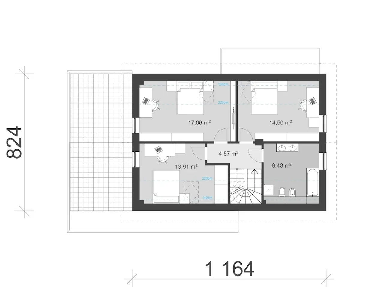
1. Korytarz | 4,57 m² |
2. łazienka | 9,43 m² |
3. Pokój 1 | 14,50 m² |
4. Sypialnia | 17,06 m² |
5. Pokój 2 | 13,91 m² |
Wypełnij formularz i otrzymaj rysunki w pdf z dokładnymi wymiarami budynku i pomieszczeń (długość, szerokość, wysokość) dla projektu UA34v4
Pow. użytkowa 124.57 m² |
Ilość pokoi 5 |
Powierzchnia zabudowy 126.43 m² |
Kondygnacje parterowy+poddasze |
Garaż 1 stanowisko |
Technologia murowany |
Szerokość działki 23.99 m |
Obiekt dom |
Typ domu jednorodzinny całoroczny |
Powierzchnia dachu 143 m² |
Rodzaj garażu w bryle |
Długość działki 17.89 m |
Ogrzewanie gaz |
Kalenica równoległa do drogi |
Wysokość budynku 7.54 m |
Rodzaj dachu dwuspadowy |
Funkcje dodatkowe z dwoma wejściami |
Liczba łazieniek 2 |
Przechowywanie w kuchni spiżarnia |
Bryła budynku prosta bryła |
Kominek kominek w projekcie |
Kąt nachylenia dachu drugiego 1 |
Szerokość budynku 15.34 m |
Styl budynku nowoczesny |
Taras z tarasem |
Kąt nachylenia dachu 35 ° |
Długość budynku 8.24 m |
Piwnica bez podpiwniczenia |
Kubatura 645 m³ |
Strop żelbetowy |
Koszty budowy 350-400 tys., tylko z kosztorysem |
Pow. użytkowa 124.57 m² |
Powierzchnia zabudowy 126.43 m² |
Garaż 1 stanowisko |
Szerokość działki 23.99 m |
Typ domu jednorodzinny całoroczny |
Rodzaj garażu w bryle |
Ogrzewanie gaz |
Wysokość budynku 7.54 m |
Funkcje dodatkowe z dwoma wejściami |
Przechowywanie w kuchni spiżarnia |
Kominek kominek w projekcie |
Szerokość budynku 15.34 m |
Taras z tarasem |
Długość budynku 8.24 m |
Kubatura 645 m³ |
Koszty budowy 350-400 tys., tylko z kosztorysem |
Ilość pokoi 5 |
Kondygnacje parterowy+poddasze |
Technologia murowany |
Obiekt dom |
Powierzchnia dachu 143 m² |
Długość działki 17.89 m |
Kalenica równoległa do drogi |
Rodzaj dachu dwuspadowy |
Liczba łazieniek 2 |
Bryła budynku prosta bryła |
Kąt nachylenia dachu drugiego 1 |
Styl budynku nowoczesny |
Kąt nachylenia dachu 35 ° |
Piwnica bez podpiwniczenia |
Strop żelbetowy |
Kupując projekt w technologii murowanej powinieneś budować dom murowany. Zupełna zmiana technologii na szkieletową wymaga przeprojektowania całego budynku ( zmieniają się obciążenia, fundamenty, konstrukcja dachu). Wydamy zgodę na takie przeprojektowanie jednak wiążę się to z dużymi kosztami. Istnieją firmy wykonawcze, które podejmują się zmiany technologii budowy bezpłatnie przy skorzystaniu z ich usług wykonawczych. Zdarza się, że pracownia architektoniczna przygotowuje warianty konkretnego projektu przewidując także inne technologie. Prosimy o sprawdzenie czy istnieje poszukiwana wersja projektu, w zakładce - warianty projektu.
Zwężenie/poszerzenie budynku* to nic innego jak zmiana w projekcie. Istnieje możliwość wprowadzenia takich zmian, we własnym zakresie (podczas adaptacji). *zwężenie/poszerzenie budynku nie powinno stanowić problemu w przypadku domów o dachu dwuspadowym jeśli wiąże się to z wydłużeniem/skróceniem kalenicy dachu.
Poznaj praktyczne porady ekspertów, które ułatwią Ci każdy etap budowy i od wyboru wymarzonego domu po jego wykończenie. Zyskaj pewność, że podejmujesz najlepsze decyzje dzięki sprawdzonym wskazówkom od specjalistów z planz.pl
Wycena szacunkowa, w kwotach netto, nie zawiera instalacji.
bezpłatnie (0zł)
przelew zwykły / PayNow
przy odbiorze
2-4 dni robocze (jeśli projekt nie jest koncepcją)
Wybierz wygodny dla Ciebie czas kontaktu z naszym Doradcą Technicznym.