TK33



Zawartość projektu
1. Wiatrołap | 6,79 m² |
2. Kuchnia | 13,91 m² |
3. Pokój dzienny + jadalnia | 31,26 m² |
4. Korytarz | 6,33 m² |
5. Gabinet | 12,08 m² |
6. Wc | 3,28 m² |
7. Pom. gospodarcze | 3,24 m² |
8. Garaż | 40,65 m² |
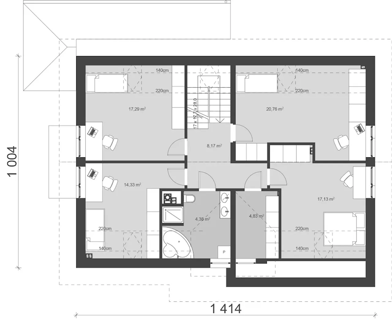
1. Korytarz | 8,17 m² |
2. Pokój 1 | 20,76 m² |
3. Sypialnia | 17,13 m² |
4. Garderoba | 4,83 m² |
5. łazienka | 4,38 m² |
6. Pokój 2 | 14,33 m² |
7. Pokój 3 | 17,29 m² |
Wypełnij formularz i otrzymaj rysunki w pdf z dokładnymi wymiarami budynku i pomieszczeń (długość, szerokość, wysokość) dla projektu uA33
Ilość pokoi 6 |
Pow. użytkowa 160.6 m² |
Powierzchnia zabudowy 152.8 m² |
Kondygnacje parterowy+poddasze |
Garaż 2 stanowiska |
Technologia murowany |
Szerokość działki 23.44 m |
Obiekt dom |
Typ domu jednorodzinny całoroczny |
Długość budynku 10.94 m |
Piwnica bez podpiwniczenia |
Funkcje dodatkowe z lukarnami |
Kubatura 885 m³ |
Rodzaj garażu w bryle |
Powierzchnia dachu 265 m² |
Rodzaj dachu dwuspadowy |
Długość działki 18.94 m |
Ogrzewanie gaz |
Wysokość budynku 8 m |
Styl budynku nowoczesny |
Strop żelbetowy |
Szerokość budynku 15.44 m |
Liczba łazieniek 2 |
Kąt nachylenia dachu 40 ° |
Kalenica równoległa do drogi |
Koszty budowy 400-450 tys., tylko z kosztorysem |
Ilość pokoi 6 |
Powierzchnia zabudowy 152.8 m² |
Garaż 2 stanowiska |
Szerokość działki 23.44 m |
Typ domu jednorodzinny całoroczny |
Piwnica bez podpiwniczenia |
Kubatura 885 m³ |
Powierzchnia dachu 265 m² |
Długość działki 18.94 m |
Wysokość budynku 8 m |
Strop żelbetowy |
Liczba łazieniek 2 |
Kalenica równoległa do drogi |
Pow. użytkowa 160.6 m² |
Kondygnacje parterowy+poddasze |
Technologia murowany |
Obiekt dom |
Długość budynku 10.94 m |
Funkcje dodatkowe z lukarnami |
Rodzaj garażu w bryle |
Rodzaj dachu dwuspadowy |
Ogrzewanie gaz |
Styl budynku nowoczesny |
Szerokość budynku 15.44 m |
Kąt nachylenia dachu 40 ° |
Koszty budowy 400-450 tys., tylko z kosztorysem |
Kupując projekt w technologii murowanej powinieneś budować dom murowany. Zupełna zmiana technologii na szkieletową wymaga przeprojektowania całego budynku ( zmieniają się obciążenia, fundamenty, konstrukcja dachu). Wydamy zgodę na takie przeprojektowanie jednak wiążę się to z dużymi kosztami. Istnieją firmy wykonawcze, które podejmują się zmiany technologii budowy bezpłatnie przy skorzystaniu z ich usług wykonawczych. Zdarza się, że pracownia architektoniczna przygotowuje warianty konkretnego projektu przewidując także inne technologie. Prosimy o sprawdzenie czy istnieje poszukiwana wersja projektu, w zakładce - warianty projektu.
Zwężenie/poszerzenie budynku* to nic innego jak zmiana w projekcie. Istnieje możliwość wprowadzenia takich zmian, we własnym zakresie (podczas adaptacji). *zwężenie/poszerzenie budynku nie powinno stanowić problemu w przypadku domów o dachu dwuspadowym jeśli wiąże się to z wydłużeniem/skróceniem kalenicy dachu.
Poznaj praktyczne porady ekspertów, które ułatwią Ci każdy etap budowy i od wyboru wymarzonego domu po jego wykończenie. Zyskaj pewność, że podejmujesz najlepsze decyzje dzięki sprawdzonym wskazówkom od specjalistów z planz.pl
Wycena szacunkowa, w kwotach netto, nie zawiera instalacji.
bezpłatnie (0zł)
przelew zwykły / PayNow
przy odbiorze
2-4 dni robocze (jeśli projekt nie jest koncepcją)
Wybierz wygodny dla Ciebie czas kontaktu z naszym Doradcą Technicznym.