L-46 murowany



Zawartość projektu
1. Wiatrołap | 7,05 m² |
2. Korytarz | 7,32 m² |
3. Gabinet | 12,47 m² |
4. Kuchnia | 7,39 m² |
5. Pokój dzienny + jadalnia | 31,87 m² |
6. łazienka | 5,55 m² |
7. Pom. gospodarcze | 4,64 m² |
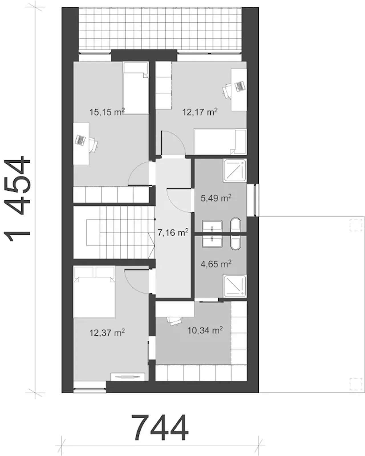
1. Korytarz | 7,16 m² |
2. Pokój | 15,15 m² |
3. Pokój | 12,17 m² |
4. łazienka | 5,49 m² |
5. łazienka | 4,65 m² |
6. Garderoba | 10,34 m² |
7. Sypialnia | 12,37 m² |
Wypełnij formularz i otrzymaj rysunki w pdf z dokładnymi wymiarami budynku i pomieszczeń (długość, szerokość, wysokość) dla projektu UA324
Pow. użytkowa 143.63 m² |
Ilość pokoi 5 |
Powierzchnia zabudowy 104.48 m² |
Kondygnacje piętrowy+poddasze |
Garaż bez garażu |
Technologia murowany |
Szerokość działki 16.94 m |
Obiekt dom |
Typ domu jednorodzinny całoroczny |
Wysokość budynku 8.26 m |
Bryła budynku plan litery L |
Styl budynku nowoczesny |
Liczba łazieniek 3 |
Szerokość budynku 7.44 m |
Kominek kominek opcjonalnie |
Kąt nachylenia dachu 35 ° |
Strop żelbetowy |
Długość budynku 14.54 m |
Piwnica bez podpiwniczenia |
Kalenica prostopadła do drogi |
Kubatura 800 m³ |
Rodzaj dachu dwuspadowy |
Powierzchnia dachu 133 m² |
Długość działki 22.89 m |
Koszty budowy 450-500 tys., tylko z kosztorysem |
Pow. użytkowa 143.63 m² |
Powierzchnia zabudowy 104.48 m² |
Garaż bez garażu |
Szerokość działki 16.94 m |
Typ domu jednorodzinny całoroczny |
Bryła budynku plan litery L |
Liczba łazieniek 3 |
Kominek kominek opcjonalnie |
Strop żelbetowy |
Piwnica bez podpiwniczenia |
Kubatura 800 m³ |
Powierzchnia dachu 133 m² |
Koszty budowy 450-500 tys., tylko z kosztorysem |
Ilość pokoi 5 |
Kondygnacje piętrowy+poddasze |
Technologia murowany |
Obiekt dom |
Wysokość budynku 8.26 m |
Styl budynku nowoczesny |
Szerokość budynku 7.44 m |
Kąt nachylenia dachu 35 ° |
Długość budynku 14.54 m |
Kalenica prostopadła do drogi |
Rodzaj dachu dwuspadowy |
Długość działki 22.89 m |
Kupując projekt w technologii murowanej powinieneś budować dom murowany. Zupełna zmiana technologii na szkieletową wymaga przeprojektowania całego budynku ( zmieniają się obciążenia, fundamenty, konstrukcja dachu). Wydamy zgodę na takie przeprojektowanie jednak wiążę się to z dużymi kosztami. Istnieją firmy wykonawcze, które podejmują się zmiany technologii budowy bezpłatnie przy skorzystaniu z ich usług wykonawczych. Zdarza się, że pracownia architektoniczna przygotowuje warianty konkretnego projektu przewidując także inne technologie. Prosimy o sprawdzenie czy istnieje poszukiwana wersja projektu, w zakładce - warianty projektu.
Zwężenie/poszerzenie budynku* to nic innego jak zmiana w projekcie. Istnieje możliwość wprowadzenia takich zmian, we własnym zakresie (podczas adaptacji). *zwężenie/poszerzenie budynku nie powinno stanowić problemu w przypadku domów o dachu dwuspadowym jeśli wiąże się to z wydłużeniem/skróceniem kalenicy dachu.
Poznaj praktyczne porady ekspertów, które ułatwią Ci każdy etap budowy i od wyboru wymarzonego domu po jego wykończenie. Zyskaj pewność, że podejmujesz najlepsze decyzje dzięki sprawdzonym wskazówkom od specjalistów z planz.pl
Wycena szacunkowa, w kwotach netto, nie zawiera instalacji.
bezpłatnie (0zł)
przelew zwykły / PayNow
przy odbiorze
2-4 dni robocze (jeśli projekt nie jest koncepcją)
Wybierz wygodny dla Ciebie czas kontaktu z naszym Doradcą Technicznym.