uA31



Zawartość projektu
1. Wiatrołap | 6,72 m² |
2. Garderoba | 4,98 m² |
3. Gabinet | 16,08 m² |
4. Pokój dzienny | 30,63 m² |
5. Jadalnia | 15,24 m² |
6. Hol | 12,07 m² |
7. Kuchnia | 21,30 m² |
8. łazienka | 3,17 m² |
9. Pom. gospodarcze | 3,80 m² |
10. Spiżarnia | 11,87 m² |
11. Garaż | 43,54 m² |
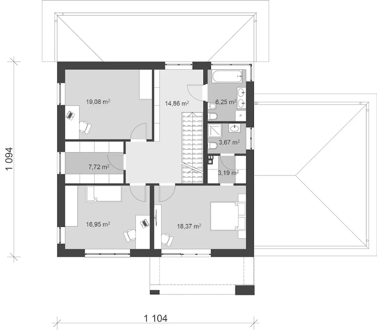
1. Korytarz | 18,99 m² |
2. Pokój 1 | 15,86 m² |
3. Garderoba 1 | 6,98 m² |
4. Pokój 2 | 14,66 m² |
5. Pralnia | 6,45 m² |
6. łazienka 1 | 9,64 m² |
7. łazienka 2 | 7,83 m² |
8. Garderoba 2 | 8,31 m² |
9. Sypialnia | 23,89 m² |
Wypełnij formularz i otrzymaj rysunki w pdf z dokładnymi wymiarami budynku i pomieszczeń (długość, szerokość, wysokość) dla projektu uA31v1
Pow. użytkowa 234.7 m² |
Ilość pokoi 5 |
Powierzchnia zabudowy 204.4 m² |
Kondygnacje piętrowy |
Garaż 2 stanowiska |
Technologia murowany |
Szerokość działki 24.94 m |
Obiekt dom |
Typ domu jednorodzinny całoroczny |
Styl budynku wille i rezydencje |
Kominek kominek w projekcie |
Szerokość budynku 16.54 m |
Taras z tarasem |
Kąt nachylenia dachu 25 ° |
Długość budynku 13.84 m |
Piwnica bez podpiwniczenia |
Strop żelbetowy |
Kubatura 990 m³ |
Rodzaj garażu w bryle |
Kalenica równoległa do drogi |
Powierzchnia dachu 290.3 m² |
Rodzaj dachu wielospadowy |
Długość działki 22.87 m |
Ogrzewanie gaz |
Funkcje dodatkowe z pralnią |
Wysokość budynku 9.36 m |
Przechowywanie w kuchni spiżarnia |
Liczba łazieniek 3 |
Koszty budowy 600-650 tys., tylko z kosztorysem |
Pow. użytkowa 234.7 m² |
Powierzchnia zabudowy 204.4 m² |
Garaż 2 stanowiska |
Szerokość działki 24.94 m |
Typ domu jednorodzinny całoroczny |
Kominek kominek w projekcie |
Taras z tarasem |
Długość budynku 13.84 m |
Strop żelbetowy |
Rodzaj garażu w bryle |
Powierzchnia dachu 290.3 m² |
Długość działki 22.87 m |
Funkcje dodatkowe z pralnią |
Przechowywanie w kuchni spiżarnia |
Koszty budowy 600-650 tys., tylko z kosztorysem |
Ilość pokoi 5 |
Kondygnacje piętrowy |
Technologia murowany |
Obiekt dom |
Styl budynku wille i rezydencje |
Szerokość budynku 16.54 m |
Kąt nachylenia dachu 25 ° |
Piwnica bez podpiwniczenia |
Kubatura 990 m³ |
Kalenica równoległa do drogi |
Rodzaj dachu wielospadowy |
Ogrzewanie gaz |
Wysokość budynku 9.36 m |
Liczba łazieniek 3 |
Kupując projekt w technologii murowanej powinieneś budować dom murowany. Zupełna zmiana technologii na szkieletową wymaga przeprojektowania całego budynku ( zmieniają się obciążenia, fundamenty, konstrukcja dachu). Wydamy zgodę na takie przeprojektowanie jednak wiążę się to z dużymi kosztami. Istnieją firmy wykonawcze, które podejmują się zmiany technologii budowy bezpłatnie przy skorzystaniu z ich usług wykonawczych. Zdarza się, że pracownia architektoniczna przygotowuje warianty konkretnego projektu przewidując także inne technologie. Prosimy o sprawdzenie czy istnieje poszukiwana wersja projektu, w zakładce - warianty projektu.
Zwężenie/poszerzenie budynku* to nic innego jak zmiana w projekcie. Istnieje możliwość wprowadzenia takich zmian, we własnym zakresie (podczas adaptacji). *zwężenie/poszerzenie budynku nie powinno stanowić problemu w przypadku domów o dachu dwuspadowym jeśli wiąże się to z wydłużeniem/skróceniem kalenicy dachu.
Poznaj praktyczne porady ekspertów, które ułatwią Ci każdy etap budowy i od wyboru wymarzonego domu po jego wykończenie. Zyskaj pewność, że podejmujesz najlepsze decyzje dzięki sprawdzonym wskazówkom od specjalistów z planz.pl
Wycena szacunkowa, w kwotach netto, nie zawiera instalacji.
bezpłatnie (0zł)
przelew zwykły / PayNow
przy odbiorze
2-4 dni robocze (jeśli projekt nie jest koncepcją)
"Atrakcyjna propozycja - nowoczesność połączona z elegancją. Widać sporo potencjału dla stworzenia przytulnego domu."
Wybierz wygodny dla Ciebie czas kontaktu z naszym Doradcą Technicznym.