Asteria



Zawartość projektu
1. Wiatrołap | 5,24 m² |
2. Korytarz | 13,93 m² |
3. Kuchnia | 12,85 m² |
4. Jadalnia | 10,30 m² |
5. Pokój dzienny | 37,86 m² |
6. Sypialnia | 16,92 m² |
7. Garderoba | 5,72 m² |
8. łazienka 1 | 9,54 m² |
9. łazienka 2 | 4,14 m² |
10. Pom. gospodarcze | 2,89 m² |
11. Garaż | 29,07 m² |
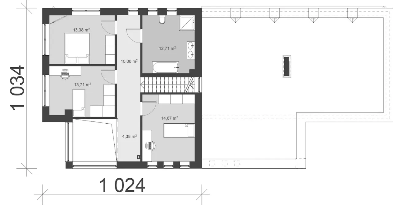
1. Korytarz | 10,00 m² |
2. Antresola | 4,38 m² |
3. Pokój 1 | 13,38 m² |
4. Pokój 2 | 13,71 m² |
5. Pokój 3 | 14,67 m² |
6. łazienka | 12,71 m² |
Wypełnij formularz i otrzymaj rysunki w pdf z dokładnymi wymiarami budynku i pomieszczeń (długość, szerokość, wysokość) dla projektu UA260
Ilość pokoi 5 |
Pow. użytkowa 188.17 m² |
Powierzchnia zabudowy 191.7 m² |
Kondygnacje piętrowy |
Garaż 2 stanowiska |
Technologia murowany |
Szerokość działki 31.59 m |
Obiekt dom |
Typ domu jednorodzinny całoroczny |
Powierzchnia dachu 190 m² |
Długość działki 18.34 m |
Wysokość budynku 8.12 m |
Styl budynku nowoczesny |
Strop żelbetowy |
Liczba łazieniek 3 |
Kalenica bez znaczenia |
Szerokość budynku 22.54 m |
Kominek kominek w projekcie |
Kąt nachylenia dachu 5 ° |
Długość budynku 10.34 m |
Rodzaj dachu płaski |
Piwnica bez podpiwniczenia |
Funkcje dodatkowe z antresolą |
Kubatura 998 m³ |
Koszty budowy 500-550 tys., tylko z kosztorysem |
Ilość pokoi 5 |
Powierzchnia zabudowy 191.7 m² |
Garaż 2 stanowiska |
Szerokość działki 31.59 m |
Typ domu jednorodzinny całoroczny |
Długość działki 18.34 m |
Styl budynku nowoczesny |
Liczba łazieniek 3 |
Szerokość budynku 22.54 m |
Kąt nachylenia dachu 5 ° |
Rodzaj dachu płaski |
Funkcje dodatkowe z antresolą |
Koszty budowy 500-550 tys., tylko z kosztorysem |
Pow. użytkowa 188.17 m² |
Kondygnacje piętrowy |
Technologia murowany |
Obiekt dom |
Powierzchnia dachu 190 m² |
Wysokość budynku 8.12 m |
Strop żelbetowy |
Kalenica bez znaczenia |
Kominek kominek w projekcie |
Długość budynku 10.34 m |
Piwnica bez podpiwniczenia |
Kubatura 998 m³ |
Kupując projekt w technologii murowanej powinieneś budować dom murowany. Zupełna zmiana technologii na szkieletową wymaga przeprojektowania całego budynku ( zmieniają się obciążenia, fundamenty, konstrukcja dachu). Wydamy zgodę na takie przeprojektowanie jednak wiążę się to z dużymi kosztami. Istnieją firmy wykonawcze, które podejmują się zmiany technologii budowy bezpłatnie przy skorzystaniu z ich usług wykonawczych. Zdarza się, że pracownia architektoniczna przygotowuje warianty konkretnego projektu przewidując także inne technologie. Prosimy o sprawdzenie czy istnieje poszukiwana wersja projektu, w zakładce - warianty projektu.
Zwężenie/poszerzenie budynku* to nic innego jak zmiana w projekcie. Istnieje możliwość wprowadzenia takich zmian, we własnym zakresie (podczas adaptacji). *zwężenie/poszerzenie budynku nie powinno stanowić problemu w przypadku domów o dachu dwuspadowym jeśli wiąże się to z wydłużeniem/skróceniem kalenicy dachu.
Poznaj praktyczne porady ekspertów, które ułatwią Ci każdy etap budowy i od wyboru wymarzonego domu po jego wykończenie. Zyskaj pewność, że podejmujesz najlepsze decyzje dzięki sprawdzonym wskazówkom od specjalistów z planz.pl
Wycena szacunkowa, w kwotach netto, nie zawiera instalacji.
bezpłatnie (0zł)
przelew zwykły / PayNow
przy odbiorze
2-4 dni robocze (jeśli projekt nie jest koncepcją)
Wybierz wygodny dla Ciebie czas kontaktu z naszym Doradcą Technicznym.