TK33



Zawartość projektu
1. Wiatrołap | 9,25 m² |
2. Korytarz | 11,56 m² |
3. Wc | 4,15 m² |
4. Spiżarnia | 1,76 m² |
5. Kuchnia | 12,04 m² |
6. Jadalnia | 11,83 m² |
7. Pokój dzienny | 30,11 m² |
8. Gabinet | 8,27 m² |
9. Pom. gospodarcze | 7,39 m² |
10. Garaż | 40,36 m² |
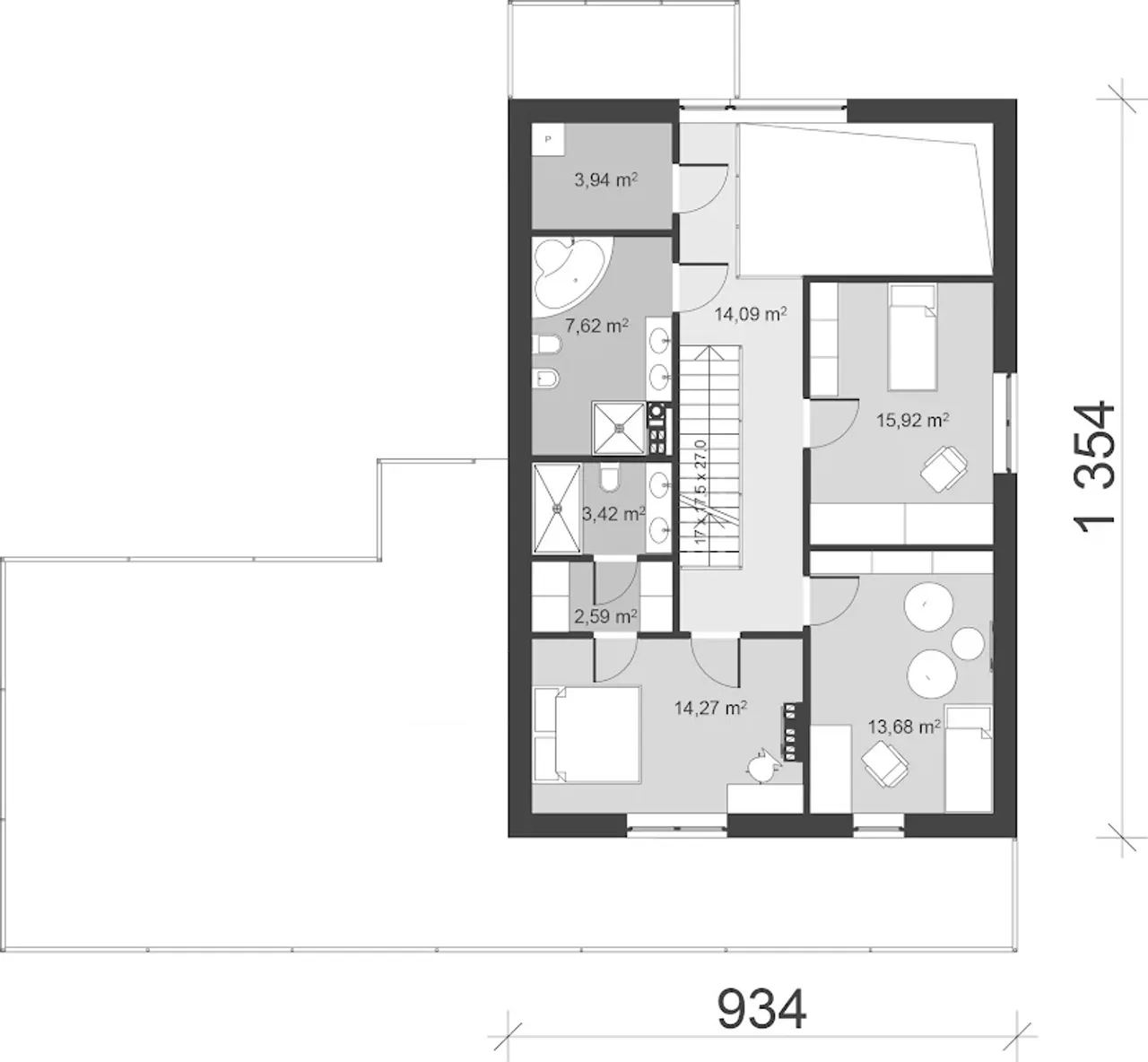
1. Korytarz | 14,00 m² |
2. Pokój 1 | 15,92 m² |
3. Pokój 2 | 13,68 m² |
4. Sypialnia | 14,27 m² |
5. Garderoba | 2,59 m² |
6. łazienka 1 | 3,42 m² |
7. łazienka 2 | 7,99 m² |
8. Pralnia | 3,94 m² |
Wypełnij formularz i otrzymaj rysunki w pdf z dokładnymi wymiarami budynku i pomieszczeń (długość, szerokość, wysokość) dla projektu uA21
Ilość pokoi 5 |
Pow. użytkowa 163.1 m² |
Powierzchnia zabudowy 181.04 m² |
Kondygnacje parterowy+poddasze |
Garaż 2 stanowiska |
Technologia murowany |
Szerokość działki 26.64 m |
Obiekt dom |
Typ domu jednorodzinny całoroczny |
Kubatura 890 m³ |
Rodzaj garażu przyklejony |
Funkcje dodatkowe z pralnią |
Powierzchnia dachu 197 m² |
Rodzaj dachu dwuspadowy |
Długość działki 23.64 m |
Ogrzewanie paliwo stałe |
Liczba łazieniek 3 |
Wysokość budynku 8.08 m |
Przechowywanie w kuchni spiżarnia |
Kominek kominek w projekcie |
Styl budynku nowoczesny |
Kotłownia duża kotłownia |
Szerokość budynku 18.64 m |
Taras z tarasem |
Kąt nachylenia dachu 35 ° |
Strop żelbetowy |
Długość budynku 15.64 m |
Piwnica bez podpiwniczenia |
Kalenica prostopadła do drogi |
Koszty budowy 400-450 tys., tylko z kosztorysem |
Ilość pokoi 5 |
Powierzchnia zabudowy 181.04 m² |
Garaż 2 stanowiska |
Szerokość działki 26.64 m |
Typ domu jednorodzinny całoroczny |
Rodzaj garażu przyklejony |
Powierzchnia dachu 197 m² |
Długość działki 23.64 m |
Liczba łazieniek 3 |
Przechowywanie w kuchni spiżarnia |
Styl budynku nowoczesny |
Szerokość budynku 18.64 m |
Kąt nachylenia dachu 35 ° |
Długość budynku 15.64 m |
Kalenica prostopadła do drogi |
Pow. użytkowa 163.1 m² |
Kondygnacje parterowy+poddasze |
Technologia murowany |
Obiekt dom |
Kubatura 890 m³ |
Funkcje dodatkowe z pralnią |
Rodzaj dachu dwuspadowy |
Ogrzewanie paliwo stałe |
Wysokość budynku 8.08 m |
Kominek kominek w projekcie |
Kotłownia duża kotłownia |
Taras z tarasem |
Strop żelbetowy |
Piwnica bez podpiwniczenia |
Koszty budowy 400-450 tys., tylko z kosztorysem |
Kupując projekt w technologii murowanej powinieneś budować dom murowany. Zupełna zmiana technologii na szkieletową wymaga przeprojektowania całego budynku ( zmieniają się obciążenia, fundamenty, konstrukcja dachu). Wydamy zgodę na takie przeprojektowanie jednak wiążę się to z dużymi kosztami. Istnieją firmy wykonawcze, które podejmują się zmiany technologii budowy bezpłatnie przy skorzystaniu z ich usług wykonawczych. Zdarza się, że pracownia architektoniczna przygotowuje warianty konkretnego projektu przewidując także inne technologie. Prosimy o sprawdzenie czy istnieje poszukiwana wersja projektu, w zakładce - warianty projektu.
Zwężenie/poszerzenie budynku* to nic innego jak zmiana w projekcie. Istnieje możliwość wprowadzenia takich zmian, we własnym zakresie (podczas adaptacji). *zwężenie/poszerzenie budynku nie powinno stanowić problemu w przypadku domów o dachu dwuspadowym jeśli wiąże się to z wydłużeniem/skróceniem kalenicy dachu.
Poznaj praktyczne porady ekspertów, które ułatwią Ci każdy etap budowy i od wyboru wymarzonego domu po jego wykończenie. Zyskaj pewność, że podejmujesz najlepsze decyzje dzięki sprawdzonym wskazówkom od specjalistów z planz.pl
Wycena szacunkowa, w kwotach netto, nie zawiera instalacji.
bezpłatnie (0zł)
przelew zwykły / PayNow
przy odbiorze
2-4 dni robocze (jeśli projekt nie jest koncepcją)
Wybierz wygodny dla Ciebie czas kontaktu z naszym Doradcą Technicznym.