Ambasador 3



Zawartość projektu
1. Wiatrołap | 5,25 m² |
2. Pom. gospodarcze | 4,70 m² |
3. Gabinet | 9,09 m² |
4. łazienka | 7,51 m² |
5. Pokój | 14,43 m² |
6. Pokój dzienny | 30,24 m² |
7. Jadalnia | 16,26 m² |
8. Kuchnia | 11,18 m² |
9. Spiżarnia | 4,32 m² |
10. Korytarz | 7,81 m² |
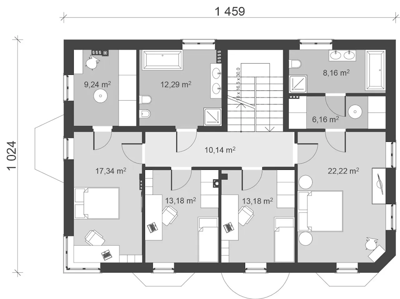
1. łazienka 1 | 8,16 m² |
2. Garderoba 1 | 6,14 m² |
3. Sypialnia | 22,22 m² |
4. Pokój 1 | 13,18 m² |
5. Pokój 2 | 13,18 m² |
6. Pokój 3 | 17,34 m² |
7. Garderoba 2 | 9,24 m² |
8. łazienka 2 | 12,35 m² |
9. Korytarz | 10,14 m² |
Wypełnij formularz i otrzymaj rysunki w pdf z dokładnymi wymiarami budynku i pomieszczeń (długość, szerokość, wysokość) dla projektu UA20
Ilość pokoi 6 |
Pow. użytkowa 218.1 m² |
Powierzchnia zabudowy 146.14 m² |
Kondygnacje piętrowy |
Garaż bez garażu |
Technologia murowany |
Szerokość działki 24.59 m |
Obiekt dom |
Typ domu jednorodzinny całoroczny |
Powierzchnia dachu 202 m² |
Przechowywanie w kuchni spiżarnia |
Długość działki 19.4 m |
Ogrzewanie gaz |
Wysokość budynku 9 m |
Liczba łazieniek 3 |
Styl budynku wille i rezydencje |
Kominek kominek w projekcie |
Strop żelbetowy |
Szerokość budynku 14.59 m |
Taras z tarasem |
Kąt nachylenia dachu 25 ° |
Kalenica równoległa do drogi |
Długość budynku 11.4 m |
Piwnica bez podpiwniczenia |
Kubatura 1000 m³ |
Rodzaj dachu wielospadowy |
Funkcje dodatkowe z wykuszem |
Koszty budowy 500-550 tys., tylko z kosztorysem |
Ilość pokoi 6 |
Powierzchnia zabudowy 146.14 m² |
Garaż bez garażu |
Szerokość działki 24.59 m |
Typ domu jednorodzinny całoroczny |
Przechowywanie w kuchni spiżarnia |
Ogrzewanie gaz |
Liczba łazieniek 3 |
Kominek kominek w projekcie |
Szerokość budynku 14.59 m |
Kąt nachylenia dachu 25 ° |
Długość budynku 11.4 m |
Kubatura 1000 m³ |
Funkcje dodatkowe z wykuszem |
Pow. użytkowa 218.1 m² |
Kondygnacje piętrowy |
Technologia murowany |
Obiekt dom |
Powierzchnia dachu 202 m² |
Długość działki 19.4 m |
Wysokość budynku 9 m |
Styl budynku wille i rezydencje |
Strop żelbetowy |
Taras z tarasem |
Kalenica równoległa do drogi |
Piwnica bez podpiwniczenia |
Rodzaj dachu wielospadowy |
Koszty budowy 500-550 tys., tylko z kosztorysem |
Kupując projekt w technologii murowanej powinieneś budować dom murowany. Zupełna zmiana technologii na szkieletową wymaga przeprojektowania całego budynku ( zmieniają się obciążenia, fundamenty, konstrukcja dachu). Wydamy zgodę na takie przeprojektowanie jednak wiążę się to z dużymi kosztami. Istnieją firmy wykonawcze, które podejmują się zmiany technologii budowy bezpłatnie przy skorzystaniu z ich usług wykonawczych. Zdarza się, że pracownia architektoniczna przygotowuje warianty konkretnego projektu przewidując także inne technologie. Prosimy o sprawdzenie czy istnieje poszukiwana wersja projektu, w zakładce - warianty projektu.
Zwężenie/poszerzenie budynku* to nic innego jak zmiana w projekcie. Istnieje możliwość wprowadzenia takich zmian, we własnym zakresie (podczas adaptacji). *zwężenie/poszerzenie budynku nie powinno stanowić problemu w przypadku domów o dachu dwuspadowym jeśli wiąże się to z wydłużeniem/skróceniem kalenicy dachu.
Poznaj praktyczne porady ekspertów, które ułatwią Ci każdy etap budowy i od wyboru wymarzonego domu po jego wykończenie. Zyskaj pewność, że podejmujesz najlepsze decyzje dzięki sprawdzonym wskazówkom od specjalistów z planz.pl
Wycena szacunkowa, w kwotach netto, nie zawiera instalacji.
bezpłatnie (0zł)
przelew zwykły / PayNow
przy odbiorze
2-4 dni robocze (jeśli projekt nie jest koncepcją)
Wybierz wygodny dla Ciebie czas kontaktu z naszym Doradcą Technicznym.