UA169v1



Zawartość projektu
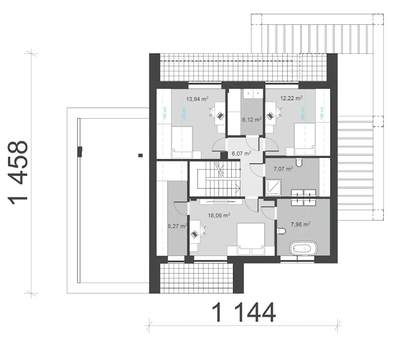
Wypełnij formularz i otrzymaj rysunki w pdf z dokładnymi wymiarami budynku i pomieszczeń (długość, szerokość, wysokość) dla projektu uA169
Pow. użytkowa 184.44 m² |
Powierzchnia zabudowy 193.81 m² |
Kondygnacje parterowy+poddasze |
Garaż 2 stanowiska |
Technologia murowany |
Szerokość działki 25.09 m |
Obiekt dom |
Typ domu jednorodzinny całoroczny |
Kąt nachylenia dachu 35 ° |
Kominek kominek w projekcie |
Kubatura 995 m³ |
Rodzaj dachu dwuspadowy |
Taras z tarasem |
Powierzchnia dachu 187 m² |
Kąt nachylenia dachu drugiego 1 |
Piwnica bez podpiwniczenia |
Ogrzewanie gaz |
Wysokość budynku 9.13 m |
Długość działki 22.19 m |
Styl budynku nowoczesny |
Pow. użytkowa 184.44 m² |
Kondygnacje parterowy+poddasze |
Technologia murowany |
Obiekt dom |
Kąt nachylenia dachu 35 ° |
Kubatura 995 m³ |
Taras z tarasem |
Kąt nachylenia dachu drugiego 1 |
Ogrzewanie gaz |
Długość działki 22.19 m |
Powierzchnia zabudowy 193.81 m² |
Garaż 2 stanowiska |
Szerokość działki 25.09 m |
Typ domu jednorodzinny całoroczny |
Kominek kominek w projekcie |
Rodzaj dachu dwuspadowy |
Powierzchnia dachu 187 m² |
Piwnica bez podpiwniczenia |
Wysokość budynku 9.13 m |
Styl budynku nowoczesny |
Kupując projekt w technologii murowanej powinieneś budować dom murowany. Zupełna zmiana technologii na szkieletową wymaga przeprojektowania całego budynku ( zmieniają się obciążenia, fundamenty, konstrukcja dachu). Wydamy zgodę na takie przeprojektowanie jednak wiążę się to z dużymi kosztami. Istnieją firmy wykonawcze, które podejmują się zmiany technologii budowy bezpłatnie przy skorzystaniu z ich usług wykonawczych. Zdarza się, że pracownia architektoniczna przygotowuje warianty konkretnego projektu przewidując także inne technologie. Prosimy o sprawdzenie czy istnieje poszukiwana wersja projektu, w zakładce - warianty projektu.
Zwężenie/poszerzenie budynku* to nic innego jak zmiana w projekcie. Istnieje możliwość wprowadzenia takich zmian, we własnym zakresie (podczas adaptacji). *zwężenie/poszerzenie budynku nie powinno stanowić problemu w przypadku domów o dachu dwuspadowym jeśli wiąże się to z wydłużeniem/skróceniem kalenicy dachu.
Poznaj praktyczne porady ekspertów, które ułatwią Ci każdy etap budowy i od wyboru wymarzonego domu po jego wykończenie. Zyskaj pewność, że podejmujesz najlepsze decyzje dzięki sprawdzonym wskazówkom od specjalistów z planz.pl
bezpłatnie (0zł)
przelew zwykły / PayNow
przy odbiorze
2-4 dni robocze (jeśli projekt nie jest koncepcją)
Wybierz wygodny dla Ciebie czas kontaktu z naszym Doradcą Technicznym.