Granada



Zawartość projektu
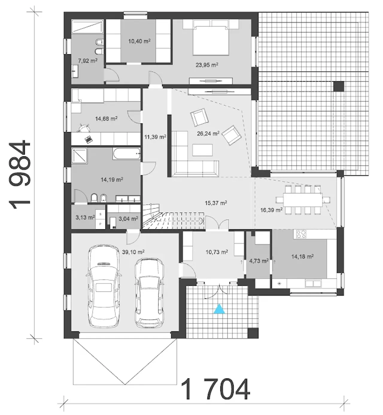
1. Wiatrołap | 10,73 m² |
2. Spiżarnia | 4,73 m² |
3. Kuchnia | 14,18 m² |
4. Jadalnia | 16,39 m² |
5. Korytarz 1 | 15,37 m² |
6. Pokój dzienny | 26,24 m² |
7. Korytarz 2 | 11,39 m² |
8. Sypialnia | 23,95 m² |
9. Garderoba | 10,40 m² |
10. łazienka | 7,92 m² |
11. Pokój | 14,68 m² |
12. łazienka 2 | 14,19 m² |
13. Pralnia | 3,13 m² |
14. Pom. gospodarcze | 3,04 m² |
15. Garaż | 39,10 m² |
Wypełnij formularz i otrzymaj rysunki w pdf z dokładnymi wymiarami budynku i pomieszczeń (długość, szerokość, wysokość) dla projektu UA145
Pow. użytkowa 173.3 m² |
Ilość pokoi 3 |
Powierzchnia zabudowy 260.97 m² |
Kondygnacje parterowy |
Garaż 2 stanowiska |
Technologia murowany |
Szerokość działki 25.04 m |
Obiekt dom |
Typ domu jednorodzinny całoroczny |
Wysokość budynku 7.79 m |
Przechowywanie w kuchni spiżarnia |
Styl budynku nowoczesny |
Liczba łazieniek 2 |
Szerokość budynku 17.04 m |
Kominek kominek opcjonalnie |
Kąt nachylenia dachu 30 ° |
Długość budynku 19.84 m |
Piwnica bez podpiwniczenia |
Kalenica równoległa do drogi |
Kubatura 1344 m³ |
Rodzaj garażu duży garaż |
Powierzchnia dachu 420 m² |
Rodzaj dachu wielospadowy |
Długość działki 27.84 m |
Ogrzewanie gaz |
Funkcje dodatkowe z pralnią |
Koszty budowy 450-500 tys., tylko z kosztorysem |
Pow. użytkowa 173.3 m² |
Powierzchnia zabudowy 260.97 m² |
Garaż 2 stanowiska |
Szerokość działki 25.04 m |
Typ domu jednorodzinny całoroczny |
Przechowywanie w kuchni spiżarnia |
Liczba łazieniek 2 |
Kominek kominek opcjonalnie |
Długość budynku 19.84 m |
Kalenica równoległa do drogi |
Rodzaj garażu duży garaż |
Rodzaj dachu wielospadowy |
Ogrzewanie gaz |
Koszty budowy 450-500 tys., tylko z kosztorysem |
Ilość pokoi 3 |
Kondygnacje parterowy |
Technologia murowany |
Obiekt dom |
Wysokość budynku 7.79 m |
Styl budynku nowoczesny |
Szerokość budynku 17.04 m |
Kąt nachylenia dachu 30 ° |
Piwnica bez podpiwniczenia |
Kubatura 1344 m³ |
Powierzchnia dachu 420 m² |
Długość działki 27.84 m |
Funkcje dodatkowe z pralnią |
Kupując projekt w technologii murowanej powinieneś budować dom murowany. Zupełna zmiana technologii na szkieletową wymaga przeprojektowania całego budynku ( zmieniają się obciążenia, fundamenty, konstrukcja dachu). Wydamy zgodę na takie przeprojektowanie jednak wiążę się to z dużymi kosztami. Istnieją firmy wykonawcze, które podejmują się zmiany technologii budowy bezpłatnie przy skorzystaniu z ich usług wykonawczych. Zdarza się, że pracownia architektoniczna przygotowuje warianty konkretnego projektu przewidując także inne technologie. Prosimy o sprawdzenie czy istnieje poszukiwana wersja projektu, w zakładce - warianty projektu.
Zwężenie/poszerzenie budynku* to nic innego jak zmiana w projekcie. Istnieje możliwość wprowadzenia takich zmian, we własnym zakresie (podczas adaptacji). *zwężenie/poszerzenie budynku nie powinno stanowić problemu w przypadku domów o dachu dwuspadowym jeśli wiąże się to z wydłużeniem/skróceniem kalenicy dachu.
Poznaj praktyczne porady ekspertów, które ułatwią Ci każdy etap budowy i od wyboru wymarzonego domu po jego wykończenie. Zyskaj pewność, że podejmujesz najlepsze decyzje dzięki sprawdzonym wskazówkom od specjalistów z planz.pl
Wycena szacunkowa, w kwotach netto, nie zawiera instalacji.
bezpłatnie (0zł)
przelew zwykły / PayNow
przy odbiorze
2-4 dni robocze (jeśli projekt nie jest koncepcją)
Wybierz wygodny dla Ciebie czas kontaktu z naszym Doradcą Technicznym.