Syntia II wersja B



Zawartość projektu
1. Wiatrołap | 6,79 m² |
2. Spiżarnia | 3,10 m² |
3. Kuchnia | 10,14 m² |
4. Pokój dzienny | 39,23 m² |
5. Jadalnia | 18,58 m² |
6. Korytarz | 6,70 m² |
7. Gabinet | 13,64 m² |
8. Wc | 4,92 m² |
9. Pom. gospodarcze | 14,91 m² |
10. Garaż | 36,72 m² |
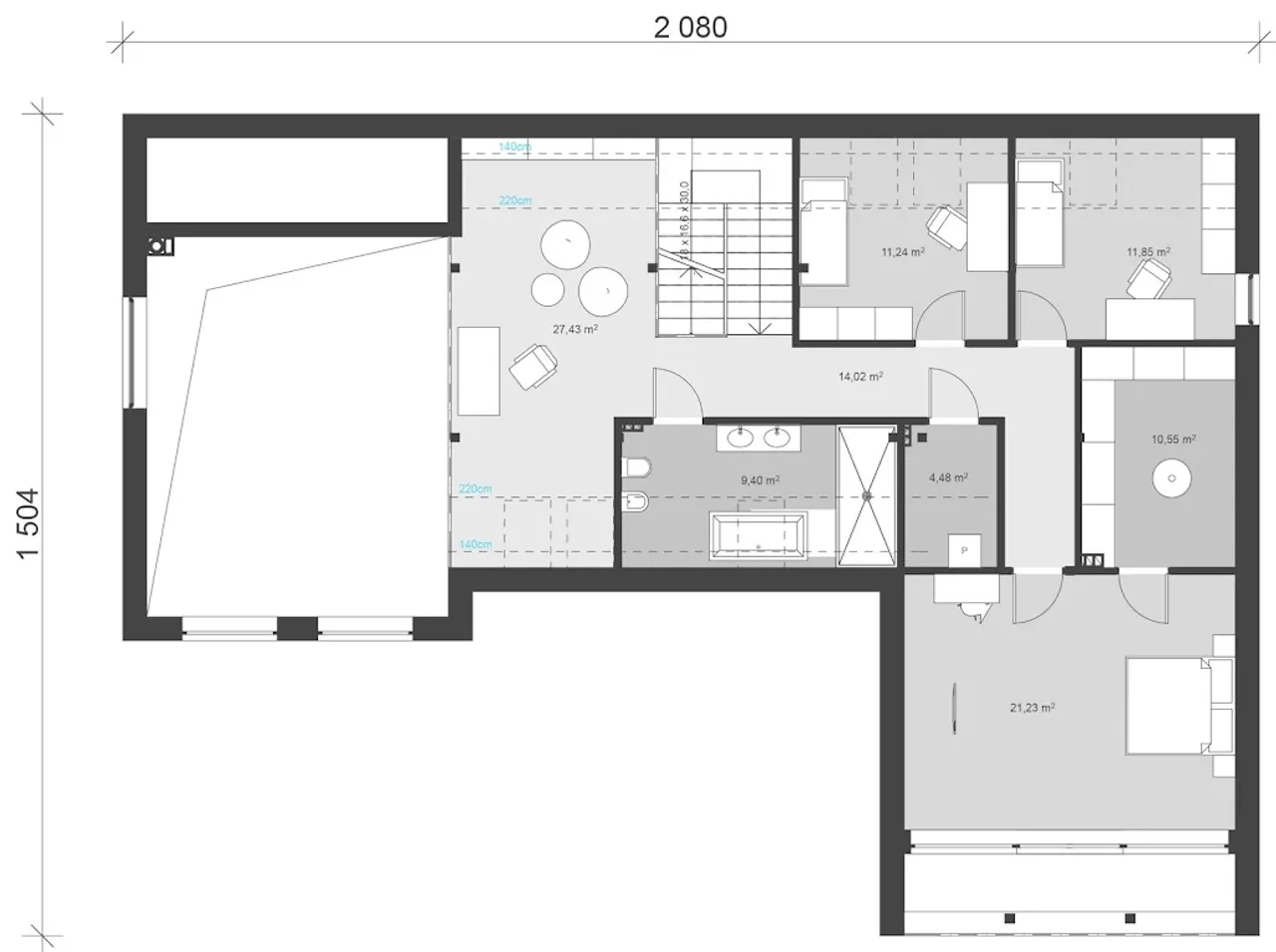
1. Antresola | 27,43 m² |
2. Korytarz | 14,02 m² |
3. Pokój 1 | 11,24 m² |
4. Pokój 2 | 11,85 m² |
5. Garderoba | 10,55 m² |
6. Sypialnia | 21,23 m² |
7. Pralnia | 4,48 m² |
8. łazienka | 9,40 m² |
Wypełnij formularz i otrzymaj rysunki w pdf z dokładnymi wymiarami budynku i pomieszczeń (długość, szerokość, wysokość) dla projektu UA13
Pow. użytkowa 185.87 m² |
Ilość pokoi 6 |
Powierzchnia zabudowy 201 m² |
Kondygnacje parterowy+poddasze |
Garaż 2 stanowiska |
Technologia murowany |
Szerokość działki 28.8 m |
Obiekt dom |
Typ domu jednorodzinny całoroczny |
Taras z tarasem |
Kąt nachylenia dachu 40 ° |
Długość budynku 15.04 m |
Piwnica bez podpiwniczenia |
Strop żelbetowy |
Kubatura 1150 m³ |
Rodzaj garażu z przodu |
Kalenica równoległa do drogi |
Powierzchnia dachu 380 m² |
Rodzaj dachu wielospadowy |
Długość działki 24.39 m |
Ogrzewanie pompa ciepła |
Liczba łazieniek 2 |
Wysokość budynku 8.23 m |
Przechowywanie w kuchni spiżarnia |
Kominek kominek w projekcie |
Funkcje dodatkowe z antresolą |
Styl budynku nowoczesny |
Kotłownia duża kotłownia |
Szerokość budynku 20.8 m |
Koszty budowy 550-600 tys., tylko z kosztorysem |
Pow. użytkowa 185.87 m² |
Powierzchnia zabudowy 201 m² |
Garaż 2 stanowiska |
Szerokość działki 28.8 m |
Typ domu jednorodzinny całoroczny |
Kąt nachylenia dachu 40 ° |
Piwnica bez podpiwniczenia |
Kubatura 1150 m³ |
Kalenica równoległa do drogi |
Rodzaj dachu wielospadowy |
Ogrzewanie pompa ciepła |
Wysokość budynku 8.23 m |
Kominek kominek w projekcie |
Styl budynku nowoczesny |
Szerokość budynku 20.8 m |
Ilość pokoi 6 |
Kondygnacje parterowy+poddasze |
Technologia murowany |
Obiekt dom |
Taras z tarasem |
Długość budynku 15.04 m |
Strop żelbetowy |
Rodzaj garażu z przodu |
Powierzchnia dachu 380 m² |
Długość działki 24.39 m |
Liczba łazieniek 2 |
Przechowywanie w kuchni spiżarnia |
Funkcje dodatkowe z antresolą |
Kotłownia duża kotłownia |
Koszty budowy 550-600 tys., tylko z kosztorysem |
Kupując projekt w technologii murowanej powinieneś budować dom murowany. Zupełna zmiana technologii na szkieletową wymaga przeprojektowania całego budynku ( zmieniają się obciążenia, fundamenty, konstrukcja dachu). Wydamy zgodę na takie przeprojektowanie jednak wiążę się to z dużymi kosztami. Istnieją firmy wykonawcze, które podejmują się zmiany technologii budowy bezpłatnie przy skorzystaniu z ich usług wykonawczych. Zdarza się, że pracownia architektoniczna przygotowuje warianty konkretnego projektu przewidując także inne technologie. Prosimy o sprawdzenie czy istnieje poszukiwana wersja projektu, w zakładce - warianty projektu.
Zwężenie/poszerzenie budynku* to nic innego jak zmiana w projekcie. Istnieje możliwość wprowadzenia takich zmian, we własnym zakresie (podczas adaptacji). *zwężenie/poszerzenie budynku nie powinno stanowić problemu w przypadku domów o dachu dwuspadowym jeśli wiąże się to z wydłużeniem/skróceniem kalenicy dachu.
Poznaj praktyczne porady ekspertów, które ułatwią Ci każdy etap budowy i od wyboru wymarzonego domu po jego wykończenie. Zyskaj pewność, że podejmujesz najlepsze decyzje dzięki sprawdzonym wskazówkom od specjalistów z planz.pl
Wycena szacunkowa, w kwotach netto, nie zawiera instalacji.
bezpłatnie (0zł)
przelew zwykły / PayNow
przy odbiorze
2-4 dni robocze (jeśli projekt nie jest koncepcją)
Wybierz wygodny dla Ciebie czas kontaktu z naszym Doradcą Technicznym.