TK31



Zawartość projektu
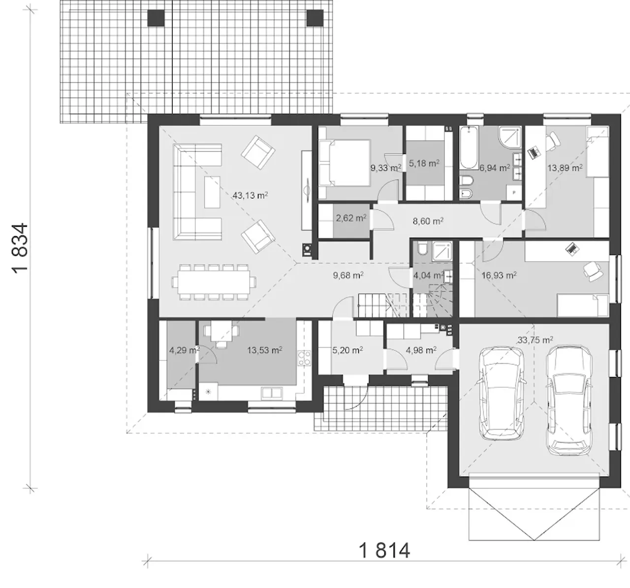
1. Wiatrołap | 5,20 m² |
2. Kuchnia | 13,53 m² |
3. Spiżarnia | 4,29 m² |
4. Pokój dzienny + jadalnia | 43,13 m² |
5. Sypialnia | 9,33 m² |
6. Garderoba | 5,18 m² |
7. łazienka 2 | 6,94 m² |
8. Pokój 2 | 13,89 m² |
9. Pokój 1 | 16,93 m² |
10. Korytarz 2 | 8,60 m² |
11. Garderoba | 2,62 m² |
12. Korytarz 1 | 9,68 m² |
13. łazienka 1 | 4,04 m² |
14. Pom. gospodarcze | 4,98 m² |
15. Garaż | 33,75 m² |
1. Strych | 16,22 m² |
2. Strych | 6,47 m² |
3. Strych | 14,58 m² |
4. Strych | 14,58 m² |
5. Strych | 8,15 m² |
6. Strych | 35,09 m² |
Wypełnij formularz i otrzymaj rysunki w pdf z dokładnymi wymiarami budynku i pomieszczeń (długość, szerokość, wysokość) dla projektu UA129
Ilość pokoi 4 |
Pow. użytkowa 143.4 m² |
Powierzchnia zabudowy 222.05 m² |
Kondygnacje parterowy |
Garaż 2 stanowiska |
Technologia murowany |
Szerokość działki 26.99 m |
Obiekt dom |
Typ domu jednorodzinny całoroczny |
Funkcje dodatkowe ze strychem |
Kubatura 990 m³ |
Rodzaj garażu z przodu |
Ogrzewanie gaz |
Powierzchnia dachu 315 m² |
Rodzaj dachu wielospadowy |
Długość działki 24.19 m |
Wysokość budynku 7.48 m |
Przechowywanie w kuchni spiżarnia |
Bryła budynku plan litery L |
Liczba łazieniek 2 |
Styl budynku nowoczesny |
Kominek kominek w projekcie |
Kąt nachylenia dachu 30 ° |
Szerokość budynku 18.14 m |
Taras z tarasem |
Kalenica równoległa do drogi |
Długość budynku 14.34 m |
Piwnica bez podpiwniczenia |
Koszty budowy 400-450 tys., tylko z kosztorysem |
Ilość pokoi 4 |
Powierzchnia zabudowy 222.05 m² |
Garaż 2 stanowiska |
Szerokość działki 26.99 m |
Typ domu jednorodzinny całoroczny |
Kubatura 990 m³ |
Ogrzewanie gaz |
Rodzaj dachu wielospadowy |
Wysokość budynku 7.48 m |
Bryła budynku plan litery L |
Styl budynku nowoczesny |
Kąt nachylenia dachu 30 ° |
Taras z tarasem |
Długość budynku 14.34 m |
Koszty budowy 400-450 tys., tylko z kosztorysem |
Pow. użytkowa 143.4 m² |
Kondygnacje parterowy |
Technologia murowany |
Obiekt dom |
Funkcje dodatkowe ze strychem |
Rodzaj garażu z przodu |
Powierzchnia dachu 315 m² |
Długość działki 24.19 m |
Przechowywanie w kuchni spiżarnia |
Liczba łazieniek 2 |
Kominek kominek w projekcie |
Szerokość budynku 18.14 m |
Kalenica równoległa do drogi |
Piwnica bez podpiwniczenia |
Kupując projekt w technologii murowanej powinieneś budować dom murowany. Zupełna zmiana technologii na szkieletową wymaga przeprojektowania całego budynku ( zmieniają się obciążenia, fundamenty, konstrukcja dachu). Wydamy zgodę na takie przeprojektowanie jednak wiążę się to z dużymi kosztami. Istnieją firmy wykonawcze, które podejmują się zmiany technologii budowy bezpłatnie przy skorzystaniu z ich usług wykonawczych. Zdarza się, że pracownia architektoniczna przygotowuje warianty konkretnego projektu przewidując także inne technologie. Prosimy o sprawdzenie czy istnieje poszukiwana wersja projektu, w zakładce - warianty projektu.
Zwężenie/poszerzenie budynku* to nic innego jak zmiana w projekcie. Istnieje możliwość wprowadzenia takich zmian, we własnym zakresie (podczas adaptacji). *zwężenie/poszerzenie budynku nie powinno stanowić problemu w przypadku domów o dachu dwuspadowym jeśli wiąże się to z wydłużeniem/skróceniem kalenicy dachu.
Poznaj praktyczne porady ekspertów, które ułatwią Ci każdy etap budowy i od wyboru wymarzonego domu po jego wykończenie. Zyskaj pewność, że podejmujesz najlepsze decyzje dzięki sprawdzonym wskazówkom od specjalistów z planz.pl
Wycena szacunkowa, w kwotach netto, nie zawiera instalacji.
bezpłatnie (0zł)
przelew zwykły / PayNow
przy odbiorze
2-4 dni robocze (jeśli projekt nie jest koncepcją)
Wybierz wygodny dla Ciebie czas kontaktu z naszym Doradcą Technicznym.