SALOMON



Zawartość projektu
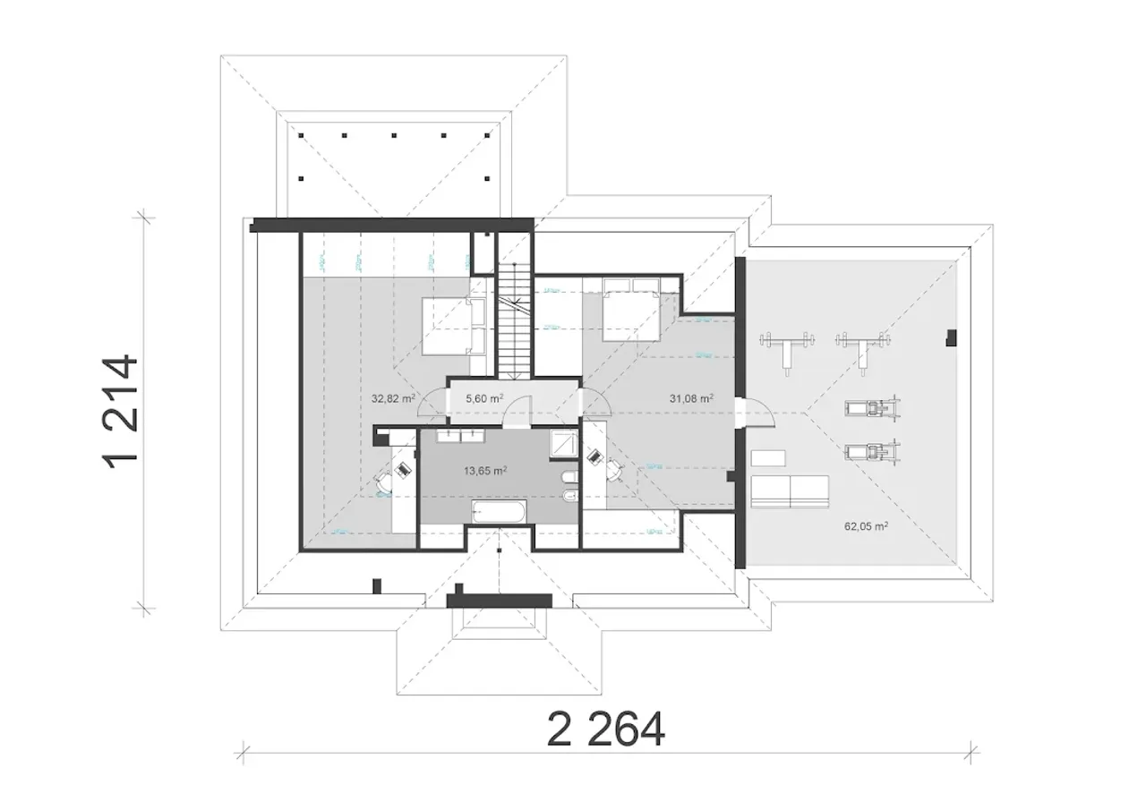
1. Wiatrołap | 6,30 m² |
2. Wc | 3,66 m² |
3. Spiżarnia | 3,66 m² |
4. Kuchnia | 17,86 m² |
5. Pokój dzienny + jadalnia | 49,99 m² |
6. Sypialnia | 26,69 m² |
7. Korytarz 1 | 9,01 m² |
8. Korytarz 2 | 9,06 m² |
9. Pokój | 15,18 m² |
10. łazienka | 9,87 m² |
11. Pom. gospodarcze | 4,56 m² |
12. Pom. gospodarcze | 17,45 m² |
13. Garaż | 43,03 m² |
Wypełnij formularz i otrzymaj rysunki w pdf z dokładnymi wymiarami budynku i pomieszczeń (długość, szerokość, wysokość) dla projektu uA121
Ilość pokoi 5 |
Pow. użytkowa 234.39 m² |
Powierzchnia zabudowy 262.46 m² |
Kondygnacje parterowy+poddasze |
Garaż 2 stanowiska |
Technologia murowany |
Szerokość działki 30.64 m |
Obiekt dom |
Typ domu jednorodzinny całoroczny |
Funkcje dodatkowe ze strychem |
Powierzchnia dachu 443 m² |
Rodzaj garażu przyklejony |
Długość działki 23.09 m |
Ogrzewanie gaz |
Liczba łazieniek 2 |
Wysokość budynku 8 m |
Rodzaj dachu wielospadowy |
Kominek kominek opcjonalnie |
Przechowywanie w kuchni spiżarnia |
Bryła budynku prosta bryła |
Kotłownia duża kotłownia |
Szerokość budynku 22.64 m |
Styl budynku wille i rezydencje |
Taras z tarasem |
Kąt nachylenia dachu 35 ° |
Strop żelbetowy |
Długość budynku 12.14 m |
Piwnica bez podpiwniczenia |
Kalenica równoległa do drogi |
Kubatura 990 m³ |
Ilość pokoi 5 |
Powierzchnia zabudowy 262.46 m² |
Garaż 2 stanowiska |
Szerokość działki 30.64 m |
Typ domu jednorodzinny całoroczny |
Powierzchnia dachu 443 m² |
Długość działki 23.09 m |
Liczba łazieniek 2 |
Rodzaj dachu wielospadowy |
Przechowywanie w kuchni spiżarnia |
Kotłownia duża kotłownia |
Styl budynku wille i rezydencje |
Kąt nachylenia dachu 35 ° |
Długość budynku 12.14 m |
Kalenica równoległa do drogi |
Pow. użytkowa 234.39 m² |
Kondygnacje parterowy+poddasze |
Technologia murowany |
Obiekt dom |
Funkcje dodatkowe ze strychem |
Rodzaj garażu przyklejony |
Ogrzewanie gaz |
Wysokość budynku 8 m |
Kominek kominek opcjonalnie |
Bryła budynku prosta bryła |
Szerokość budynku 22.64 m |
Taras z tarasem |
Strop żelbetowy |
Piwnica bez podpiwniczenia |
Kubatura 990 m³ |
Kupując projekt w technologii murowanej powinieneś budować dom murowany. Zupełna zmiana technologii na szkieletową wymaga przeprojektowania całego budynku ( zmieniają się obciążenia, fundamenty, konstrukcja dachu). Wydamy zgodę na takie przeprojektowanie jednak wiążę się to z dużymi kosztami. Istnieją firmy wykonawcze, które podejmują się zmiany technologii budowy bezpłatnie przy skorzystaniu z ich usług wykonawczych. Zdarza się, że pracownia architektoniczna przygotowuje warianty konkretnego projektu przewidując także inne technologie. Prosimy o sprawdzenie czy istnieje poszukiwana wersja projektu, w zakładce - warianty projektu.
Zwężenie/poszerzenie budynku* to nic innego jak zmiana w projekcie. Istnieje możliwość wprowadzenia takich zmian, we własnym zakresie (podczas adaptacji). *zwężenie/poszerzenie budynku nie powinno stanowić problemu w przypadku domów o dachu dwuspadowym jeśli wiąże się to z wydłużeniem/skróceniem kalenicy dachu.
Poznaj praktyczne porady ekspertów, które ułatwią Ci każdy etap budowy i od wyboru wymarzonego domu po jego wykończenie. Zyskaj pewność, że podejmujesz najlepsze decyzje dzięki sprawdzonym wskazówkom od specjalistów z planz.pl
Wycena szacunkowa, w kwotach netto, nie zawiera instalacji.
bezpłatnie (0zł)
przelew zwykły / PayNow
przy odbiorze
2-4 dni robocze (jeśli projekt nie jest koncepcją)
Wybierz wygodny dla Ciebie czas kontaktu z naszym Doradcą Technicznym.