Orlando



Zawartość projektu
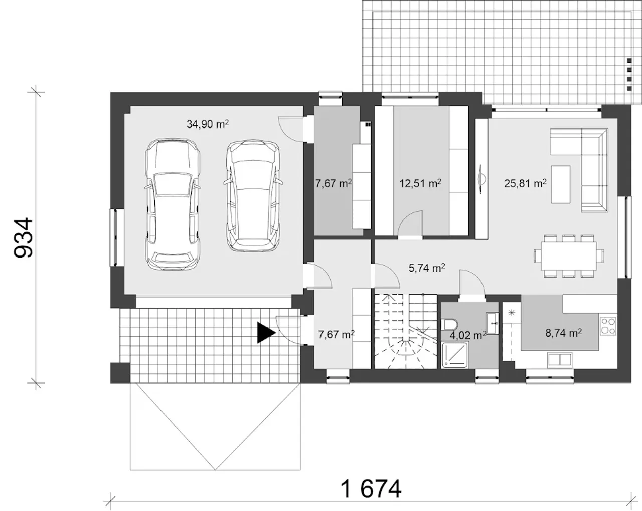
1. Wiatrołap | 7,67 m² |
2. Korytarz | 5,74 m² |
3. Gabinet | 12,51 m² |
4. Pokój dzienny + jadalnia | 25,81 m² |
5. Kuchnia | 8,74 m² |
6. łazienka | 4,02 m² |
7. Pom. gospdoarcze | 7,67 m² |
8. Garaż | 34,90 m² |
1. Korytarz | 11,34 m² |
2. łazienka 1 | 7,93 m² |
3. Garderoba | 3,35 m² |
4. łazienka 2 | 4,44 m² |
5. Sypialnia | 19,31 m² |
6. Pokój 1 | 13,18 m² |
7. Garderoba | 4,58 m² |
8. Pokój 2 | 17,94 m² |
9. Pokój 3 | 17,19 m² |
Wypełnij formularz i otrzymaj rysunki w pdf z dokładnymi wymiarami budynku i pomieszczeń (długość, szerokość, wysokość) dla projektu uA101
Pow. użytkowa 184.2 m² |
Ilość pokoi 5 |
Powierzchnia zabudowy 269.2 m² |
Kondygnacje parterowy+poddasze |
Garaż 2 stanowiska |
Technologia murowany |
Szerokość działki 24.74 m |
Obiekt dom |
Typ domu jednorodzinny całoroczny |
Styl budynku nowoczesny |
Kąt nachylenia dachu 40 ° |
Liczba łazieniek 3 |
Szerokość budynku 16.74 m |
Taras z tarasem |
Kalenica równoległa do drogi |
Długość budynku 9.34 m |
Rodzaj garażu w bryle |
Piwnica bez podpiwniczenia |
Ogrzewanie gaz |
Powierzchnia dachu 216 m² |
Rodzaj dachu dwuspadowy |
Wysokość budynku 8.48 m |
Długość działki 17.79 m |
Bryła budynku prosta bryła |
Koszty budowy 400-450 tys., tylko z kosztorysem |
Pow. użytkowa 184.2 m² |
Powierzchnia zabudowy 269.2 m² |
Garaż 2 stanowiska |
Szerokość działki 24.74 m |
Typ domu jednorodzinny całoroczny |
Kąt nachylenia dachu 40 ° |
Szerokość budynku 16.74 m |
Kalenica równoległa do drogi |
Rodzaj garażu w bryle |
Ogrzewanie gaz |
Rodzaj dachu dwuspadowy |
Długość działki 17.79 m |
Koszty budowy 400-450 tys., tylko z kosztorysem |
Ilość pokoi 5 |
Kondygnacje parterowy+poddasze |
Technologia murowany |
Obiekt dom |
Styl budynku nowoczesny |
Liczba łazieniek 3 |
Taras z tarasem |
Długość budynku 9.34 m |
Piwnica bez podpiwniczenia |
Powierzchnia dachu 216 m² |
Wysokość budynku 8.48 m |
Bryła budynku prosta bryła |
Marzysz o wygodnym, energooszczędnym domu na całą przyszłość? Projekt domu parterowego UA101 to idealna propozycja dla rodzin i osób ceniących komfort, bezpieczeństwo i nowoczesny styl życia. Zanurz się w przestrzeni, która zachwyca funkcjonalnością i harmonią architektury, gwarantując swobodę użytkowania bez ograniczeń.
Zapomnij o schodach, ciasnych przejściach i kompromisach. Ten dom łączy urok nowoczesnej bryły z przemyślaną aranżacją wnętrz, pozwalając poczuć prawdziwą wygodę na co dzień. Odkryj projekt, który dopasuje się do zmieniających się potrzeb Twojej rodziny - na lata.
Wyobraź sobie dom, który wita Cię przestronnym wiatrołapem, otwartym, słonecznym salonem z kominkiem, kuchnią ze spiżarnią, oraz trzema wygodnymi, dobrze doświetlonymi sypialniami. Projekt UA101 stworzony jest z myślą o rodzinach, które pragną prostoty połączonej z nowoczesnym designem. Codzienność w tym domu to harmonia, światło i bliskość natury - dzięki bezpośredniemu wyjściu na taras i spójnej komunikacji z ogrodem.
Każdy detal dopracowany jest z myślą o praktyczności: zaciszna część prywatna z oddzielną łazienką oraz funkcjonalna kotłownia czynią go wygodnym nawet dla kilkuosobowej rodziny. Zastosowanie energooszczędnych materiałów oraz możliwość instalacji nowoczesnych systemów grzewczych sprawiają, że dom UA101 spełnia wymogi domu przyszłości - ekologicznego i ekonomicznego.
Nie zwlekaj - zamów projekt domu parterowego UA101 i zrealizuj marzenie o nowoczesnym, bezpiecznym i wygodnym domu dla całej rodziny. Otwórz nowy rozdział w swoim życiu już dziś!
Kupując projekt w technologii murowanej powinieneś budować dom murowany. Zupełna zmiana technologii na szkieletową wymaga przeprojektowania całego budynku ( zmieniają się obciążenia, fundamenty, konstrukcja dachu). Wydamy zgodę na takie przeprojektowanie jednak wiążę się to z dużymi kosztami. Istnieją firmy wykonawcze, które podejmują się zmiany technologii budowy bezpłatnie przy skorzystaniu z ich usług wykonawczych. Zdarza się, że pracownia architektoniczna przygotowuje warianty konkretnego projektu przewidując także inne technologie. Prosimy o sprawdzenie czy istnieje poszukiwana wersja projektu, w zakładce - warianty projektu.
Zwężenie/poszerzenie budynku* to nic innego jak zmiana w projekcie. Istnieje możliwość wprowadzenia takich zmian, we własnym zakresie (podczas adaptacji). *zwężenie/poszerzenie budynku nie powinno stanowić problemu w przypadku domów o dachu dwuspadowym jeśli wiąże się to z wydłużeniem/skróceniem kalenicy dachu.
Poznaj praktyczne porady ekspertów, które ułatwią Ci każdy etap budowy i od wyboru wymarzonego domu po jego wykończenie. Zyskaj pewność, że podejmujesz najlepsze decyzje dzięki sprawdzonym wskazówkom od specjalistów z planz.pl
Wycena szacunkowa, w kwotach netto, nie zawiera instalacji.
bezpłatnie (0zł)
przelew zwykły / PayNow
przy odbiorze
2-4 dni robocze (jeśli projekt nie jest koncepcją)
Wybierz wygodny dla Ciebie czas kontaktu z naszym Doradcą Technicznym.