TK109



Wypełnij formularz i otrzymaj rysunki w pdf z dokładnymi wymiarami budynku i pomieszczeń (długość, szerokość, wysokość) dla projektu TK19
Pow. użytkowa 81.06 m² |
Ilość pokoi 4 |
Powierzchnia zabudowy 130.53 m² |
Kondygnacje parterowy |
Garaż 1 stanowisko |
Technologia murowany |
Szerokość działki 23.15 m |
Obiekt dom |
Typ domu jednorodzinny całoroczny |
Wysokość budynku 6.07 m |
Długość działki 16.35 m |
Bryła budynku prosta bryła |
Styl budynku tradycyjny |
Liczba łazieniek 1 |
Kąt nachylenia dachu 30 ° |
Kalenica równoległa do drogi |
Szerokość budynku 16.15 m |
Kominek kominek w projekcie |
Długość budynku 8.35 m |
Rodzaj garażu przyklejony |
Piwnica bez podpiwniczenia |
Kubatura 462 m³ |
Rodzaj dachu dwuspadowy |
Koszty budowy tylko z kosztorysem, 200-250 tys. |
Pow. użytkowa 81.06 m² |
Powierzchnia zabudowy 130.53 m² |
Garaż 1 stanowisko |
Szerokość działki 23.15 m |
Typ domu jednorodzinny całoroczny |
Długość działki 16.35 m |
Styl budynku tradycyjny |
Kąt nachylenia dachu 30 ° |
Szerokość budynku 16.15 m |
Długość budynku 8.35 m |
Piwnica bez podpiwniczenia |
Rodzaj dachu dwuspadowy |
Ilość pokoi 4 |
Kondygnacje parterowy |
Technologia murowany |
Obiekt dom |
Wysokość budynku 6.07 m |
Bryła budynku prosta bryła |
Liczba łazieniek 1 |
Kalenica równoległa do drogi |
Kominek kominek w projekcie |
Rodzaj garażu przyklejony |
Kubatura 462 m³ |
Koszty budowy tylko z kosztorysem, 200-250 tys. |
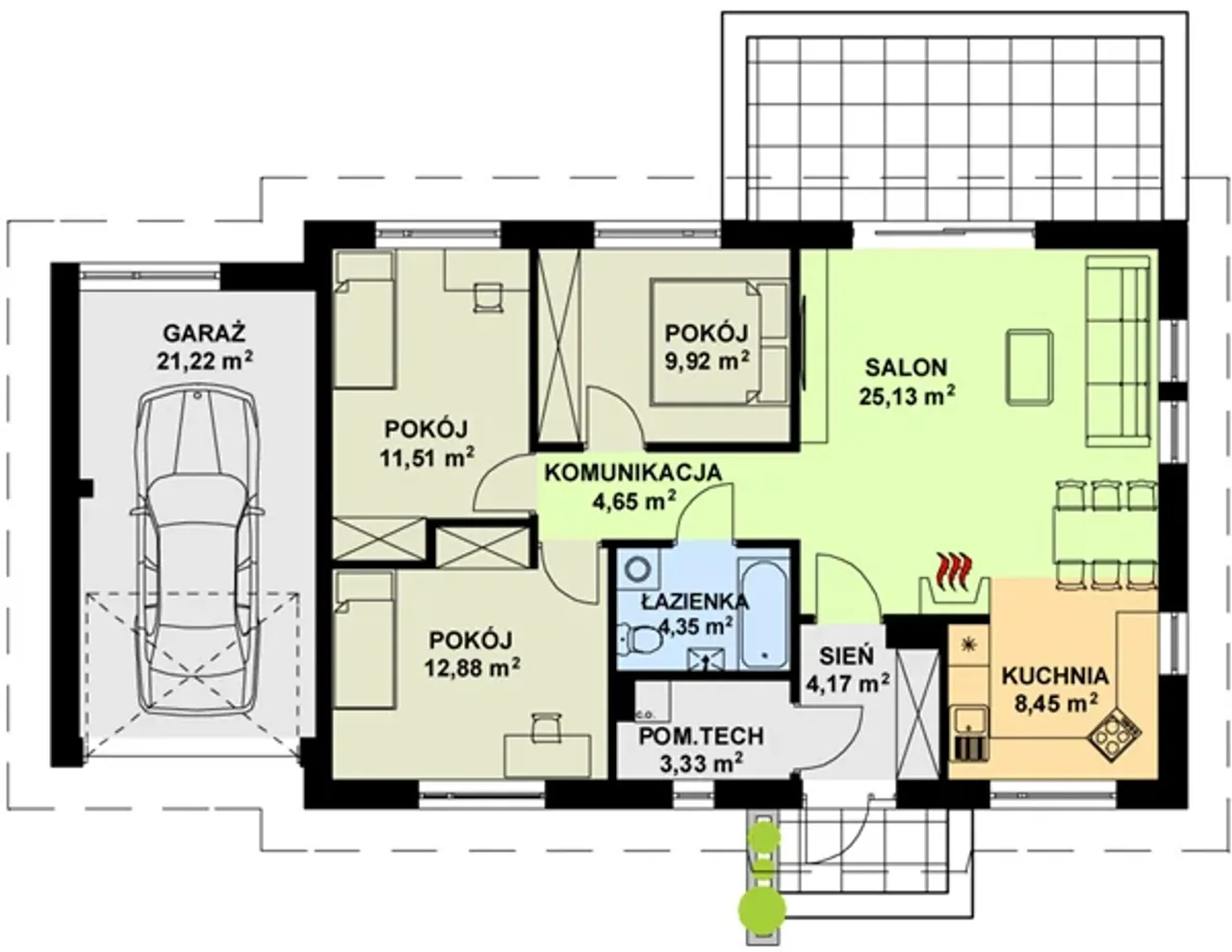
Projekt domu TK19 przedstawia dom parterowy z wbudowanym garażem jednostanowiskowym. Układ domu dzieli się na dwie części: dzienną i nocną. Część dzienną tworzą wiatrołap, przestronny salon z jadalnią, kuchnia oraz kotłownia. W części nocnej znajduja się trzy wygodne sypialnie oraz ogólnodostepna łazienka. Projekt domu TK19 jest wygodny i funkcjonalny.
Kupując projekt w technologii murowanej powinieneś budować dom murowany. Zupełna zmiana technologii na szkieletową wymaga przeprojektowania całego budynku ( zmieniają się obciążenia, fundamenty, konstrukcja dachu). Wydamy zgodę na takie przeprojektowanie jednak wiążę się to z dużymi kosztami. Istnieją firmy wykonawcze, które podejmują się zmiany technologii budowy bezpłatnie przy skorzystaniu z ich usług wykonawczych. Zdarza się, że pracownia architektoniczna przygotowuje warianty konkretnego projektu przewidując także inne technologie. Prosimy o sprawdzenie czy istnieje poszukiwana wersja projektu, w zakładce - warianty projektu.
Zwężenie/poszerzenie budynku* to nic innego jak zmiana w projekcie. Istnieje możliwość wprowadzenia takich zmian, we własnym zakresie (podczas adaptacji). *zwężenie/poszerzenie budynku nie powinno stanowić problemu w przypadku domów o dachu dwuspadowym jeśli wiąże się to z wydłużeniem/skróceniem kalenicy dachu.
Poznaj praktyczne porady ekspertów, które ułatwią Ci każdy etap budowy i od wyboru wymarzonego domu po jego wykończenie. Zyskaj pewność, że podejmujesz najlepsze decyzje dzięki sprawdzonym wskazówkom od specjalistów z planz.pl
Wycena szacunkowa, w kwotach netto, nie zawiera instalacji.
bezpłatnie (0zł)
przelew zwykły / PayNow
przy odbiorze
3-5 dni roboczych (jeśli projekt nie wymaga aktualizacji)
Wybierz wygodny dla Ciebie czas kontaktu z naszym Doradcą Technicznym.