TK34



Wypełnij formularz i otrzymaj rysunki w pdf z dokładnymi wymiarami budynku i pomieszczeń (długość, szerokość, wysokość) dla projektu TK 34g2
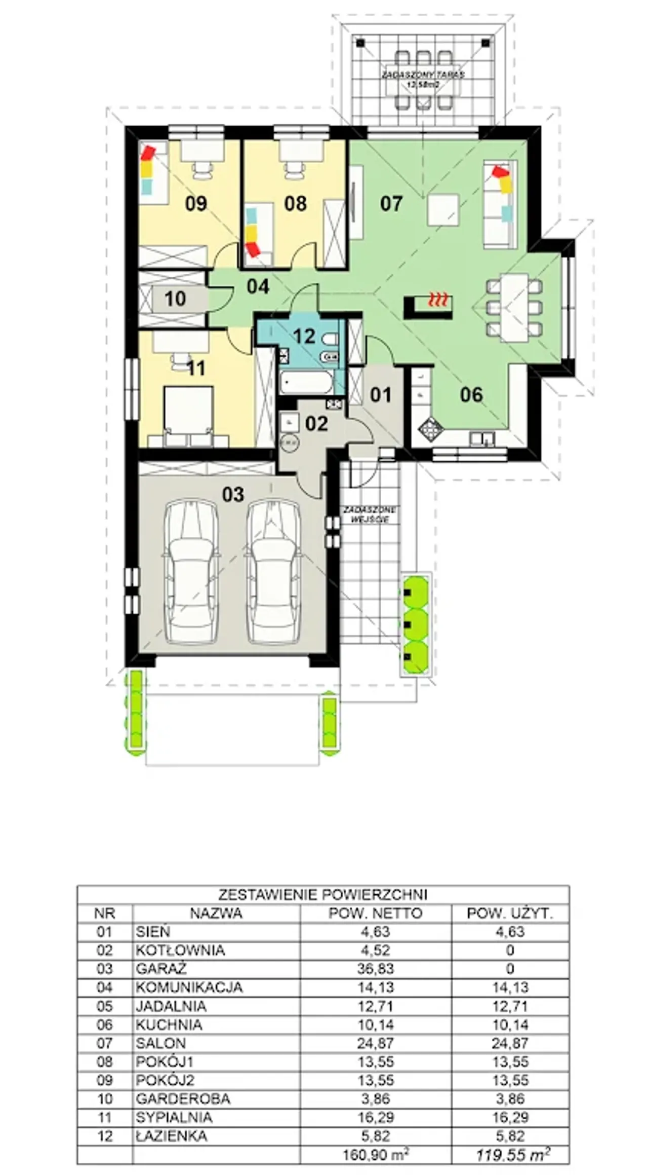
Ilość pokoi 4 |
Pow. użytkowa 119.55 m² |
Powierzchnia zabudowy 224.25 m² |
Kondygnacje parterowy |
Garaż 2 stanowiska |
Technologia murowany |
Szerokość działki 22.54 m |
Obiekt dom |
Typ domu jednorodzinny całoroczny |
Kalenica równoległa do drogi |
Liczba łazieniek 1 |
Szerokość budynku 14.54 m |
Kominek kominek w projekcie |
Kąt nachylenia dachu 30 ° |
Długość budynku 20.28 m |
Rodzaj dachu wielospadowy |
Piwnica bez podpiwniczenia |
Kubatura 450.5 m³ |
Powierzchnia dachu 312.72 m² |
Długość działki 27.28 m |
Wysokość budynku 7.05 m |
Styl budynku nowoczesny |
Koszty budowy 300-350 tys., tylko z kosztorysem |
Ilość pokoi 4 |
Powierzchnia zabudowy 224.25 m² |
Garaż 2 stanowiska |
Szerokość działki 22.54 m |
Typ domu jednorodzinny całoroczny |
Liczba łazieniek 1 |
Kominek kominek w projekcie |
Długość budynku 20.28 m |
Piwnica bez podpiwniczenia |
Powierzchnia dachu 312.72 m² |
Wysokość budynku 7.05 m |
Koszty budowy 300-350 tys., tylko z kosztorysem |
Pow. użytkowa 119.55 m² |
Kondygnacje parterowy |
Technologia murowany |
Obiekt dom |
Kalenica równoległa do drogi |
Szerokość budynku 14.54 m |
Kąt nachylenia dachu 30 ° |
Rodzaj dachu wielospadowy |
Kubatura 450.5 m³ |
Długość działki 27.28 m |
Styl budynku nowoczesny |
Kupując projekt w technologii murowanej powinieneś budować dom murowany. Zupełna zmiana technologii na szkieletową wymaga przeprojektowania całego budynku ( zmieniają się obciążenia, fundamenty, konstrukcja dachu). Wydamy zgodę na takie przeprojektowanie jednak wiążę się to z dużymi kosztami. Istnieją firmy wykonawcze, które podejmują się zmiany technologii budowy bezpłatnie przy skorzystaniu z ich usług wykonawczych. Zdarza się, że pracownia architektoniczna przygotowuje warianty konkretnego projektu przewidując także inne technologie. Prosimy o sprawdzenie czy istnieje poszukiwana wersja projektu, w zakładce - warianty projektu.
Zwężenie/poszerzenie budynku* to nic innego jak zmiana w projekcie. Istnieje możliwość wprowadzenia takich zmian, we własnym zakresie (podczas adaptacji). *zwężenie/poszerzenie budynku nie powinno stanowić problemu w przypadku domów o dachu dwuspadowym jeśli wiąże się to z wydłużeniem/skróceniem kalenicy dachu.
Poznaj praktyczne porady ekspertów, które ułatwią Ci każdy etap budowy i od wyboru wymarzonego domu po jego wykończenie. Zyskaj pewność, że podejmujesz najlepsze decyzje dzięki sprawdzonym wskazówkom od specjalistów z planz.pl
Wycena szacunkowa, w kwotach netto, nie zawiera instalacji.
bezpłatnie (0zł)
przelew zwykły / PayNow
przy odbiorze
3-5 dni roboczych (jeśli projekt nie wymaga aktualizacji)
Projekt domu TK 34g2 wydaje się być dobrze przemyślanym rozwiązaniem dla rodziny ceniącej sobie zarówno funkcjonalność, jak i nowoczesny design. Architektura budynku łączy w sobie elegancję i prostotę, co sprawia, że dom prezentuje się bardzo atrakcyjnie. Wnętrze zostało zaprojektowane w sposób umożliwiający wygodne codzienne funkcjonowanie – przestronne i dobrze doświetlone pomieszczenia mogą sprzyjać poczuciu komfortu. Ponadto, zastosowanie dużych przeszkleń nie tylko wzbogaca estetykę, ale również pozwala na lepsze wykorzystanie naturalnego oświetlenia, co jest zarówno praktyczne, jak i energooszczędne. Projekt ten wydaje się być trafnym wyborem dla osób poszukujących domu, który będzie nowoczesny, ale także funkcjonalny.
Wybierz wygodny dla Ciebie czas kontaktu z naszym Doradcą Technicznym.