TK 10



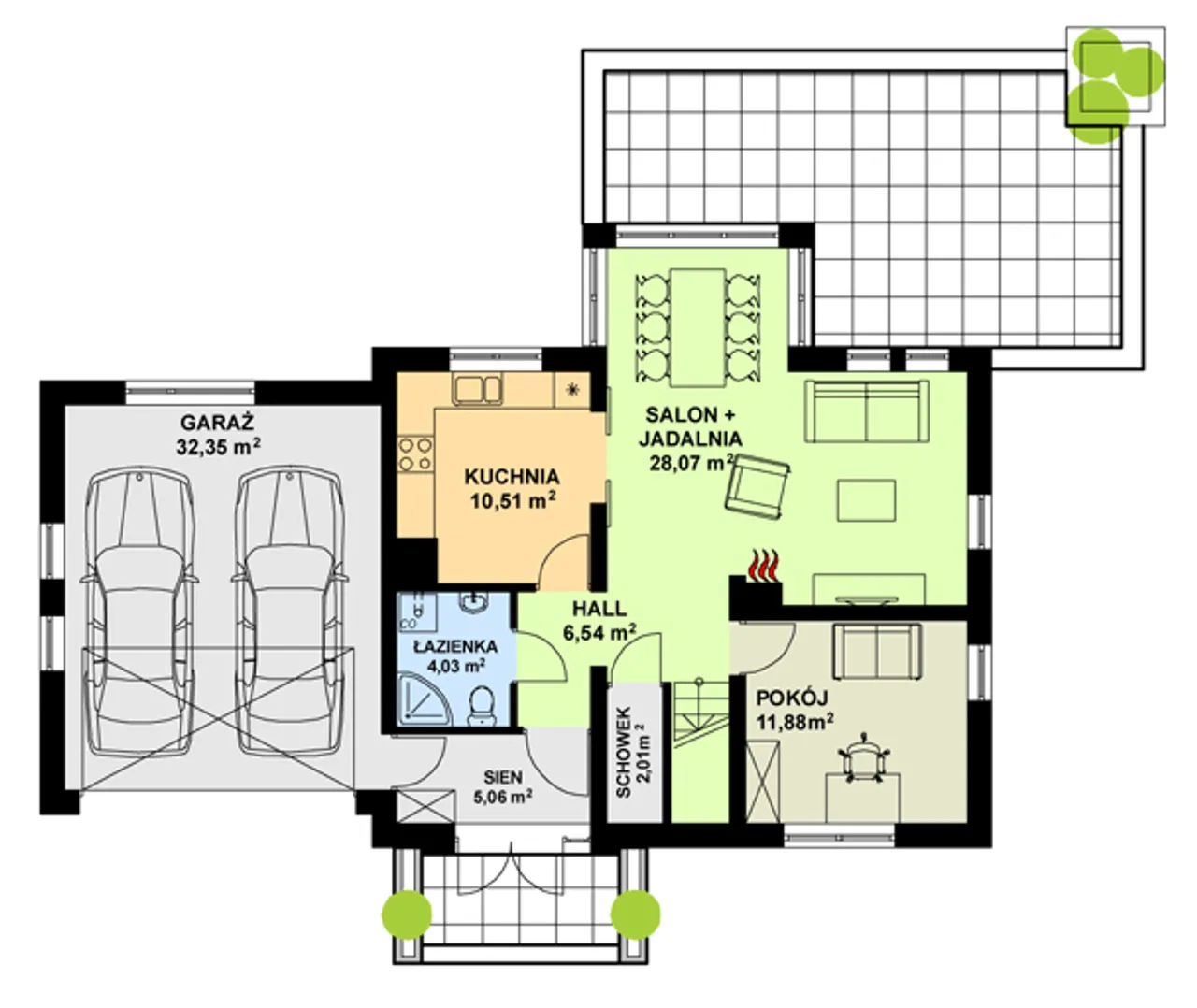
1. Sień | 5,06 m² |
2. łazienka | 4,03 m² |
3. Kuchnia | 10,51 m² |
4. Salon + jadalnia | 28,07 m² |
5. Hall | 6,54 m² |
6. Schowek | 2,01 m² |
7. Pokój | 11,88 m² |
8. Garaż | 32,35 m² |
1. Pokój | 17,80 (31,41) m² |
2. łazienka | 5,64 (9,48) m² |
3. Garderoba | 7,49 (10,35) m² |
4. Hall | 10,08 (10,08) m² |
5. Pokój | 5,64 (9,07) m² |
6. Pokój | 12,25 (12,25) m² |
7. Pokój | 9,88 (13,78) m² |
Wypełnij formularz i otrzymaj rysunki w pdf z dokładnymi wymiarami budynku i pomieszczeń (długość, szerokość, wysokość) dla projektu TK 10GL2
Pow. użytkowa 136.88 m² |
Ilość pokoi 6 |
Powierzchnia zabudowy 127.33 m² |
Kondygnacje parterowy+poddasze |
Garaż 2 stanowiska |
Technologia murowany |
Szerokość działki 23.43 m |
Obiekt dom |
Typ domu jednorodzinny całoroczny |
Kubatura 590 m³ |
Wysokość budynku 7.81 m |
Długość działki 18.13 m |
Styl budynku tradycyjny |
Kalenica równoległa do drogi |
Liczba łazieniek 2 |
Kąt nachylenia dachu 42 ° |
Szerokość budynku 15.43 m |
Rodzaj dachu dwuspadowy |
Kominek kominek w projekcie |
Długość budynku 10.13 m |
Piwnica bez podpiwniczenia |
Koszty budowy 350-400 tys., tylko z kosztorysem |
Pow. użytkowa 136.88 m² |
Powierzchnia zabudowy 127.33 m² |
Garaż 2 stanowiska |
Szerokość działki 23.43 m |
Typ domu jednorodzinny całoroczny |
Wysokość budynku 7.81 m |
Styl budynku tradycyjny |
Liczba łazieniek 2 |
Szerokość budynku 15.43 m |
Kominek kominek w projekcie |
Piwnica bez podpiwniczenia |
Ilość pokoi 6 |
Kondygnacje parterowy+poddasze |
Technologia murowany |
Obiekt dom |
Kubatura 590 m³ |
Długość działki 18.13 m |
Kalenica równoległa do drogi |
Kąt nachylenia dachu 42 ° |
Rodzaj dachu dwuspadowy |
Długość budynku 10.13 m |
Koszty budowy 350-400 tys., tylko z kosztorysem |
Kupując projekt w technologii murowanej powinieneś budować dom murowany. Zupełna zmiana technologii na szkieletową wymaga przeprojektowania całego budynku ( zmieniają się obciążenia, fundamenty, konstrukcja dachu). Wydamy zgodę na takie przeprojektowanie jednak wiążę się to z dużymi kosztami. Istnieją firmy wykonawcze, które podejmują się zmiany technologii budowy bezpłatnie przy skorzystaniu z ich usług wykonawczych. Zdarza się, że pracownia architektoniczna przygotowuje warianty konkretnego projektu przewidując także inne technologie. Prosimy o sprawdzenie czy istnieje poszukiwana wersja projektu, w zakładce - warianty projektu.
Zwężenie/poszerzenie budynku* to nic innego jak zmiana w projekcie. Istnieje możliwość wprowadzenia takich zmian, we własnym zakresie (podczas adaptacji). *zwężenie/poszerzenie budynku nie powinno stanowić problemu w przypadku domów o dachu dwuspadowym jeśli wiąże się to z wydłużeniem/skróceniem kalenicy dachu.
Poznaj praktyczne porady ekspertów, które ułatwią Ci każdy etap budowy i od wyboru wymarzonego domu po jego wykończenie. Zyskaj pewność, że podejmujesz najlepsze decyzje dzięki sprawdzonym wskazówkom od specjalistów z planz.pl
Wycena szacunkowa, w kwotach netto, nie zawiera instalacji.
bezpłatnie (0zł)
przelew zwykły / PayNow
przy odbiorze
3-5 dni roboczych (jeśli projekt nie wymaga aktualizacji)
Projekt domu TK 10GL2 to prawdziwy klejnot wśród domów nowoczesnych, idealnie wpisujący się w potrzeby rodziny ceniącej sobie zarówno funkcjonalność, jak i wyjątkowy design. Jego przestronność i otwarte przestrzenie zaskakują pozytywną energią i dają szerokie możliwości aranżacyjne. Elegancka bryła budynku z harmonijnymi przeszkleniami zapewnia nie tylko doskonałe doświetlenie wnętrz, ale także tworzy wizytówkę dla każdego, kto ceni sobie nowoczesną architekturę. To dom, gdzie każdy detal został przemyślany, by służyć komfortowi i zadowoleniu jego mieszkańców.
Wybierz wygodny dla Ciebie czas kontaktu z naszym Doradcą Technicznym.