Tim III Mocca



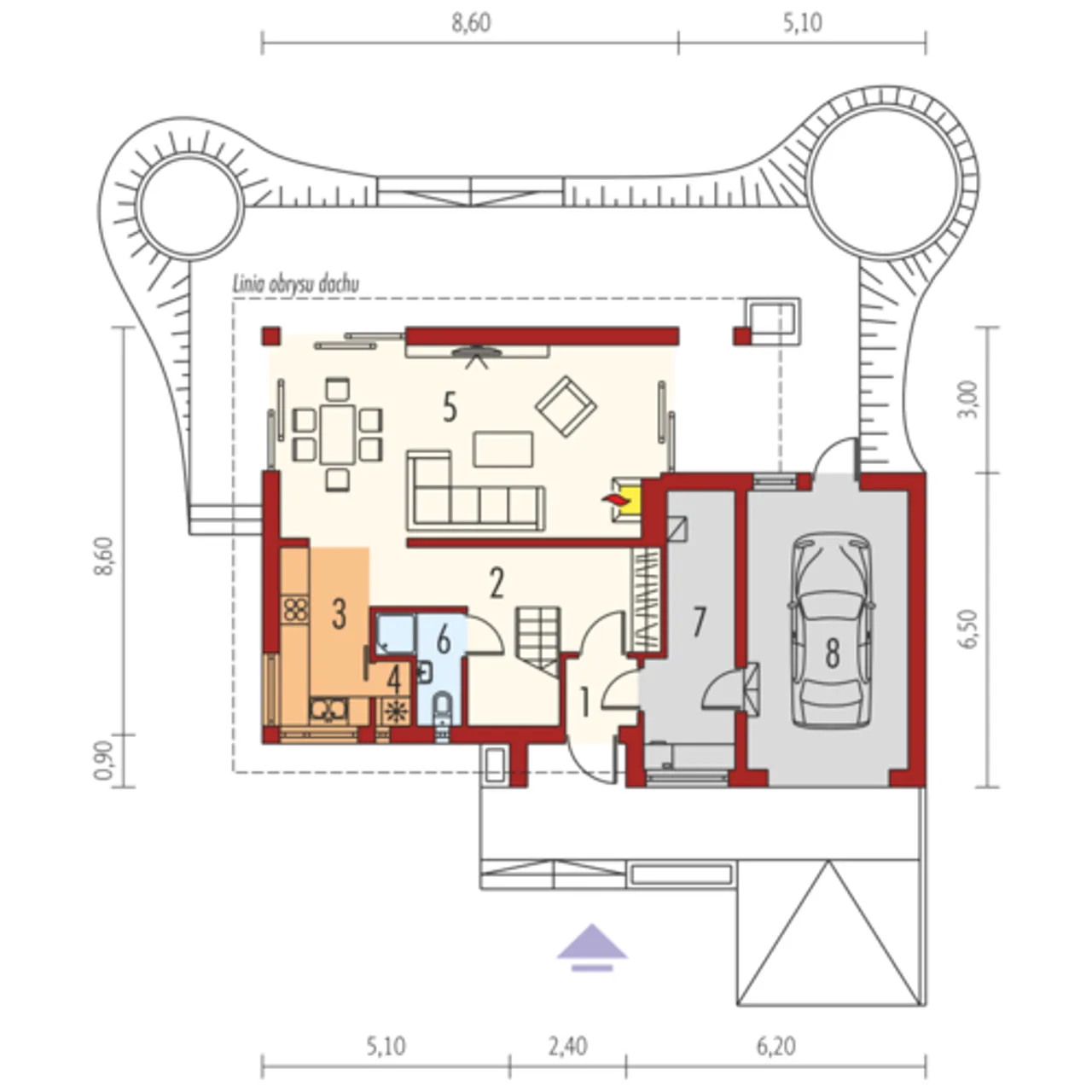
1. Wiatrołap | 2,41 m² |
2. Hol | 12,89 m² |
3. Kuchnia | 7,64 m² |
4. Spiżarnia | 0,93 m² |
5. Pokój dzienny, jadalnia | 31,00 m² |
6. łazienka | 2,83 m² |
7. Pom. gospodarcze | 9,04 m² |
8. Garaż | 18,96 m² |
1. Korytarz | 5,44 m² |
2. Sypialnia | 10,25 m² |
3. Sypialnia | 9,11 m² |
4. Sypialnia | 10,79 m² |
5. łazienka | 7,51 m² |
6. Garderoba | 2,96 m² |
Wypełnij formularz i otrzymaj rysunki w pdf z dokładnymi wymiarami budynku i pomieszczeń (długość, szerokość, wysokość) dla projektu Tim II G1
Pow. użytkowa 104.35 m² |
Ilość pokoi 3 |
Powierzchnia zabudowy 115.09 m² |
Kondygnacje parterowy+poddasze |
Garaż 1 stanowisko |
Technologia murowany |
Szerokość działki 20.8 m |
Obiekt dom |
Typ domu jednorodzinny całoroczny |
Długość budynku 9.5 m |
Rodzaj dachu dwuspadowy |
Piwnica bez podpiwniczenia |
Kubatura 415.72 m³ |
Przechowywanie w kuchni spiżarnia |
Powierzchnia dachu 143.55 m² |
Długość działki 20.1 m |
Wysokość budynku 8.72 m |
Styl budynku tradycyjny |
Kalenica równoległa do drogi |
Liczba łazieniek 2 |
Szerokość budynku 13.7 m |
Kominek kominek w projekcie |
Kąt nachylenia dachu 45 ° |
Koszty budowy tylko z kosztorysem, 250-300 tys. |
Pow. użytkowa 104.35 m² |
Powierzchnia zabudowy 115.09 m² |
Garaż 1 stanowisko |
Szerokość działki 20.8 m |
Typ domu jednorodzinny całoroczny |
Rodzaj dachu dwuspadowy |
Kubatura 415.72 m³ |
Powierzchnia dachu 143.55 m² |
Wysokość budynku 8.72 m |
Kalenica równoległa do drogi |
Szerokość budynku 13.7 m |
Kąt nachylenia dachu 45 ° |
Ilość pokoi 3 |
Kondygnacje parterowy+poddasze |
Technologia murowany |
Obiekt dom |
Długość budynku 9.5 m |
Piwnica bez podpiwniczenia |
Przechowywanie w kuchni spiżarnia |
Długość działki 20.1 m |
Styl budynku tradycyjny |
Liczba łazieniek 2 |
Kominek kominek w projekcie |
Koszty budowy tylko z kosztorysem, 250-300 tys. |
Kupując projekt w technologii murowanej powinieneś budować dom murowany. Zupełna zmiana technologii na szkieletową wymaga przeprojektowania całego budynku ( zmieniają się obciążenia, fundamenty, konstrukcja dachu). Wydamy zgodę na takie przeprojektowanie jednak wiążę się to z dużymi kosztami. Istnieją firmy wykonawcze, które podejmują się zmiany technologii budowy bezpłatnie przy skorzystaniu z ich usług wykonawczych. Zdarza się, że pracownia architektoniczna przygotowuje warianty konkretnego projektu przewidując także inne technologie. Prosimy o sprawdzenie czy istnieje poszukiwana wersja projektu, w zakładce - warianty projektu.
Zwężenie/poszerzenie budynku* to nic innego jak zmiana w projekcie. Istnieje możliwość wprowadzenia takich zmian, we własnym zakresie (podczas adaptacji). *zwężenie/poszerzenie budynku nie powinno stanowić problemu w przypadku domów o dachu dwuspadowym jeśli wiąże się to z wydłużeniem/skróceniem kalenicy dachu.
Poznaj praktyczne porady ekspertów, które ułatwią Ci każdy etap budowy i od wyboru wymarzonego domu po jego wykończenie. Zyskaj pewność, że podejmujesz najlepsze decyzje dzięki sprawdzonym wskazówkom od specjalistów z planz.pl
Wycena szacunkowa, w kwotach netto, nie zawiera instalacji.
bezpłatnie (0zł)
przelew zwykły / PayNow
przy odbiorze
3-5 dni roboczych (jeśli projekt nie wymaga aktualizacji)
Wybierz wygodny dla Ciebie czas kontaktu z naszym Doradcą Technicznym.