Tim III Mocca



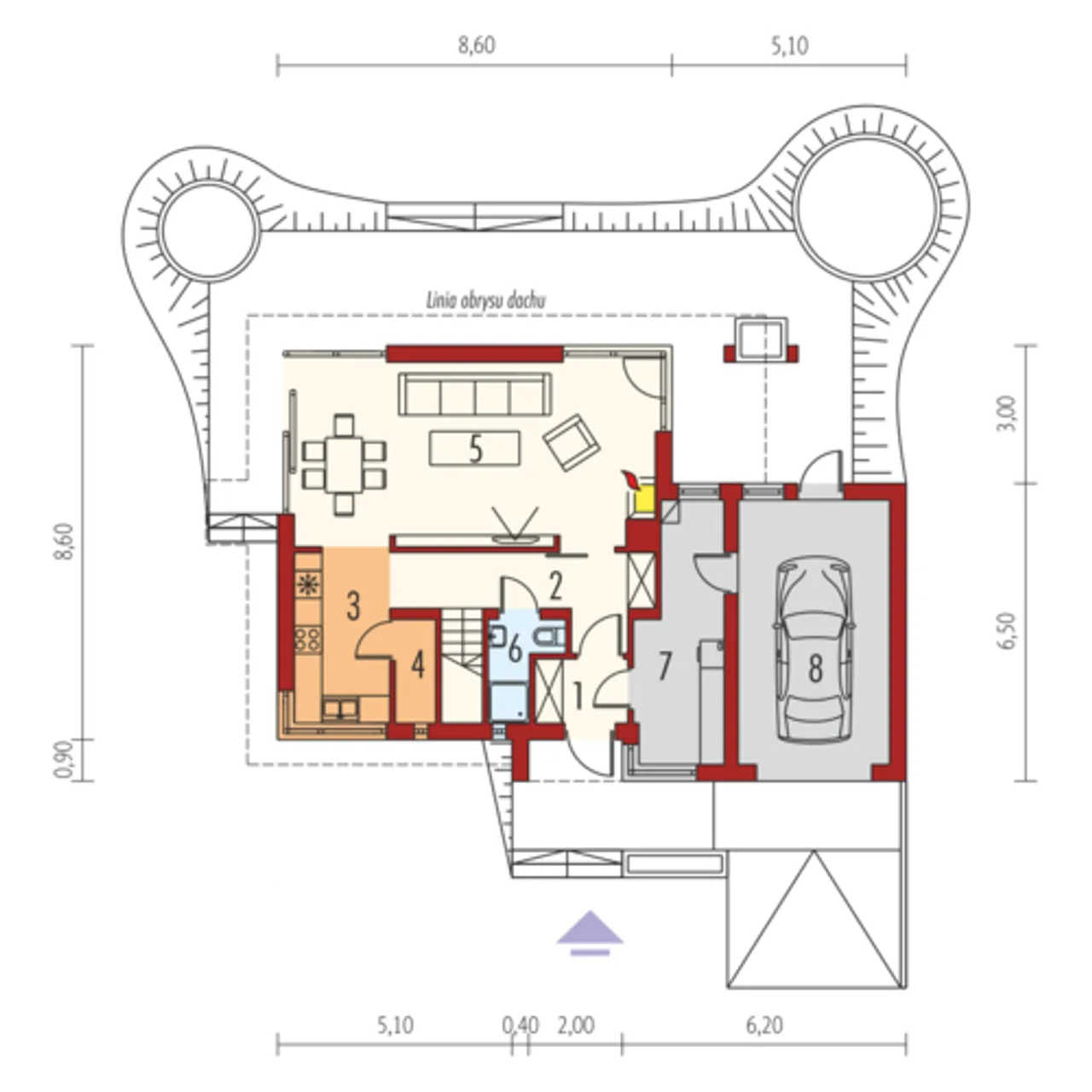
1. Wiatrołap | 2,75 m² |
2. Hol + schody | 11,17 m² |
3. Kuchnia | 7,60 m² |
4. Spiżarnia | 1,15 m² |
5. Pokój dzienny + jadalnia | 31,07 m² |
6. łazienka | 2,52 m² |
7. Kotłownia | 9,55 m² |
8. Garaż | 18,79 m² |
1. Korytarz | 7,51 m² |
2. Sypialnia | 10,84 m² |
3. Sypialnia | 10,39 m² |
4. Sypialnia | 9,55 m² |
5. łazienka | 5,36 m² |
6. Garderoba | 3,99 m² |
Wypełnij formularz i otrzymaj rysunki w pdf z dokładnymi wymiarami budynku i pomieszczeń (długość, szerokość, wysokość) dla projektu Tim G1 wersja A
Ilość pokoi 4 |
Pow. użytkowa 103.9 m² |
Powierzchnia zabudowy 114.63 m² |
Kondygnacje parterowy+poddasze |
Garaż 1 stanowisko |
Technologia murowany |
Szerokość działki 20.7 m |
Obiekt dom |
Typ domu jednorodzinny całoroczny |
Piwnica bez podpiwniczenia |
Funkcje dodatkowe z dwoma wejściami |
Kubatura 446.53 m³ |
Przechowywanie w kuchni spiżarnia |
Powierzchnia dachu 144 m² |
Długość działki 17.5 m |
Styl budynku tradycyjny |
Wysokość budynku 8.72 m |
Liczba łazieniek 1 |
Kominek kominek w projekcie |
Kąt nachylenia dachu 45 ° |
Strop gęstożebrowy |
Szerokość budynku 9.5 m |
Rodzaj garażu przyklejony |
Kotłownia duża kotłownia |
Kalenica równoległa do drogi |
Długość budynku 13.7 m |
Rodzaj dachu dwuspadowy |
Koszty budowy tylko z kosztorysem, 250-300 tys. |
Ilość pokoi 4 |
Powierzchnia zabudowy 114.63 m² |
Garaż 1 stanowisko |
Szerokość działki 20.7 m |
Typ domu jednorodzinny całoroczny |
Funkcje dodatkowe z dwoma wejściami |
Przechowywanie w kuchni spiżarnia |
Długość działki 17.5 m |
Wysokość budynku 8.72 m |
Kominek kominek w projekcie |
Strop gęstożebrowy |
Rodzaj garażu przyklejony |
Kalenica równoległa do drogi |
Rodzaj dachu dwuspadowy |
Pow. użytkowa 103.9 m² |
Kondygnacje parterowy+poddasze |
Technologia murowany |
Obiekt dom |
Piwnica bez podpiwniczenia |
Kubatura 446.53 m³ |
Powierzchnia dachu 144 m² |
Styl budynku tradycyjny |
Liczba łazieniek 1 |
Kąt nachylenia dachu 45 ° |
Szerokość budynku 9.5 m |
Kotłownia duża kotłownia |
Długość budynku 13.7 m |
Koszty budowy tylko z kosztorysem, 250-300 tys. |
Kupując projekt w technologii murowanej powinieneś budować dom murowany. Zupełna zmiana technologii na szkieletową wymaga przeprojektowania całego budynku ( zmieniają się obciążenia, fundamenty, konstrukcja dachu). Wydamy zgodę na takie przeprojektowanie jednak wiążę się to z dużymi kosztami. Istnieją firmy wykonawcze, które podejmują się zmiany technologii budowy bezpłatnie przy skorzystaniu z ich usług wykonawczych. Zdarza się, że pracownia architektoniczna przygotowuje warianty konkretnego projektu przewidując także inne technologie. Prosimy o sprawdzenie czy istnieje poszukiwana wersja projektu, w zakładce - warianty projektu.
Zwężenie/poszerzenie budynku* to nic innego jak zmiana w projekcie. Istnieje możliwość wprowadzenia takich zmian, we własnym zakresie (podczas adaptacji). *zwężenie/poszerzenie budynku nie powinno stanowić problemu w przypadku domów o dachu dwuspadowym jeśli wiąże się to z wydłużeniem/skróceniem kalenicy dachu.
Poznaj praktyczne porady ekspertów, które ułatwią Ci każdy etap budowy i od wyboru wymarzonego domu po jego wykończenie. Zyskaj pewność, że podejmujesz najlepsze decyzje dzięki sprawdzonym wskazówkom od specjalistów z planz.pl
Wycena szacunkowa, w kwotach netto, nie zawiera instalacji.
bezpłatnie (0zł)
przelew zwykły / PayNow
przy odbiorze
3-5 dni roboczych (jeśli projekt nie wymaga aktualizacji)
Wybierz wygodny dla Ciebie czas kontaktu z naszym Doradcą Technicznym.