Tamarillo



1. Wiatrołap | 4,15 m² |
2. Komunikacja | 7,95 m² |
3. Salon | 29,30 m² |
4. Kuchnia | 10,90 m² |
5. łazienka | 4,38 m² |
6. Pokój | 11,57 m² |
7. Pom. gospodarcze | 3,30 m² |
8. Garaż | 32,85 m² |
9. Pom. gospodarcze | 7,11 m² |
10. Kotłownia | 5,89 m² |
1. Komunikacja | 6,70 (6,70) m² |
2. łazienka | 4,50 (6,79) m² |
3. Pokój | 12,07 (17,01) m² |
4. Pokój | 14,03 (18,61) m² |
5. Pokój | 11,54 (16,25) m² |
6. Pralnia | 2,17 (3,56) m² |
Wypełnij formularz i otrzymaj rysunki w pdf z dokładnymi wymiarami budynku i pomieszczeń (długość, szerokość, wysokość) dla projektu Tamarillo 7 modern s2
Pow. użytkowa 122.56 m² |
Ilość pokoi 5 |
Powierzchnia zabudowy 150.82 m² |
Kondygnacje parterowy+poddasze |
Garaż 2 stanowiska |
Technologia murowany |
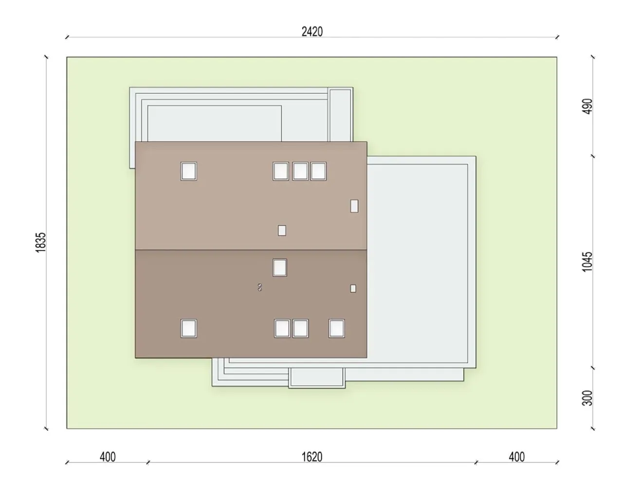
Szerokość działki 24.2 m |
Obiekt dom |
Typ domu jednorodzinny całoroczny |
Powierzchnia dachu 160 m² |
Długość działki 18.35 m |
Wysokość budynku 8.53 m |
Styl budynku nowoczesny |
Kalenica równoległa do drogi |
Liczba łazieniek 2 |
Szerokość budynku 16.2 m |
Kominek kominek w projekcie |
Kąt nachylenia dachu 40 ° |
Długość budynku 10.45 m |
Rodzaj dachu dwuspadowy |
Piwnica bez podpiwniczenia |
Kubatura 892.45 m³ |
Koszty budowy 300-350 tys., tylko z kosztorysem |
Pow. użytkowa 122.56 m² |
Powierzchnia zabudowy 150.82 m² |
Garaż 2 stanowiska |
Szerokość działki 24.2 m |
Typ domu jednorodzinny całoroczny |
Długość działki 18.35 m |
Styl budynku nowoczesny |
Liczba łazieniek 2 |
Kominek kominek w projekcie |
Długość budynku 10.45 m |
Piwnica bez podpiwniczenia |
Koszty budowy 300-350 tys., tylko z kosztorysem |
Ilość pokoi 5 |
Kondygnacje parterowy+poddasze |
Technologia murowany |
Obiekt dom |
Powierzchnia dachu 160 m² |
Wysokość budynku 8.53 m |
Kalenica równoległa do drogi |
Szerokość budynku 16.2 m |
Kąt nachylenia dachu 40 ° |
Rodzaj dachu dwuspadowy |
Kubatura 892.45 m³ |
Projekt Tamarillo 7 modern s2 to nowoczesny, murowany dom jednorodzinny z dwuspadowym dachem i funkcjonalnym poddaszem, dedykowany wymagającym rodzinom szukającym komfortowego miejsca do życia na stałe. Zachwyca przemyślanym rozkładem pięciu przestronnych pokoi i praktycznym garażem na dwa samochody, tworząc bezpieczną przestrzeń dla każdego domownika.
Projekt ten został zaprojektowany z myślą o użytkownikach, którzy cenią jakość wykonania, trwałość oraz nowoczesny styl architektoniczny. Dzięki zastosowaniu sprawdzonych materiałów i ponadczasowej estetyce dom wybudowany według Tamarillo 7 modern s2 będzie inwestycją na lata.
Projekt Tamarillo 7 modern s2 to synonim funkcjonalności, nowoczesnej estetyki i przemyślanych rozwiązań technicznych. Parterowy układ z użytkowym poddaszem umożliwia swobodną aranżację przestrzeni, a pięć pokoi pozwala na wygodne wydzielenie miejsc do pracy, wypoczynku i snu. Garaż z dwoma stanowiskami to nieocenione udogodnienie dla rodzin z dwoma samochodami lub potrzebujących dodatkowej przestrzeni do przechowywania sprzętów.
Technologia murowana, wykorzystanie ceramicznych pustaków i żelbetowych fundamentów wpływają na doskonałe parametry termoizolacyjne i solidność całej konstrukcji. Wyrazisty styl budynku, oparty na współczesnych trendach, sprawia, że projekt idealnie wpisuje się zarówno w podmiejskie okolice, jak i tereny bliżej miasta. Drewno na więźbę dachową oraz dachówka ceramiczna lub betonowa gwarantują trwałość pokrycia i ponadczasowy wygląd dachu.
Zainwestuj w przestronny, nowoczesny dom z solidnych materiałów. Nie czekaj, wybierz projekt Tamarillo 7 modern s2 i rozpocznij budowę swojego rodzinnego domu już teraz!
Kupując projekt w technologii murowanej powinieneś budować dom murowany. Zupełna zmiana technologii na szkieletową wymaga przeprojektowania całego budynku ( zmieniają się obciążenia, fundamenty, konstrukcja dachu). Wydamy zgodę na takie przeprojektowanie jednak wiążę się to z dużymi kosztami. Istnieją firmy wykonawcze, które podejmują się zmiany technologii budowy bezpłatnie przy skorzystaniu z ich usług wykonawczych. Zdarza się, że pracownia architektoniczna przygotowuje warianty konkretnego projektu przewidując także inne technologie. Prosimy o sprawdzenie czy istnieje poszukiwana wersja projektu, w zakładce - warianty projektu.
Zwężenie/poszerzenie budynku* to nic innego jak zmiana w projekcie. Istnieje możliwość wprowadzenia takich zmian, we własnym zakresie (podczas adaptacji). *zwężenie/poszerzenie budynku nie powinno stanowić problemu w przypadku domów o dachu dwuspadowym jeśli wiąże się to z wydłużeniem/skróceniem kalenicy dachu.
Poznaj praktyczne porady ekspertów, które ułatwią Ci każdy etap budowy i od wyboru wymarzonego domu po jego wykończenie. Zyskaj pewność, że podejmujesz najlepsze decyzje dzięki sprawdzonym wskazówkom od specjalistów z planz.pl
Wycena szacunkowa, w kwotach netto, nie zawiera instalacji.
bezpłatnie (0zł)
przelew zwykły / PayNow
przy odbiorze
3-5 dni roboczych (jeśli projekt nie wymaga aktualizacji)
Wybierz wygodny dla Ciebie czas kontaktu z naszym Doradcą Technicznym.