L-75 murowany



Wypełnij formularz i otrzymaj rysunki w pdf z dokładnymi wymiarami budynku i pomieszczeń (długość, szerokość, wysokość) dla projektu Szczygieł
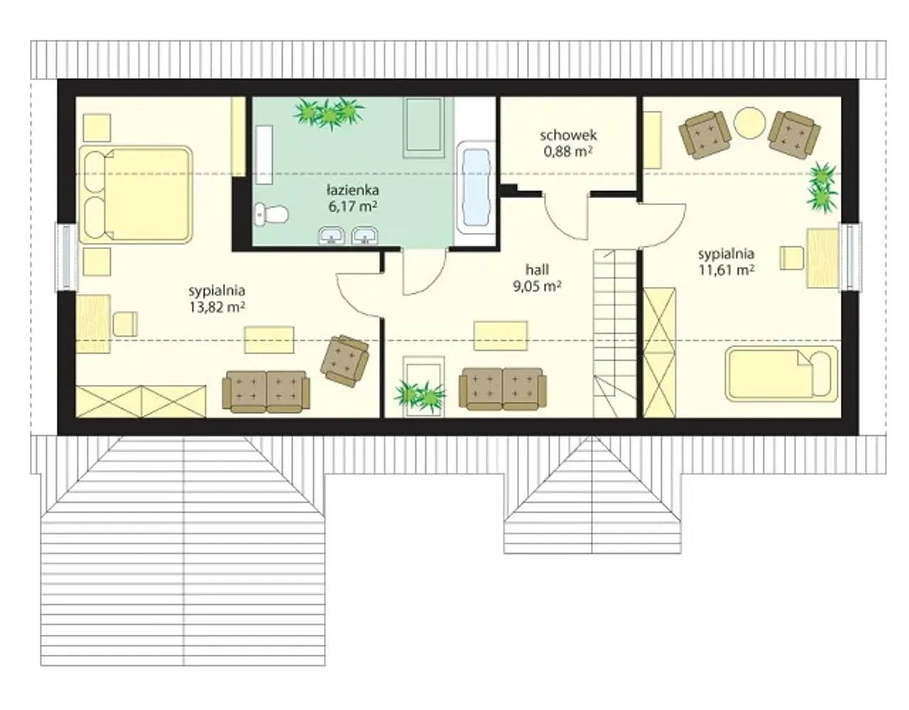
Pow. użytkowa 115.23 m² |
Ilość pokoi 5 |
Powierzchnia zabudowy 100.5 m² |
Kondygnacje parterowy+poddasze |
Garaż bez garażu |
Technologia murowany |
Szerokość działki 23 m |
Obiekt dom |
Typ domu jednorodzinny całoroczny |
Długość działki 17.55 m |
Liczba łazieniek 3 |
Kąt nachylenia dachu 35 ° |
Rodzaj dachu dwuspadowy |
Kominek kominek w projekcie |
Kubatura 426 m³ |
Taras z tarasem |
Powierzchnia dachu 186.46 m² |
Piwnica bez podpiwniczenia |
Wysokość budynku 6.08 m |
Styl budynku tradycyjny |
Koszty budowy tylko z kosztorysem, 250-300 tys. |
Pow. użytkowa 115.23 m² |
Powierzchnia zabudowy 100.5 m² |
Garaż bez garażu |
Szerokość działki 23 m |
Typ domu jednorodzinny całoroczny |
Liczba łazieniek 3 |
Rodzaj dachu dwuspadowy |
Kubatura 426 m³ |
Powierzchnia dachu 186.46 m² |
Wysokość budynku 6.08 m |
Koszty budowy tylko z kosztorysem, 250-300 tys. |
Ilość pokoi 5 |
Kondygnacje parterowy+poddasze |
Technologia murowany |
Obiekt dom |
Długość działki 17.55 m |
Kąt nachylenia dachu 35 ° |
Kominek kominek w projekcie |
Taras z tarasem |
Piwnica bez podpiwniczenia |
Styl budynku tradycyjny |
Kupując projekt w technologii murowanej powinieneś budować dom murowany. Zupełna zmiana technologii na szkieletową wymaga przeprojektowania całego budynku ( zmieniają się obciążenia, fundamenty, konstrukcja dachu). Wydamy zgodę na takie przeprojektowanie jednak wiążę się to z dużymi kosztami. Istnieją firmy wykonawcze, które podejmują się zmiany technologii budowy bezpłatnie przy skorzystaniu z ich usług wykonawczych. Zdarza się, że pracownia architektoniczna przygotowuje warianty konkretnego projektu przewidując także inne technologie. Prosimy o sprawdzenie czy istnieje poszukiwana wersja projektu, w zakładce - warianty projektu.
Zwężenie/poszerzenie budynku* to nic innego jak zmiana w projekcie. Istnieje możliwość wprowadzenia takich zmian, we własnym zakresie (podczas adaptacji). *zwężenie/poszerzenie budynku nie powinno stanowić problemu w przypadku domów o dachu dwuspadowym jeśli wiąże się to z wydłużeniem/skróceniem kalenicy dachu.
Poznaj praktyczne porady ekspertów, które ułatwią Ci każdy etap budowy i od wyboru wymarzonego domu po jego wykończenie. Zyskaj pewność, że podejmujesz najlepsze decyzje dzięki sprawdzonym wskazówkom od specjalistów z planz.pl
Wycena szacunkowa, w kwotach netto, nie zawiera instalacji.
bezpłatnie (0zł)
przelew zwykły / PayNow
przy odbiorze
3-10 dni roboczych
Wybierz wygodny dla Ciebie czas kontaktu z naszym Doradcą Technicznym.